Eladó családi ház Dunaharaszti 75 990 000 Ft

Leírás

Dunaharaszti, Központhoz közel eladó egy közepes állapotú 74 m2-es tégla építésű családi ház 436 m2-es saroktelekkel.

RENDELŐNEK, IRODÁNAK is alkalmas lehet a kiváló elhelyezkedése miatt, világos, jó energiájú ház.

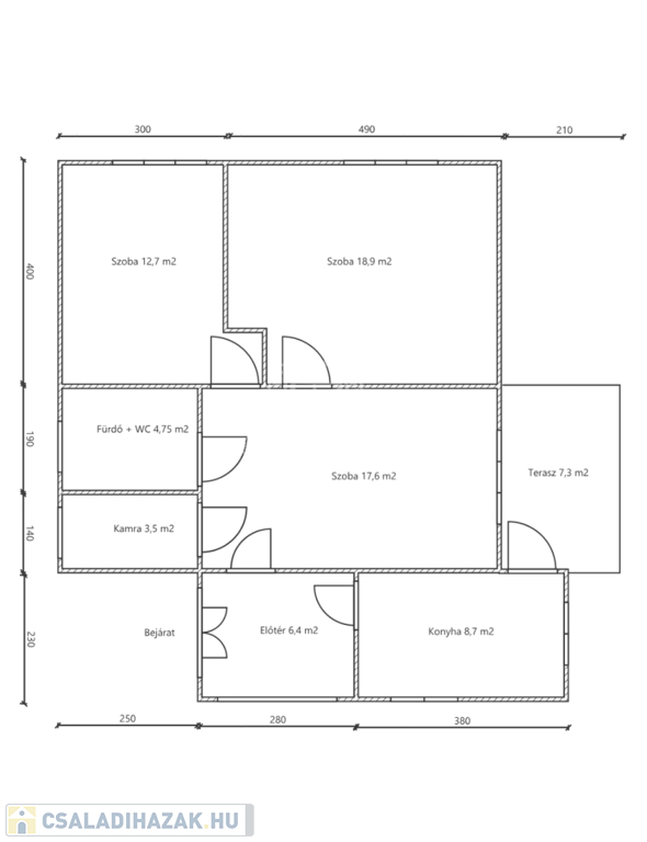
Beosztása:
- előtér 6,4 m2,
- konyha 8,7 m2,
- szoba 17,6 m2,
- szoba 18,9 m2,
- szoba 12,7 m2,
- fürdő+WC 4,75 m2,
- kamra 3,5 m2,
- pince 5 m2
plusz terasz 7,3 m2

A ház 2006-ban teljesen új tetőt kapott, valamint az előtér a konyha hozzáépítése és a fürdőszoba felújítása is ebben az évben történt. Fűtése Héra gázkazánnal, illetve elektromos konvektorokkal megoldott. A fa nyílászárók védőráccsal és redőnnyel ellátottak. Burkolatok a szobákban parketta, az előtér és konyha pedig vinyl. A hangulatos terasz belső nyugodt kertre néz, ami járólappal burkolt. A kerítés időtálló gránitból készült.

A telken egy 20 m2-es garázs található, plusz egy fedett tároló, valamint fúrt kút hidrofor szivattyúval.

Frekventált helyen van, közel a Rendelőintézet, Kormányablak, iskola, óvoda, posta és számos szolgáltatás. A HÉV és busz megálló, valamint bevásárlási lehetőség 10 perc sétára.

Amivel segítjük az Ön ingatlanvásárlását:
- jogi háttér,
- földhivatali ügyintézés,
- energetikai tanúsítvány,
- a vevő számára az ingatlanközvetítés ingyenes.

Irodánk 30 éves szakmai tapasztalattal áll ügyfelei rendelkezésére!

Várom szíves megkeresését!

Családi ház részletei

Ár: 75 990 000 Ft
Méret: 74 négyzetméter
Azonosító: 11593027
Irodai azonosító: 391672
Cím: Felsőváros
Telek: 436 négyzetméter
Ingatlan állapota: Átlagos
Jelleg: családi ház
Építőanyag: Tégla
Fűtés jellege: Héra
Fűtés módja: Gáz
Komfort fokozat: Összkomfort
Kor: 50 évesnél régebbi
Szintek száma: Földszintes
Egész szobák: 3
Fél szobák: 1

Egyéb jellemzők

  • Csatorna
  • Garázs
  • Pince
  • Terasz

Térkép


Így keressen családi házat négy egyszerű lépésben. Csupán 2 perc, kötelezettségek nélkül!

Szűkítse a családi házak
listáját
Válassza ki a megfelelő
családi házat
Írjon a hirdetőnek
Várjon a visszahívásra