Eladó családi ház Dunaharaszti 300 000 000 Ft

Leírás

Újépítésű ingatlanok Dunaharasztin a Tópark Lakóparkban!

A lakóparkban kínáljuk megvételre ezt a nettó 193 nm alapterületű önálló családi házat.

Nettó 149 nm alapterület, 47 nm garázs, 41 nm terasz.

A ház belső elosztását, burkolatokat igény szerint alakíthatja.

Az felépítmény ára: 150.000.000 Ft
Telek ára min.: 150.000.000 Ft

Pár telek közül mg tud választani.

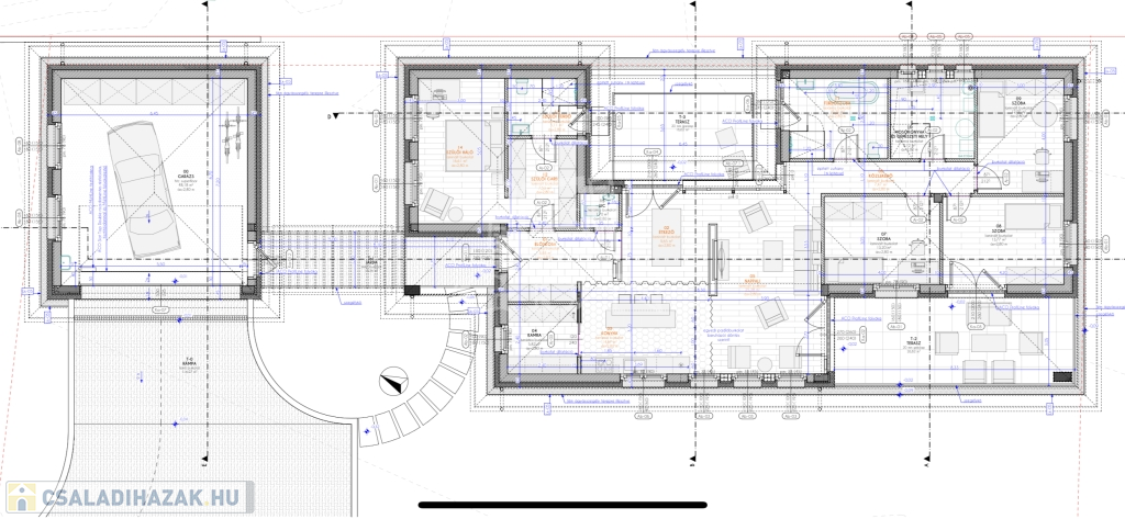
HÁZ BEOSZTÁSA:

Földszint:

- előszoba: 9 nm
- kamra: 6 nm
- nappali: 24 nm
- étkező: 10 nm
- konyha: 14 nm
- fürdő: 11 nm
- wc: 2 nm
- szülői gardrób: 8 nm
- szülői háló: 15 nm
- szoba: 12 nm
- szoba: 12 nm
- szoba: 13 nm
- fürdőszoba: 5 nm
- mosókonyha: 8 nm
+ garázs: 47 nm
+ terasz: 41 nm

MŰSZAKI TARTALOM:
.
- A homlokzati falak: Porotherm 30 cm N+F téglafal. A belső válaszfalak 10 cm es Porotherm N+F téglából épülnek. A falak felett hőhídmentes (+5cm XPS szigetelés) zsaluzott vasbeton koszorú, a nyílászárók felett előregyártott PTH, vagy monolit vasbeton áthidaló
készül. Utóbbi külső oldalon 5 cm XPS hőszigeteléssel.
- Födém szerkezet: Fa, nem járható födémszerkezet, álmennyezet, padlásfeljáróval 25 cm-es üveggyapot, vagy kőzetgyapot hőszigeteléssel. (Opció: monolit vasbeton födém felár
ellenében)
- Homlokzati nyílászárók: Műanyag, fehér, REHAU 7 légkamrás, 3 rétegű, víztiszta hőszigetelt üvegezéssel.
Biztonsági bejárati ajtó 5-pontos zárral. Bejárati ajtó max. bruttó 200.000,- Ft értékig.
- Párkány: Fehér színű, műanyag párkányok kívül és belül.
- Belső nyílászárók: Bruttó 70 ezer Ft/db árig ajtók, üveges vagy teli ajtók díszítés nélkül. Kilincs bruttó 5 eFt/db árig
- Burkolatok: Nappaliban és hálószobákban laminált parketta, választható szín és anyagvastagság bruttó 5.000,- Ft/m2 árig.
A hideg padlóburkolat konyhában és
mellékhelyiségekben kerámia burkolat bruttó 6.000 Ft/m2-es árban.
- Homlokzatok: Homlokzati falon 15 cm EPS hőszigetelés, dryvit rendszer, fehér színű vékonyvakolattal.
- Fűtés: hőszivattyús fűtés padlófűtéssel.
- Pergola: Terasz felett, terv szerint
- Térburkolat: 20 m2 gépkocsi beálló és járda, vagy terasz burkolat 15 cm zúzottkő ágyazattal, 4 cm ágyazó homokkal, betonbordába rakott kerti szegéllyel, 6 cm vtg, szürke színű, beton térkő burkolattal, bruttó 5.000,- térkő árig.

Átadás: szerződéskötéstől számított 10 hónap.
Kezdő önerő 30 %.

Az ingatlan kivitelezője Alsónémedin több telekkel rendelkezik, ezért lehetőség van az itt hirdetett ingatlant választani vagy másik utcában több alaprajzból kiválasztva megtaláni az Önök számára megfelelőt !

A képeken a kivitelező referenia munkái láthatóak.


A lakópark 38 hektáron épül egy tó köré,
- étteremmel,
- wakeboard pályával,
- homokos stranddal,
- napozó szigettel,
- kivilágított futópályával,
- saját portaszolgálattal,
- horgászási lehetőséggel,
- privát sportközponttal
(kondipark, tenisz-, lábtenisz-, grundfoci-pálya),
- játszótérrel
- és kutyafuttatóval.

A lakóparktól 3 perces távolságban TESCO, ALDI, LIDL, KFC található.

Dunaharasztiból az M0-ás autóút pár perc alatt megközelíthető,
a főváros kb.10 km-es távolságban van.

AZ ADATOK TÁJÉKOZTATÓ JELLEGŰEK!

Irodánk 27 éves szakmai tapasztalattal áll ügyfelei rendelkezésére!

Várom szíves megkeresését.

Családi ház részletei

Ár: 300 000 000 Ft
Méret: 193 négyzetméter
Azonosító: 11537113
Irodai azonosító: 382763
Cím: Tópark Lakópark
Telek: 1030 négyzetméter
Ingatlan állapota: Kitűnő
Jelleg: családi ház
Építőanyag: Tégla
Fűtés jellege: Geotermikus
Fűtés módja: Hőszivattyú
Komfort fokozat: Összkomfort
Kor: Új építésű
Szintek száma: Földszintes
Egész szobák: 5

Egyéb jellemzők

  • Csatorna
  • Garázs
  • Pince
  • Terasz

Térkép


Így keressen családi házat négy egyszerű lépésben. Csupán 2 perc, kötelezettségek nélkül!

Szűkítse a családi házak
listáját
Válassza ki a megfelelő
családi házat
Írjon a hirdetőnek
Várjon a visszahívásra