Eladó családi ház Dunaharaszti 299 000 000 Ft

Leírás


Luxus okosotthon Dunaharasztin 

Duna-part néhány lépésre!!! 

Tágas terek, modern technológia, alacsony rezsi

 

Ha olyan otthont keres, amely modern, energiatakarékos és hosszú távon is értékálló, akkor ez az ingatlan ideális választás.

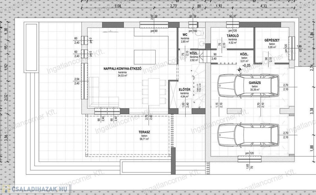
Dunaharaszti egyik legkedveltebb részén épül ez a 230 nm-es prémium családi ház, amely okosotthon technológiával, hőszivattyús rendszerrel és napelemes energiatermeléssel biztosítja a maximális kényelmet és gazdaságos fenntartást.

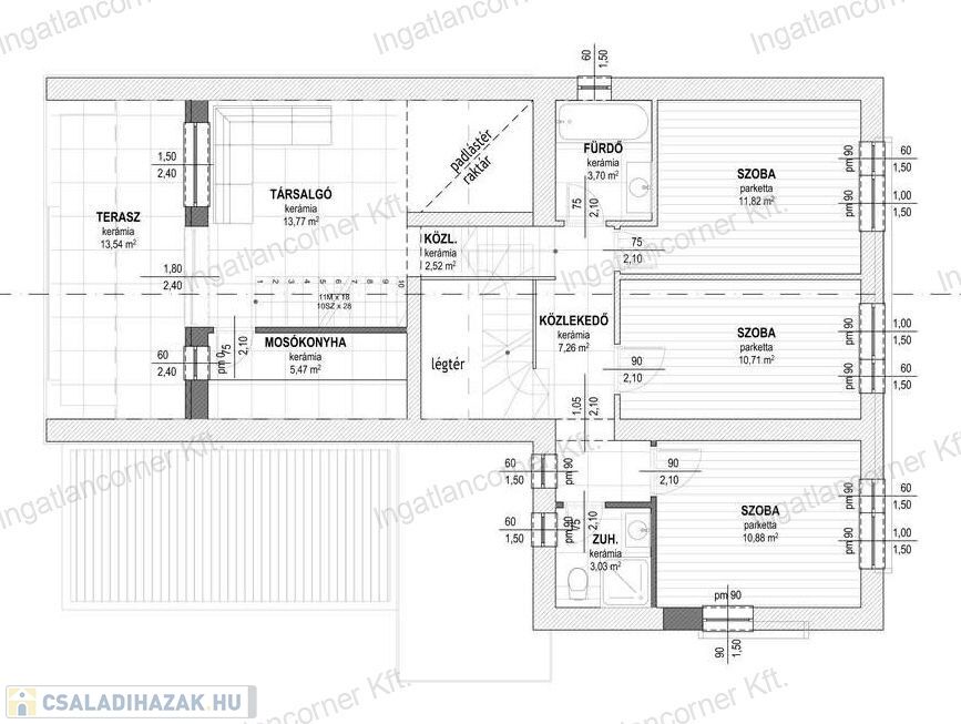
A 650 nm-es telken elhelyezkedő ház tágas terekkel és átgondolt elrendezéssel készült.

A nappali és a konyha együtt egy nagy, világos közösségi teret alkot, amely akár 60 nm-re bővíthető, így tökéletes családi és baráti összejövetelekhez.

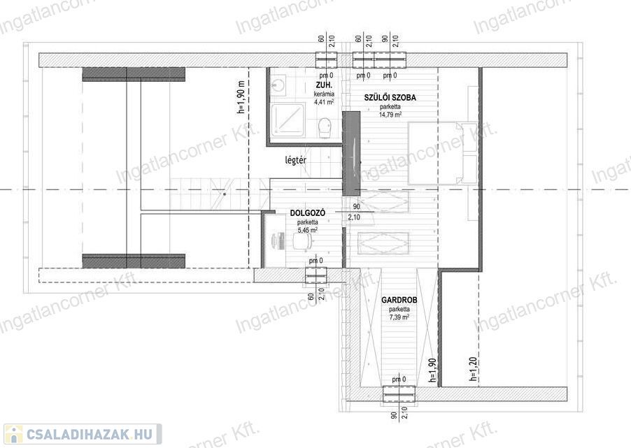
Az emeleten található:

3 külön hálószoba

2 fürdőszoba

egy külön nappali vagy dolgozó

valamint egy privát szülői lakrész saját gardróbbal és fürdővel

A modern gépészet gondoskodik a kényelemről:

14 kW levegő-víz hőszivattyú

padló- és falfűtés

hővisszanyerős szellőztetés

zónánként szabályozható hőmérséklet

A ház teljes okosotthon rendszerrel működik, így a fűtés, hűtés, árnyékolás és kapu mobiltelefonról vezérelhető.

Energiahatékonyság:

5 kW napelem

10 kW inverter

H tarifa

elektromos autótöltő

A prémium kivitelezést tovább emelik:

7 kamrás nyílászárók

elektromos alumínium redőnyök

választható burkolatok

egyedi konyhabútor

rendezett kert

Ez az otthon ideális családoknak, akik kompromisszumok nélkül szeretnének élni modern környezetben.

 

 Privát megtekintés egyeztetés alapján.

 

Szívből ajánlom minden olyan érdeklődőnek, akinek fontos a minőség és kényelem feltétlen párosítása, az esztétikus, élhető méretű kert, valamint a városhoz való pár perc alatti közelség, mégis megnyugtató szigetként funkcionáló meghitt családi otthon!



Várom hívását! Amennyiben nem tudom felvenni a telefont, hamarosan visszahívom! Hétvégén és esténként is nyugodtan kereshet bizalommal!



Független, ingyenes hitel-CSOK ügyintézéssel segítem kedves Ügyfeleimet, igen kedvező hitelekkel 2025-ben is! Mivel ingatlanirodánk építész és ingatlanfejlesztő irodával párosul, így minden hiteles szakmai segítséget meg tudunk adni, mellyel segíteni tudjuk döntését (könyvelő, ügyvéd, energetikai tanúsítvány, kivitelezők, szakértői vélemények....)!



Ha a vásárláshoz el szeretné adni a jelenleg meglévő ingatlanját, ebben is nagyon szívesen segítek. Az Ingatlancorner kft. igen alacsony közvetítői díjjal, a legmagasabb színvonalon képviseli az Ön érdekeit.



Ellenőrzött prémium partnerként várom megtisztelő bizalmát!

 

 

Családi ház részletei

Ár: 299 000 000 Ft
Méret: 230 négyzetméter
Azonosító: 11614698
Irodai azonosító: 107004250
Telek: 650 négyzetméter
Ingatlan állapota: Kitűnő
Jelleg: családi ház
Építőanyag: Tégla
Komfort fokozat: Dupla komfort
Kor: Új építésű
Egész szobák: 5

Így keressen családi házat négy egyszerű lépésben. Csupán 2 perc, kötelezettségek nélkül!

Szűkítse a családi házak
listáját
Válassza ki a megfelelő
családi házat
Írjon a hirdetőnek
Várjon a visszahívásra