Eladó családi ház Dunaharaszti 255 000 000 Ft

Leírás

!!!EGYEDI BIRTOK DUNAHARASZTI "RÓZSADOMBON"!!!

DUNAHARASZTI egyik legszebb, központhoz közeli részén, igényes környezetben, 440 m2 területű, 2 szintes, 4 külön összkomfortos lakrészből álló, összesen 15 szobás NAGY CSALÁDI BIRTOK, fedett teraszokkal, garázsokkal, pincével, a hozzá tartozó parkosított és fenyőerdővel rendelkező 3000m2 területtel ELADÓ.

1. lakrész (földszint – 96m2): nappali+étkező, konyha, 2 szoba, fürdő, 2wc, mosókonyha, tároló, közlekedő, előtér, lépcsőház, terasz (12m2), pince
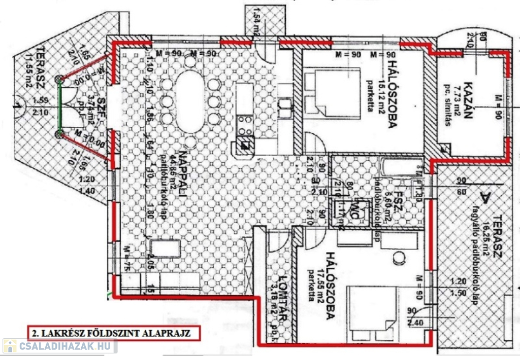
2. lakrész (két szintes – 160m2): nappali+étkező+konyha, 4 szoba, 2 fürdő, 2 wc, előtér, tároló, kazánház, terasz (16m2)
3. lakrész (földszint – 65m2): nappali+konyha+étkező, 3 szoba, fürdő, wc, terasz (10m2)
4. lakrész (emelet – 85m2): 3 szoba, konyha, fürdő, wc, közlekedő, lépcsőház, 2 erkély

A telek 32,06 méter széles és kb. 93 méter hosszú. A telken található ingatlan jelenlegi formáját igényeik szerint alakították ki tulajdonosai, kiváló minőségű anyagokból. Az ingatlan fűtését gázkazán biztosítja, radiátor hő leadóval, valamint a 2. lakrészben egyedi cserépkályha is beépítésre került. Meleg víz villanybojlerről működik. A közművek a lakrészekben külön mérhetők. Jegyzői Hatósági Bizonyítvány alapján az ingatlan KEDVEZMÉNYES GÁZTARIFÁRA JOGOSULT! Riasztó rendszer (külső-belső) kialakítva.

Az öntözőrendszerrel kiépített, parkosított és terméskővel burkolt udvaron található több autó parkolására alkalmas fedett és zárt garázs, tárolók, teraszok, játszótér, kültéri medence. Az 1. lakrész alatt található 15m2 boltíves pince. Lenyűgöző hangulatú a telken lévő kis fenyőerdő, melynek közepén 10m2-es erdei faház is helyet kapott.

Az ingatlan olyan birtok, amely egyedi a jelenlegi ingatlanpiacon! Nagyon sok lehetőséget kínál az új tulajdonosnak, valamint befektetőknek. Az ingatlan két külön helyrajzi számon van nyilvántartva. A telek méretét tekintve, a helyi építési szabályzat alapján – Lke/3 - további ingatlanok építésére is van lehetőség. Kiválóan alkalmas kisebb lakópark, szociális vagy egészségügyi intézmény kialakítására is.

Kiváló elhelyezkedése miatt a HÉV és buszközlekedés, valamint az M0, 51-es út rövid idő alatt elérhető. Közelben iskola, óvoda, orvosi rendelő, bevásárlási lehetőség.

Hívjon bizalommal, ha ajánlatom felkeltette érdeklődését.

Családi ház részletei

Ár: 255 000 000 Ft
Méret: 440 négyzetméter
Azonosító: 11540698
Irodai azonosító: 383274
Cím: Petőfi Sándor utca
Telek: 3000 négyzetméter
Ingatlan állapota:
Jelleg: családi ház
Építőanyag: Tégla
Fűtés jellege: Cirkó
Fűtés módja: Gáz
Komfort fokozat: Dupla komfort
Kor: 21-50 éves
Szintek száma: 1 szint
Egész szobák: 15

Egyéb jellemzők

  • Csatorna
  • Garázs
  • Pince
  • Terasz

Térkép


Így keressen családi házat négy egyszerű lépésben. Csupán 2 perc, kötelezettségek nélkül!

Szűkítse a családi házak
listáját
Válassza ki a megfelelő
családi házat
Írjon a hirdetőnek
Várjon a visszahívásra