Eladó családi ház Dunaharaszti 226 900 000 Ft

Leírás


A nyugalom szigete!



Dunaharasztin, a Duna-Tisza csatorna partján, táj védelmi terület mellett eladó, igazán egyedi megjelenésű sorházi szélső lakás.

Az épület 2017-ben épült magas műszaki tartalommal.

Mindkét szinten hatalmas terasz található, melyek a csati partra néznek, így igazán nyugodt, békés időt lehet az otthonunkban tölteni.

A lakást belülről a nagy, világos terek jellemzik. Körbe nagy üveg felületek minden helyiségen.



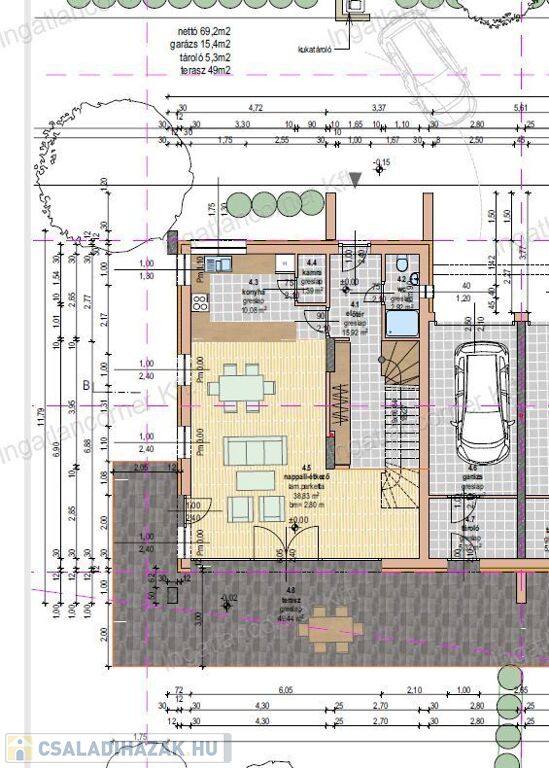
Elrendezése: földszinten am.-konyha-étkező-nappali, zuhanyzó-wc, garázs, tároló.

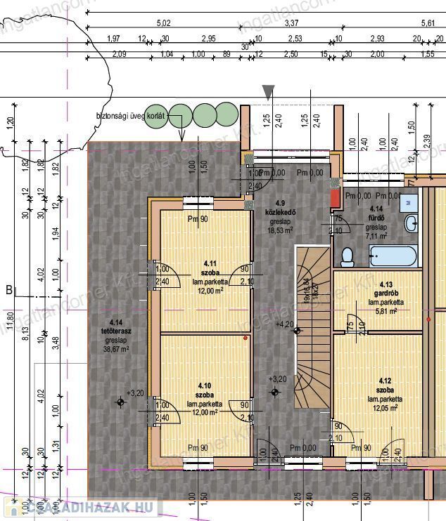
Emeleten: hatalmas közlekedő, 3 szoba, garderobe, fürdőszoba-wc.



A telek jó méretű, rengeteg lehetőséget tartalmaz.



Az lakás lakóterülete 135nm, garázs és tároló 20,7 illetve 88nm terasz.



Az ablakokon redőny és szúnyogháló található, 3 klíma, beépített konyhabútor és egyedi szekrények.



A telken belül több autó számára, térkövezett kocsi beálló.



Szívből ajánlom minden olyan érdeklődőnek, akinek fontos a minőség és kényelem feltétlen párosítása, az esztétikus, élhető méretű kert, valamint a városhoz való pár perc alatti közelség, mégis megnyugtató szigetként funkcionáló meghitt családi otthon!



A közelben buszmegálló, az új vonat állomás, kis bolt, SPAR, edzőtermek, pékség, általános iskola található. Hév állomás 25 perc kényelmes sétányira.



Az MO-ás autó út könnyedén megközelíthető.

A ház környékén, hosszú, nyugodt sétákat lehet tenni rendezett, biztonságos környéken.



Dunaharaszti egy összetartó közösség, rengeteg kulturális programmal!

Jöjjön el, tekintse meg a kényelmes családi otthont!



Várom hívását! Amennyiben nem tudom felvenni a telefont, hamarosan visszahívom! Hétvégén és esténként is nyugodtan kereshet bizalommal!



Független, ingyenes hitel-CSOK ügyintézéssel segítem kedves Ügyfeleimet, igen kedvező hitelekkel 2026-ben is!



Mivel ingatlanirodánk építész és ingatlanfejlesztő irodával párosul, így minden hiteles szakmai segítséget meg tudunk adni, mellyel segíteni tudjuk döntését (könyvelő, ügyvéd, energetikai tanúsítvány, kivitelezők, szakértői vélemények....)!



Ha a vásárláshoz el szeretné adni a jelenleg meglévő ingatlanját, ebben is nagyon szívesen segítek. Az Ingatlancorner kft. igen alacsony közvetítői díjjal, a legmagasabb színvonalon képviseli az Ön érdekeit.



Ellenőrzött Prémium partnerként várom megtisztelő bizalmát!

https://partner.ingatlan.com/tarr.krisztian

Családi ház részletei

Ár: 226 900 000 Ft
Méret: 200 négyzetméter
Azonosító: 11613682
Irodai azonosító: 107004276
Telek: 414 négyzetméter
Ingatlan állapota: Kitűnő
Jelleg: sorház
Építőanyag: Tégla
Fűtés jellege: Központi
Komfort fokozat: Dupla komfort
Egész szobák: 4

Így keressen családi házat négy egyszerű lépésben. Csupán 2 perc, kötelezettségek nélkül!

Szűkítse a családi házak
listáját
Válassza ki a megfelelő
családi házat
Írjon a hirdetőnek
Várjon a visszahívásra