Eladó családi ház Dunaharaszti 180 000 000 Ft

Leírás

Dunaharaszti Petőfiliget részén kínáljuk megvételre ezt a nettó 240 nm alapterületű önálló családi házat dupla garázzsal.
Telekterület: 650 nm

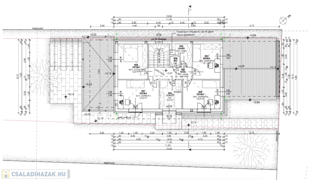
A ház beosztása:
földszint-
- Garázs 32,5 nm,
- Előtér 8,2 nm,
- Szoba 14,3 nm,
- Háztartási helység 9,2 nm,
- Fürdő 7,0 nm,
- Közlekedő 4,8 nm,
- Lépcső 1,8 nm,
- Étkező+konyha 23,1 nm,
- Nappali 48 nm,

emelet:
- Közlekedő 6,2 nm,
- WC 1,2 nm,
- Fürdő 7,8 nm,
- Szoba 13,3 nm,
- Szoba 12,1 nm,
- Szoba 14,6 nm,
- Szoba 12,9 nm,
- Gardrób 4,5 nm.

Műszaki tartalom:
- Porotherm Klíma 30 kerámia falazó elem,
- 15 cm EPS rendszerű hőszigetelés,
- könnyűszerkezetű padlásfödém 25 cm szálas hőszigeteléssel,
- padlószerkezetben 8 cm-es szigetelés,
- kondenzációs gázkazán/hőszivattyú/klíma berendezés,
- földszinten padlófűtés, emeleten szobákban radiátorok,
fürdőszobákban törölköző szárítós radiátor,
- 3 KW-os napelem rendszer,
- 6 rétegű műanyag nyílászárókkal redőnnyel, szúnyoghálóval,
- riasztó rendszer előkészítése,
- mészkő párkányok, homlokzati mészkő díszítés.

A vétel elindításához 20 % önerő szükséges.
A képeken a kivitelező által épített, de már eladott háza látható.
A most épülő ingatlan annyiban módosul, hogy a nappali konyha ebédlő élettér 70 m2-re bővül.

Amivel segítjük az Ön ingatlan vásárlását:
- ingyenes hitelügyintézés (CSOK és Babaváró és egyéb hitel
ügyintézése is)
- jogi háttér,
- földhivatali ügyintézés,
- energetikai tanúsítvány ügyintézése,
- a vevő számára ingyenes az ingatlanközvetítés.
Irodánk 30 éves tapasztalattal áll ügyfelei rendelkezésére!

Várom szíves megkeresését.

Családi ház részletei

Ár: 180 000 000 Ft
Méret: 240 négyzetméter
Azonosító: 11536452
Irodai azonosító: 382465
Cím: Petőfiliget
Telek: 650 négyzetméter
Ingatlan állapota: Kitűnő
Jelleg: családi ház
Építőanyag: Tégla
Fűtés jellege: Cirkó
Fűtés módja: Gáz
Komfort fokozat: Dupla komfort
Kor: Új építésű
Szintek száma: 1 szint
Egész szobák: 6

Egyéb jellemzők

  • Csatorna
  • Garázs
  • Pince
  • Terasz

Térkép


Így keressen családi házat négy egyszerű lépésben. Csupán 2 perc, kötelezettségek nélkül!

Szűkítse a családi házak
listáját
Válassza ki a megfelelő
családi házat
Írjon a hirdetőnek
Várjon a visszahívásra