Eladó családi ház Dunaharaszti 177 000 000 Ft

Leírás

Tópark Lakópark Dunaharaszti!

Exkluzív, tó köré épülő lakóparkban kínálunk megvételre prémium kivitelű ikerházfeleket, ahol a modern otthon és a nyugodt, természetközeli életstílus találkozik.

A 38 hektáros, zárt lakópark egyedülálló szolgáltatásokat biztosít lakói számára, valódi resort hangulatot teremtve a mindennapokban.

Lakóparki szolgáltatások
• étterem
• wakeboard pálya
• homokos strand és napozó sziget
• kivilágított futópálya
• portaszolgálat
• horgászási lehetőség
• privát sportközpont
(kondipark, tenisz-, lábtenisz- és grundfoci-pálya)
• játszótér
• kutyafuttató

Az ingatlanról:

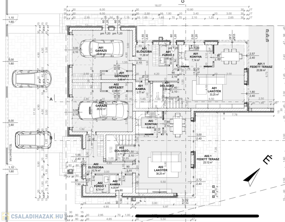
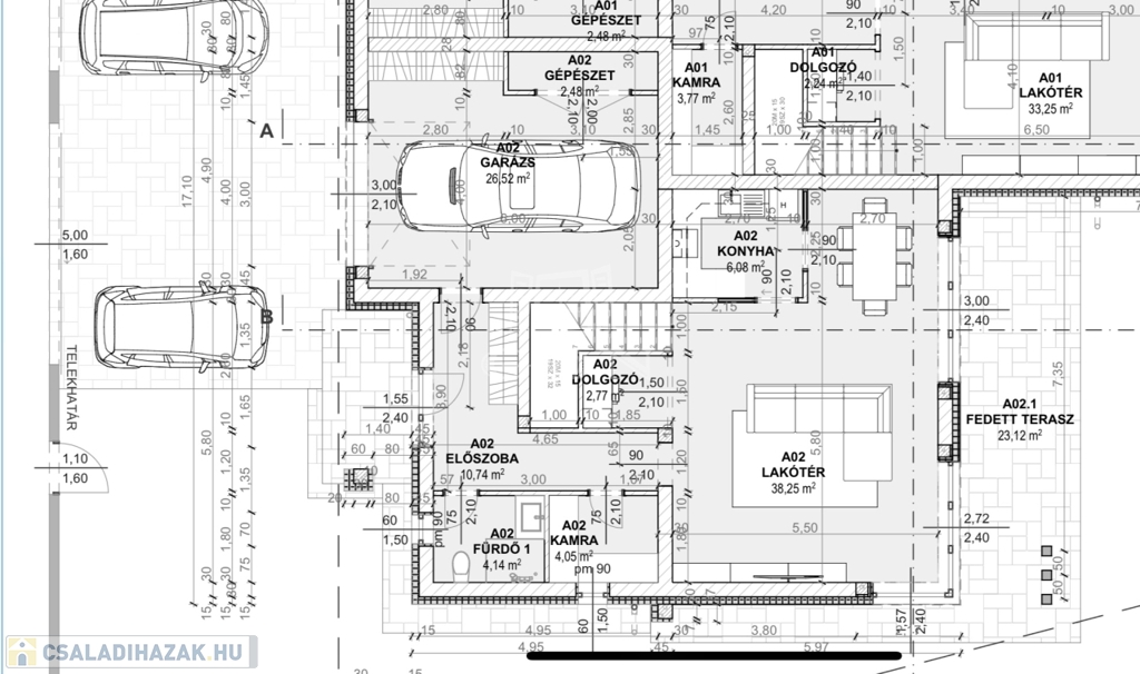
Az ikerházfelek belső elrendezése

A földszinten tágas előszoba, külön dolgozószoba, vendégfürdő, kamra és garázs mellett egy világos, nagy egybenyitott nappali–étkező–konyha kapott helyet, amely közvetlen kapcsolatban áll a fedett terasszal és a kerttel, ideális teret adva a mindennapi együttlétekhez.

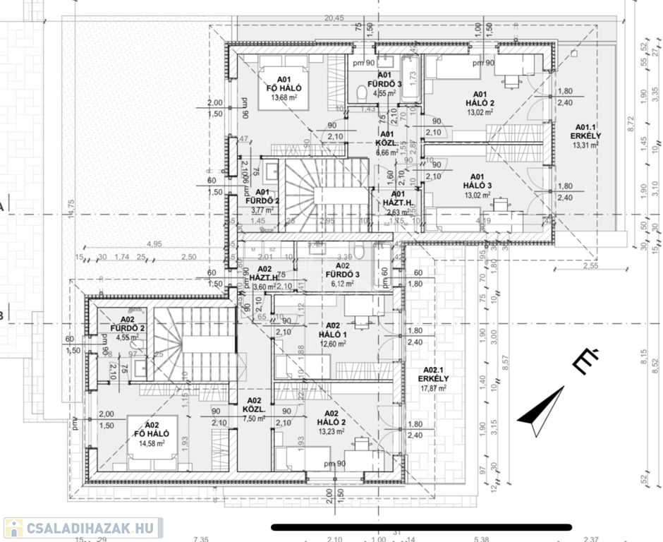
Az emeleti szint teljes egészében a pihenést szolgálja: négy hálószoba, három fürdőszoba, közlekedő és erkély biztosítja a kényelmes, jól szeparált privát életteret minden családtag számára.

A terven még nem látható, de az autóbeállók fölé 1-1 szoba kialakításra kerül.

1.-es ikerházfél:
nettó lakótér: 160 m²
terasz + erkély: 50 m²
Ára: 177.000.000 Ft

2.-es ikerházfél:
nettó lakótér: 170 m²
terasz + erkély: 46m²
Ára: 177.000.000 Ft

Az ikerházfelek önálló rendeltetési egységként, 548 nm saját telekrésszel, garázzsal, fedett terasszal és erkéllyel kerülnek kialakításra.

️ Műszaki leírás

Modern, földszint + emeletes ikerház Porotherm N+F falazattal, monolit vasbeton födémmel és sávalapozással épül.
A homlokzat 15 cm hőszigeteléssel, korszerű többrétegű hőszigetelt nyílászárókkal készül.

A fűtést hőszivattyús rendszerű elektromos padlófűtés, a hűtést klímaberendezés biztosítja.
Az ingatlan okosotthon-rendszerrel, légtechnikai rendszerrel, valamint napelem-előkészítéssel kerül kialakításra.

Elhelyezkedés

TESCO, ALDI, LIDL és KFC 3 percen belül elérhető.
Az M0-s autóút gyorsan megközelíthető, Budapest kb. 10 km távolságra található.

AZ ADATOK TÁJÉKOZTATÓ JELLEGŰEK!

Irodánk 30 éves szakmai tapasztalattal áll ügyfelei rendelkezésére.
Várom szíves megkeresését.

Családi ház részletei

Ár: 177 000 000 Ft
Méret: 193 négyzetméter
Azonosító: 11594774
Irodai azonosító: 391877
Cím: Harkály utca
Telek: 548 négyzetméter
Ingatlan állapota: Kitűnő
Jelleg: ikerház
Építőanyag: Tégla
Fűtés jellege: Geotermikus
Fűtés módja: Hőszivattyú
Komfort fokozat: Dupla komfort
Kor: Új építésű
Szintek száma: 1 szint
Egész szobák: 5

Egyéb jellemzők

  • Csatorna
  • Garázs
  • Pince
  • Terasz

Térkép


Így keressen családi házat négy egyszerű lépésben. Csupán 2 perc, kötelezettségek nélkül!

Szűkítse a családi házak
listáját
Válassza ki a megfelelő
családi házat
Írjon a hirdetőnek
Várjon a visszahívásra