Eladó családi ház Dunaharaszti 159 999 000 Ft

Leírás


Dunaharaszti Tó-Park Luxus Lakópark - Új Építésű Ikerházak Eladók!

Fedezze fel Dunaharaszti Tó-Park exkluzív lakóparkját, ahol új építésű ikerházak várják leendő lakóikat! A megbízható, tőkeerős kivitelező által épített ingatlanokhoz referenciaházak is megtekinthetők.

Elérhető Lakások: Még két, kulcsrakész állapotú ingatlan érhető el, melyek augusztusban kerülnek átadásra. A házak kizárólag garázsnál kapcsolódnak, így biztosítva az intim szférát.

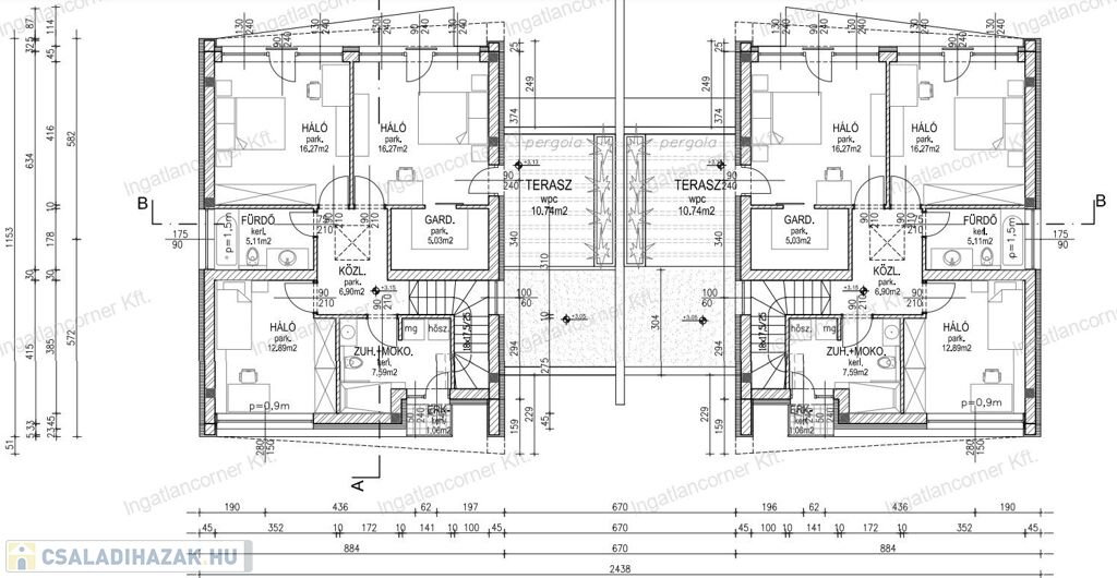
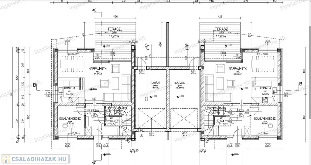
Ingatlan Adatok:

•Nettó alapterület: 150 nm

•Telekrész: 400 nm

•Elosztás: tágas, világos amerikai-konyhás nappali, 4 hálószoba, dupla fürdőszoba

•Alacsony rezsiköltség a kiváló műszaki tartalomnak köszönhetően

Lakópark Szolgáltatások:

•Körbekerített, zárt közösség

•Portaszolgálat és beléptetőrendszer

•Privát strand, játszótér, kivilágított futópálya

•Kondipark, teniszpálya, focipálya, horgászati lehetőség

•Wake-board pálya és étterem

•Közelben Tesco, Lidl, Aldi és számos üzlet

Építési és Műszaki Tartalom:

•Külső falak: 30 cm-es Ytong

•Belső válaszfalak: Porotherm 10 cm

•Monolit födémrendszer

•Hőszigetelés: 16 cm XPS a tetőn, 15 cm EPS dryvit a falakon

•Belső vakolat: gépi vakolat, glettelés és festés

•Kültéri nyílászárók: 3 rétegű üvegezés, 6 légkamrás műanyag

•Fűtés és hűtés: Levegő-Víz hőszivattyús rendszer

Beltéri Burkolatok:

•Hideg burkolatok: padlólap és fali csempe bruttó 10.500 Ft/m²-ig

•Meleg burkolatok: laminált parketta bruttó 5.500 Ft/m²-ig

Kültéri Munkálatok:

•Gépkocsibejáró: 6 cm vastag 10/20-as szürke térkő

•3D síktáblás utcafronti kerítés

•Teljes körű tereprendezés és csapadékvíz elvezetés

Ne hagyja ki ezt a kedvező lehetőséget! Várjuk jelentkezését, hogy részletes információt tudjunk adni az ingatlanokról és a megtekintés időpontjáról!

Családi ház részletei

Ár: 159 999 000 Ft
Méret: 150 négyzetméter
Azonosító: 11485331
Irodai azonosító: 107003943
Telek: 415 négyzetméter
Ingatlan állapota: Átlagos
Jelleg: ikerház
Építőanyag: Tégla
Komfort fokozat: Dupla komfort
Kor: Új építésű
Egész szobák: 5

Így keressen családi házat négy egyszerű lépésben. Csupán 2 perc, kötelezettségek nélkül!

Szűkítse a családi házak
listáját
Válassza ki a megfelelő
családi házat
Írjon a hirdetőnek
Várjon a visszahívásra