Eladó családi ház Dunaharaszti 149 990 000 Ft

Leírás


MOST AKCIÓS ÁRON MEGVEHETI ÁLMAI OTHHONÁT!!!! Dunaharaszti ÚJ LUXUS LAKÓPARKJÁBAN a Legolcsóbb ingatlan+ INGYENES ÜGYVÉDI DÍJ!!!!

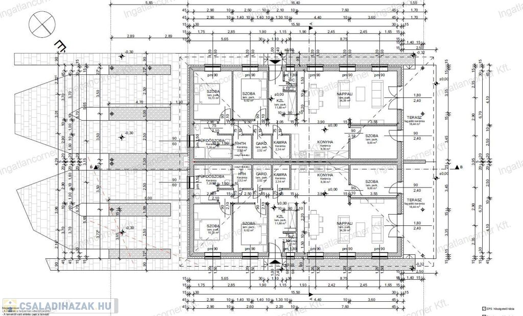
Eladó ÚJ ÉPÍTÉSŰ, földszintes ikerház.



CSOK és az új építésű ingatlanokra vonatkozó kedvezmények igénybe vehetők!



Eladó Dunaharaszti ÚJ luxus lakóparkjában ÚJ ÉPÍTÉSŰ földszintes, nappali + 3 szobás, dupla komfortos, tágas, ikerfél 450 nm-es saját telekkel.

Alapterület 168m2 melyből 105 m2 a hasznos alapterület a terasz 21m2-es amiből 16m2 fedett rész. A dupla elektromos kapuval ellátott garázs 42m2.







Belső kialakítás:

- amerikai konyhás nappali konyhabútorral, terasz kapcsolattal 3 szoba kamra fürdőszoba , WC, előtér,



Az épület a mai kor igényeinek megfelelő, korszerű, minőségi anyagokból és technológiával készül, pl.:

-külső határoló főfalak egységesen 30 cm vastag égetett vázkerámia téglából, +15 cm hőszigeteléssel,

Külső nyílászárók: 3 rétegű műanyag nyílászáró kerül beépítésre.

Fűtés: Hőszivattyús rendszer ami biztosítja a ház fűtését-hűtését is

Wc tartály: falon belüli Geberit rendszer nyomólappal

Szaniterek: Grohe csaptelepek, épített zuhany



Az ingatlanokhoz tartozó utcafronti kerítés lézer vágott elemekkel kerül kialakításra.

A kapuk elektromos motorral felszerelve. Kert gyepszőnyeggel és öntözőrendszerrel ellátott.

A Dunaharasztin épülő lakópark igazi luxus-sziget. Lakóinak nyugalmát sorompós beléptető rendszer, folyamatos, 24 órás járőrszolgálat biztosítja. Saját játszótér, illetve szabadidőpark sportolási lehetőség, kizárólagos Tó használat Vízisí pálya



Hívjon bizalommal akár hétvégén is a részletekért, a részletes műszaki tartalomért, amennyiben nem tudom fogadni a hívását akkor visszahívom.



Irodánk ÚJ ÉPÍTÉSŰ ingatlanok specialistája, felkészült értékesítőkkel! Új építésű ingatlanjainkat BERUHÁZÓI ÁRON értékesítjük!

Jogi háttérrel (kedvező díjazással) és az egyik legjobb, bank semleges HITELKÖZVETÍTŐVEL segítjük vásárlását.



Amennyiben értékesíteni kívánja ingatlanát, irodánk egyedi, kedvező ajánlattal áll rendelkezésére!

Családi ház részletei

Ár: 149 990 000 Ft
Méret: 105 négyzetméter
Azonosító: 11608480
Irodai azonosító: 107004261
Telek: 450 négyzetméter
Ingatlan állapota: Kitűnő
Jelleg: ikerház
Építőanyag: Tégla
Komfort fokozat: Dupla komfort
Kor: Új építésű
Egész szobák: 4

Így keressen családi házat négy egyszerű lépésben. Csupán 2 perc, kötelezettségek nélkül!

Szűkítse a családi házak
listáját
Válassza ki a megfelelő
családi házat
Írjon a hirdetőnek
Várjon a visszahívásra