Eladó családi ház Dunaharaszti 149 900 000 Ft

Leírás


Dunaharaszti egyik legkedveltebb luxus lakóparkjában, a Tópark Lakóparkban kínálunk eladásra, egy 2024-ben dupla fallal épült, EGYSZINTES ikerház felet.



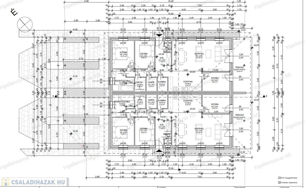
Az ingatlan 425m2 telekkel rendelkezik, melynek kertje a műfűnek köszönhetően GONDOZÁSMENTES, a lakótér 105 m² hasznos alapterülettel rendelkező ingatlan, melynek ELOSZTÁSA és TÁJOLÁSA KIVÁLÓ. A lakótéren túl egy 18,44 m²-es fedett terasz érhető el a nappaliból. A ház igényesen berendezett, modern megoldásokkal és minőségi anyaghasználattal készült.



PARKOLÁS: Két autó számára, gépkocsi beálló biztosított telken belül, melyet már csak fedni kell!



•Telek mérete: 425m2

•Ház alapterülete: 105m2

•Fedett terasz: 18,44m2

•Dupla gépkocsi beálló: SZ: 2,50m x H:6m, így darabonként 15m2-esek

•Elosztás: TÁGAS 43m2 nappali – konyha - étkező konyhaszigettel, 3 jó méretű hálószoba 10,73m2, 9,62m2, 9m2, nagyméretű ablakkal rendelkező fürdőszoba zuhanyzó és fürdőkáddal felszerelve, ablakkal rendelkező vendég mosdó, külön háztartási helyiség, ahol a mosó és szárítógép is kényelmesen elfér, külön gardrób és egy kamra helyiség is elérhető.



MŰSZAKI ADATOK:

-KÖRÍTŐ FALAZAT: 30cm Porotherm téglából épült

-HOMLOKZATI SZIGETELÉS: 15cm dryvit szigetelés

-FÖDÉM SZIGETELÉS: fafödém 30cm fújt kőzetgyapot szigeteléssel

-NYÍLÁSZÁRÓK: 3 rétegű műanyag nyílászárók

-FŰTÉS: Bosch hőszivattyú látja el a fűtést, teljes PADLÓFŰTÉSSEL

-HŰTÉS: nappaliban és a szülői hálószobában GREE hőszivattyú fan-coil biztosítja, a többi helyiségben a fan-coil kiállások kiépítésre kerültek

-MELEGVÍZ ELLÁTÁS: hőszivattyúról működő puffer tartály biztosítja.

-TETŐ: lapos beton cseréppel fedett

-ELEKTROMOS HÁLÓZAT: 3x25 Amper



EXTRÁK:

-ELEKTROMOS ALUMÍNIUM REDŐNYŐK az ablakokon

-SZÚNYOGHÁLÓ az ablakokon, eltolható a terasz ajtón

-BEÉPÍTETT BÚTOROK A VÉTELÁRBAN: az előszobában, a nappaliban lévő média fal és a komplett konyhabútor a vételár részét képezik.

-REJTETT VILÁGÍTÁS: minden helyiségben távirányítóval vezérelhető mennyezeti led világítás, pluszban a konyhában a pult és konyhabútor alatt és a média fal két oldalán.

-MODERN KONYHA:A konyha maximális kihasználásával került kialakításra, mennyezetig érő, egyedileg beépített konyhabútorral. A LED-világítással ellátott alsó szekrény, vitrines szekrény praktikus és esztétikus helyet biztosít a kristálypoharak számára.

A modern konyhát egy FUNKCIÓNÁLIS KONYHASZIGET egészíti ki, amelybe beépített hosszabbító, valamint egy ELECTROLUX indukciós főzőlap került elhelyezésre, számtalan plusz tárolóval, így a mindennapi használat és a főzés egyaránt kényelmes és hatékony. További beépített konyhagépek: WHIRLPOOL 12 terítékes beépített mosogatógép, toronyba épített, ELECTROLUX légkeveréses sütő, SAMSUNG beépített mikrohullám sütővel.

-GONDOZÁSMENTES KERT: (műfűvel borítva) a kerítés mentén szegélykövezett 50cm szélességben, ahová sövény ültethetőek (csepegtető rendszer előkészítéssel).

- PAKOLHATÓ PADLÁSTÉR: az előszobából elérhető egy lehajtható padlásfeljárón keresztül a padlástér, ahol 20m2-nyi felület segít az egyéb tárgyak tárolására.

- UDVAR VILÁGÍTÁS: a lakáshoz vezető járda mellett végig, illetve a hátsó kerítés mentén kerti lámpákkal felszerelt.

- A gépkocsibeállók és a ház melletti járda térkővel burkolt.



- Jelenlegi rezsi költség, igen kedvező: 40.000.-Ft/hó (villany, víz, szemétszállítás)

- Közös költség: 48.000.-Ft/hó (portaszolgálat, közös áram, mosdók takarítása, kertész, karbantartási munkálatok)

- Tv, internet kábel tv szolgáltató: Telekom



Exkluzív környezet, nyugodt életérzés ezen a 38 hektáros lakóparkban, ahol számtalan kikapcsolódás várja az itt élőket, mint pl: éjszakai világítással rendelkező futópálya a tó körül, étterem, wakeboard pálya, homokos strand, napozó szigettel, szabadidő parkkal, saját portaszolgálattal, horgászási lehetőséggel, privát sportközponttal, játszótérrel és kutyafuttatóval.



Közelében: A lakópark 1 kilométeres körzetében megtalálható minden szükséges üzlet (Tesco, Lidl, Aldi, DM, Jysk, etc.), illetve az INGYENES VÁROSI HELYI JÁRAT (Tesco parkolóból indul) mellyel egyszerűen a VONAT vagy a HÉV ÁLLOMÁSRA JUTÁS. Budapest is egy karnyújtásnyira van. Kortól függetlenül mindenki megtalálja itt a számítását, CSOK igényelhető.



CSOK Plusz igényelhető az ingatlanra!



További információkért forduljon hozzám bizalommal.

Családi ház részletei

Ár: 149 900 000 Ft
Méret: 105 négyzetméter
Azonosító: 11593911
Irodai azonosító: 107004219
Telek: 425 négyzetméter
Ingatlan állapota: Kitűnő
Jelleg: ikerház
Építőanyag: Tégla
Komfort fokozat: Dupla komfort
Egész szobák: 4

Így keressen családi házat négy egyszerű lépésben. Csupán 2 perc, kötelezettségek nélkül!

Szűkítse a családi házak
listáját
Válassza ki a megfelelő
családi házat
Írjon a hirdetőnek
Várjon a visszahívásra