Eladó családi ház Dunaharaszti 139 000 000 Ft

Leírás


RITKASÁG a Lake For You Lakóparkban!



LAKÓTÉRREL NEM KAPCSOLODÓ IKERHÁZ fél, MÁR CSAK az egyik fele ELADÓ, ebben a CSODÁS MODERN külsejű OTTHONBAN, ahol a TÓ, 2 perc sétával elérhető!



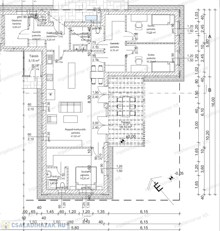
Az ingatlan egy összesen: 947m2-es SAROK telken fekszik, így az ikerház szinte két KÜLÖN házként működik, miután mindkettő más-más utcáról nyílik!



-SAJÁT TELEKMÉRETE: 459m2

-LAKÓTÉR: 112m2 + 18,10m2 TERASZ



Extrém különlegessége nem csak az épült külsöjében rejlik, hanem az EMELET BELMAGASSÁGÚ NAPPALI-KONYHA-ÉTKEZŐ térben, ami 41,50m2-es, így a belmagasságnak köszönhetően, GRANZIÓZUS hatást nyújt majd az ott lakók számára!



ELOSZTÁSA KIVÁLÓ! ITT TÉNYLEG MINDEN MEGTALÁLHATÓ, AMI AZ ÁLOM OTTHONHOZ SZÜKSÉGES: tágas ELŐSZOBA, külön GÉPÉSZETI HELYISÉG-MOSÓKONYHA, két jó méretű GYEREKSZOBA, mindkét gyereknek külön GARDÓB HELYISÉGGEL és saját KÁDDAL felszerelt fürdőszoba, KÜLÖN MOSDÓ a vendégek fogadására, egy CSODÁS SZÜLŐI hálószoba, ami az épület másik végébe került elhelyezésre, egy SAJÁT GARDRÓBBAL és zuhanyzós FÜRDÁSZOBÁVAL kialakítva, és zárás képen a HÁZ SZÍVE…. a hatalmas nyílászárókkal kialakított NAPPALI-KONYHA-ÉTKEZŐ zárja.

Majd a ház mögött egy saját 3,15m2 KERTI TÁROLÓ is helyet kapott!



MŰSZAKI ADATOK:

-KÖRÍTŐ FALAZAT: 30cm-es Porotherm RAPID téglából épül (amelynek JOBB a hőszigetelése, környezetbarát, nem kerül annyi víz a falakban, miután a téglák nem habarccsal illesztik össze, hanem extra vékony ragasztóhabbal.

- BELSŐ VÁLASZFALAK: 10cm Ytongból készülnek.

- HOMLOKZATI SZIGETELÉS: 15 cm-es DRYVIT szigetelés

- NYÍLÁSZÁRÓK: 3 rétegű, 5 kamrás fehér műanyag nyílászárók kerülnek beépítésre.

- FÖDÉMEN: 30cm-es (URSA) üveggyapot szigeteléssel, antracit színű beton cserepezéssel, antracit szinterezett eresz csatornával, telken elhelyezett szikkasztóba vezetve.

- BURKOLATOK: 6.000.-Ft/m2-ig a meleg burkolatok 5.000.-Ft/m2-ig tartalmazzák a vételárat, melyek szabadon válaszhatók.

- FŰTÉS: 8 Kw-os MIDEA HŐSZIVATTYÚRÓL működő teljes PADLÓFŰTÉSSEL kerül kiépítésre.

- MELEGVÍZ ELLÁTÁS: 200 literes puffer tartály gondoskodik.

- HŰTÉS: 2 db. BOSCH 3,5Kw-os fűtésre optimalizált KLÍMA kerül felhelyezésre a vevő igényei szerinti helyre.

- ELEKTROMOS KIÁLLÁSOK: 65 db. elektromos kiállást tartalmaz a vételár

- ELEKTROMOS HÁLÓZAT: 1x32 Amper (3 fázisra és H tarifás óra igénylésével történő kiállás kiépítése)

- BIZTONSÁG: Riasztórendszer alapcsövezésre kerül

- FESTÉS: 2X glettelés ás 2x fehér festés az árban

- GÉPKOCSIBEÁLLÁS: telken belül 2 autó számára VIACOLOR burkolattal ellátott beálló kerül kiépítésre.

- UTCAFRONTON: épített kerítés kerül megépítésre, látványtervek alapján.

- KERT: TERMŐFÖLDDEL feltöltve kerül átadásra



A LAKÓPARKBAN: SAJÁT STRAND, JÁTSZÓTÉR, SZABADTÉRI KONDITEREM, FUTBAL, TENGÓ és TENISZPÁLYA, FUTÓPÁLYA éjszaki kivilágítással, HORGÁSZATOT kedvelőnek külön van lehetőség a tó kijelölt részén pecázni, ebben a csodás PARKOSÍTOTT környezetben várja az ott lakókat melyek használatát a közös költség fedezi. A tavon egy VIZISI PÁLYA és ÉTTEREM is üzemel, az év minden szakában kikapcsolódási lehetőséget biztosítva az ott lakók számára.

A ZÁRT lakópark biztonságát, SOROMPÓS BELEPTETŐ RENDSZER és 24 órás járőrszolgálat garantálja.



Az épület stílusa MODERN ÉS FIATALOS, így ajánlom mindazoknak, akik LUXUS LAKÓPARKI KÖNYEZETBEN – egy jól megtervezett, EGYSZINTES otthonra vágynak, ahol a kényelem és a praktikum tökéletes összhangban van!



Kiváló kivitelezésben, minőségi anyagokból, SZÁMTALAN REFERENCIÁVAL rendelkezünk, így igény esetén, akár TÖBB már megépített HÁZUNK is MEGTEKINTHETŐ a városban akár belülről is!!!



Közelében: A lakópark 1 kilométeres körzetében megtalálható minden szükséges üzlet (Tesco, Lidl, Aldi, DM, Jysk, etc.), illetve az INGYENES VÁROSI HELYI JÁRAT (Tesco parkolóból indul) mellyel egyszerűen a VONAT vagy a HÉVÁLOMÁSRA JUTHAT. Budapest is egy karnyújtásnyira van. Kortól függetlenül mindenki megtalálja itt a számítását, CSOK igényelhető.



-Építés kezdete: 2025. május vége

-Az ingatlan 100%-os készültségének várható ideje: 2025. év vége



Várom hívását! Amennyiben nem tudom felvenni a telefont, hamarosan visszahívom!



Független, ingyenes hitel-CSOK ügyintézéssel segítem kedves ügyfeleinket, igen kedvező hitelekkel 2025-ben!



Ha az ingatlan megvásárlásához el szeretné adni a jelenleg meglévő ingatlanját, ebben is nagyon szívesen segítek. Az Ingatlancorner kft. igen alacsony közvetítői díjjal, a legmagasabb színvonalon képviseli az Ön érdekeit.

Családi ház részletei

Ár: 139 000 000 Ft
Méret: 112 négyzetméter
Azonosító: 11529942
Irodai azonosító: 107004005
Telek: 459 négyzetméter
Ingatlan állapota: Kitűnő
Jelleg: ikerház
Építőanyag: Tégla
Komfort fokozat: Dupla komfort
Kor: Új építésű
Egész szobák: 4

Így keressen családi házat négy egyszerű lépésben. Csupán 2 perc, kötelezettségek nélkül!

Szűkítse a családi házak
listáját
Válassza ki a megfelelő
családi házat
Írjon a hirdetőnek
Várjon a visszahívásra