Eladó családi ház Dunaharaszti 135 000 000 Ft

Leírás

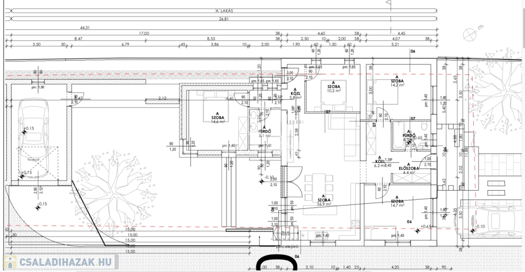
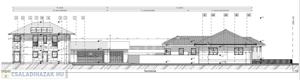
Dunaharaszti Alsóváros részén kínáljuk megvételre, a nettó 117 nm alapterületű+20 nm (garázs)+15 nm-es autó beállóval és a 15 nm-es terasszal épülő földszintes családi házat.

Saját elkerített telekterület :510 m2.

Az ingatlan 4 hálószobával, amerikai konyhás nappalival, két fürdőszobával, fedett terasszal, csendes kertvárosi környezetben található.

A saját helyrajzi számmal rendelkező családi ház egy másik házzal kapcsolódik a dupla garázs által, amit a telek végében helyeztek el.


Műszaki tartalom:
- Porotherm Klíma 30 kerámia falazó elem,
- 10 cm EPS rendszerű hőszigetelés,
- könnyűszerkezetű padlásfödém 25 cm szálas hőszigeteléssel,
- padlószerkezetben 8 cm-es szigetelés,
- kondenzációs gázkazán/hőszivattyú/ klíma berendezés,
- földszinten padlófűtés, szobákban lapradiátorok, fürdőszobában
törölközőszárítós radiátor,
- 3 KW-os napelem rendszer,
- 3 rétegű műanyag nyílászárókkal redőnnyel,
- riasztó rendszer előkészítése,
- mészkő párkányok.
A burkolatok igény szerint választhatók, hideg-meleg burkolatok 6000 Ft/m2-ig a vételár részét képezik.

A vétel elindításához 20 % önerő szükséges.
Várható átadás: szerződéskötéstől számított 8 hónap.


Amivel segítjük az Ön ingatlan vásárlását:
- ingyenes hitelügyintézés (CSOK és Babaváró és egyéb hitel
ügyintézése is)
- jogi háttér,
- földhivatali ügyintézés,
- energetikai tanúsítvány ügyintézése,
- a vevő számára ingyenes az ingatlanközvetítés.
Irodánk 27 éves tapasztalattal áll ügyfelei rendelkezésére!

Várom szíves megkeresését.

Családi ház részletei

Ár: 135 000 000 Ft
Méret: 117 négyzetméter
Azonosító: 11536776
Irodai azonosító: 382454
Cím: Magyar utca
Telek: 510 négyzetméter
Ingatlan állapota: Kitűnő
Jelleg: ikerház
Építőanyag: Tégla
Fűtés jellege: Cirkó
Fűtés módja: Gáz
Komfort fokozat: Dupla komfort
Kor: Új építésű
Szintek száma: Földszintes
Egész szobák: 5

Egyéb jellemzők

  • Csatorna
  • Garázs
  • Pince
  • Terasz

Térkép


Így keressen családi házat négy egyszerű lépésben. Csupán 2 perc, kötelezettségek nélkül!

Szűkítse a családi házak
listáját
Válassza ki a megfelelő
családi házat
Írjon a hirdetőnek
Várjon a visszahívásra