Eladó családi ház Dunaharaszti 124 999 000 Ft

Leírás


RITKASÁG!

NAPPALI + 4 HÁLÓS ÚJ ÉPTÉSÚ CSALÁDIHÁZ PETFŐFI LIGET SZÍVÉBEN!



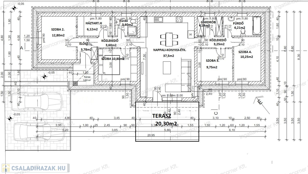
Dunaharaszti Petőfi ligeti részén ÖNÁLLÓ 593m2-es telken fekvő EGYSZINTES, ÚJ ÉPÍTÉSŰ CSALÁDIHÁZ, 112m2 alapterülettel + 20,30m2-es TERASZAL kedvező áron ELADÓ!



Elosztását tekintve KIVÁLÓ: A ház közepében helyezkedik el egy fényárban úszó 37,5m2-es NAPPALI-KONYHA-ÉTKEZŐ, NÉGY HÁLÓSZOBA (12,80m2, 10,80m2,10,25m2, 9,76m2), két ablakos FÜRDŐSZOBA az egyik épített zuhanyzóval a másik káddal felszerelve (6,21m2 és 3,60m2) külön HÁZTATÁSI HELYISÉGGEL, ahol a gépészeten kívül a mosó szárítógép is kényelmesen elfér, illetve egy GARDRÓB helyiség is helyet kapott, melynek minkét oldala bútorozható, de akár dolgozó szobának is tökéletes választás.

Jelenleg még a belső válaszfalak IGÉNY SZERINT VARIÁLHATÓAK!



Műszaki adatok:

- KÖRÍTŐ FALAZAT: 30cm-es Porotherm RAPID téglából épül (amelynek JOBB a hőszigetelése, környezetbarát, nem kerül annyi víz a falakban, miután a téglák nem habarccsal illesztik össze, hanem extra vékony ragasztóhabbal.

- BELSŐ VÁLASZFALAK: 10cm Ytongból készülnek.

- HOMLOKZATI SZIGETELÉS: 15 cm-es DRYVIT szigetelés

- NYÍLÁSZÁRÓK: 3 rétegű, 5 kamrás fehér műanyag nyílászárók kerülnek beépítésre (rejtett redőnytokos kialakítással)

- FÖDÉMEN: fafödémes épület, melyen 30cm-es (URSA) üveggyapot szigetelés kerül.

- HÉJÁZAT: antracit színű beton cserepezéssel, antracit szinterezett eresz csatornával, telken elhelyezett szikkasztóba vezetve.

- BURKOLATOK: 6.000.-Ft/m2-ig a meleg burkolatok 5.000.-Ft/m2-ig tartalmazzák a vételárat, melyek szabadon válaszhatók.

- FŰTÉS: 8 Kw-os MIDEA HŐSZIVATTYÚRÓL működő teljes PADLÓFŰTÉSSEL kerül kiépítésre.

- MELEGVÍZ ELLÁTÁS: 200 literes puffer tartály gondoskodik.

- HŰTÉS: 2 db. BOSCH 3,5Kw-os fűtésre optimalizált KLÍMA kerül felhelyezésre az ügyfél igényei szerinti helyre.

- ELEKTROMOS KIÁLLÁSOK: 65 db. elektromos kiállást tartalmaz a vételár

- ELEKTROMOS HÁLÓZAT: 1x32 Amper nappali villanyóra (amely igény esetén bővíthető), H TARIFÁS dobozolással kiépítve.

- BIZTONSÁG: Riasztórendszer alapcsövezésre kerül

- FESTÉS: 2X glettelés ás 2x fehér festés az árban

- PAKOLHATÓ PADLÁSTÉR (lenyitható hőszigetelt létrés padlásfeljáró kerül beépítésre, igény esetén a padlástér járható felületté tehető felárért)

- GÉPKOCSIBEÁLLÁS: telken belül 2 autó számára VIACOLOR burkolattal ellátott beálló kerül kiépítésre.

- UTCAFRONTON: épített kerítés kerül megépítésre, látványtervek alapján.

- KERT: TERMŐFÖLDDEL feltöltve kerül átadásra



Az épület stílusa MODERN ÉS FIATALOS, így ajánlom mindazoknak, akik saját családi házra vágynak – egy jól megtervezett, egyszintes otthonra, ahol a kényelem és a praktikum tökéletes összhangban van!



Kiváló kivitelezésben, minőségi anyagokból, SZÁMTALAN REFERENCIÁVAL rendelkezünk, így igény esetén, akár TÖBB már megépített HÁZUNK is MEGTEKINTHETŐ akár belülről is!!!



KÖZELBEN: 8 perc sétányira az INGYENES helyi buszjárat elérhető, de a vonat 10 perc sétatávolsággal elérhető. Iskola, óvoda, bölcsőde egyszerűen megközelíthető illetve számtalan bevásárlási lehetőség, hentes, zöldséges, pékség 5 perc sétányira, Aldi, Lidl, Tesco 5 perc autóútra.



MÁR 20% ÖNERŐVEL megvásárolható. és MÁR 2 MFt-tal megfizetésével foglalható!



-Építés kezdete: 2025. május vége

-Az ingatlan 100%-os készültségének várható ideje: 2025. év vége



Várom hívását! Amennyiben nem tudom felvenni a telefont, hamarosan visszahívom!



Független, ingyenes hitel-CSOK ügyintézéssel segítem kedves Ügyfeleimet, igen kedvező hitelekkel 2025-ben!



Ha az ingatlan megvásárlásához el szeretné adni a jelenleg meglévő ingatlanját, ebben is nagyon szívesen segítek. Az Ingatlancorner kft. igen alacsony közvetítői díjjal, a legmagasabb színvonalon képviseli az Ön érdekeit.

Családi ház részletei

Ár: 124 999 000 Ft
Méret: 112 négyzetméter
Azonosító: 11524367
Irodai azonosító: 107004002
Telek: 593 négyzetméter
Ingatlan állapota: Kitűnő
Jelleg: családi ház
Építőanyag: Tégla
Komfort fokozat: Dupla komfort
Kor: Új építésű
Egész szobák: 5

Így keressen családi házat négy egyszerű lépésben. Csupán 2 perc, kötelezettségek nélkül!

Szűkítse a családi házak
listáját
Válassza ki a megfelelő
családi házat
Írjon a hirdetőnek
Várjon a visszahívásra