Eladó családi ház Dunaharaszti 124 999 000 Ft

Leírás


MOST AKCIÓS ÁRON MEGVEHETI ÁLMAI OTHHONÁT!!!! Dunaharaszti ÚJ LUXUS LAKÓPARKJÁBAN a Legolcsóbb ingatlan+ INGYENES ÜGYVÉDI DÍJ!!!!

Eladó ÚJ ÉPÍTÉSŰ, földszintes ikerház.



CSOK és az új építésű ingatlanokra vonatkozó kedvezmények igénybe vehetők!



Eladó Dunaharaszti ÚJ luxus lakóparkjában ÚJ ÉPÍTÉSŰ földszintes, nappali + 3 és 4 szobás, dupla komfortos, tágas, ikerfél 450 nm-es saját telekkel.

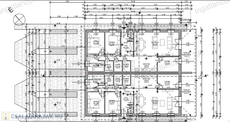
Alapterület 168m2 melyből 105 m2 a hasznos alapterület a terasz 21m2-es amiből 16m2 fedett rész. A kocsibeálló fedett 42m2.







Belső kialakítás:

- amerikai konyhás nappali terasz kapcsolattal 3 szoba kamra fürdőszoba , WC, előtér,



Az épület a mai kor igényeinek megfelelő, korszerű, minőségi anyagokból és technológiával készül, pl.:

-külső határoló főfalak egységesen 30 cm vastag égetett vázkerámia téglából, +15 cm hőszigeteléssel,

Külső nyílászárók: 3 rétegű műanyag nyílászáró kerül beépítésre.

Fűtés: Hőszivattyús rendszer ami biztosítja a ház fűtését-hűtését is

Wc tartály: falon belüli Geberit rendszer nyomólappal

Festés: 2x glettelés és 2x diszperziós fehér festés van benne az árban

Szaniterek: Grohe csaptelepek, épített zuhany

Homlokzat: a látványtervek alapján kerül kialakításra (színben)

A terveken ház előtti gépkocsi beálló és gyalogos járda viacolor burkolattal kerülnek kiépítésre. Az lakások teraszai hideg burkolattal kerülnek kialakításra, egységes színben.

Az ingatlanokhoz tartozó utcafronti kerítés lézer vágott elemekkel kerül kialakításra.

A kapuk elektromos motorral felszerelve. Kert terep rendezve, füvesítés, növényzet nélkül kerül átadásra.



A Dunaharasztin épülő lakópark igazi luxus-sziget. Lakóinak nyugalmát sorompós beléptető rendszer, folyamatos, 24 órás járőrszolgálat biztosítja. Saját játszótér, illetve szabadidőpark sportolási lehetőség, kizárólagos Tó használat Vízisí pálya



Hívjon bizalommal akár hétvégén is a részletekért, a részletes műszaki tartalomért, amennyiben nem tudom fogadni a hívását akkor visszahívom.



Irodánk ÚJ ÉPÍTÉSŰ ingatlanok specialistája, felkészült értékesítőkkel! Új építésű ingatlanjainkat BERUHÁZÓI ÁRON értékesítjük!

Jogi háttérrel (kedvező díjazással) és az egyik legjobb, bank semleges HITELKÖZVETÍTŐVEL segítjük vásárlását.



Amennyiben értékesíteni kívánja ingatlanát, irodánk egyedi, kedvező ajánlattal áll rendelkezésére!

Családi ház részletei

Ár: 124 999 000 Ft
Méret: 105 négyzetméter
Azonosító: 11391604
Irodai azonosító: 107003036
Telek: 450 négyzetméter
Ingatlan állapota: Átlagos
Jelleg: ikerház
Építőanyag: Tégla
Komfort fokozat: Dupla komfort
Kor: Új építésű
Egész szobák: 4

Így keressen családi házat négy egyszerű lépésben. Csupán 2 perc, kötelezettségek nélkül!

Szűkítse a családi házak
listáját
Válassza ki a megfelelő
családi házat
Írjon a hirdetőnek
Várjon a visszahívásra