Eladó családi ház Dunaharaszti 123 900 000 Ft

Leírás


Bezerédi lakópark legkedveltebb részén, egy igényes, szép állapotú, TEHERMENTES, alacsony rezsivel rendelkező, EGYSZINTES, ikerház, gyönyör parkosított kerttel, MEDENCÉVEL kedvező áron eladó!



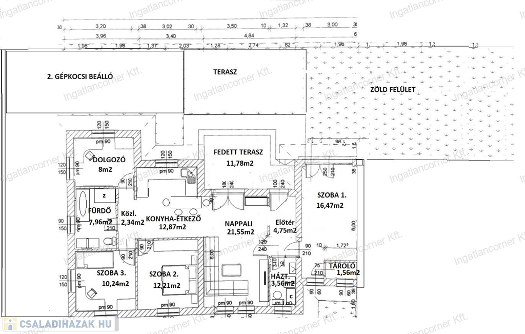
Az ingatlanhoz tartozó telek terület: 411m2, a teljes terület: 125m2, mely áll, nettó lakóterületből: 102m2 + 15m2 FEDETT teraszból+ kb. 30m2-es grill teraszból.

Maga a társasház 2006-ban épült, de az ingatlan, folyamatosan karban tartásának és fejlesztésének köszönhetően, egy tisztasági festést követően költözhető, ez az igazán jó hangulatú, szép otthont.



A lakás elosztása kiváló, minden megtalálható benne ami egy család kényelmét szolgálja:

- 34,42m2-es kényelmes amerikai konyha-nappali (ablakos konyhával)

- SZOBÁK átlagon felüli méretekkel (16,47m2, 12,21m2, 10,24m2) rendelkeznek így kényelmesen berendezhetőek

- a három hálószobán túl, egy DOLGOZÓ szoba vagy gardrób szoba is kialakításra került, így a home office esetén békésen végezheti a munkáját a ház egyik sarkában, távol az élettértől.

- külön MOSÓKONYHA került kialakításra (itt található a fűtési rendszer, mosó és szárítógép, illetve mosdó és a wc.

- A 16,47m2-es szülői hálószobából egy KÜLÖN TÁROLÓ is elérhető, ami számtalan dolog tárolására alkalmas.



MŰSZAKI ADATOK:

- Falazat: 30cm-es tégla falazattal épült

- Homlokzati szigetelés: 10cm dryvit

- Födémszigetelés: 10cm-es üveggyapot

- Nyílászárók: 2 rétegű 5 kamrás műanyag nyílászáró

- Fűtés és meleg vízellátás: beépített MELEGVÍZ tárolós Sanier Duval kombi gázkazán kazán látja el, a fűtés radiátoros hő leadással történik.



FELSZERELTSÉG:

- KONYHA: egy kényelmes méretű U alakú konyhabútor egy praktikus konyhaszigettel és beépített konyhagépekkel: 12 terítékes mosogatógéppel, gáztűzhellyel, toronyba épített légkeveréses sütővel, beépített mikróval mely a vételár részét képezi.

- HŰTÉSRŐL: nappaliban lévő 3,5Kw-os fűtésre optimalizált hűtő-fűtő GREE klíma gondoskodik (amely 1,5 éve került felhelyezésre)

-ÁRNYÉKOLÁS: Alumínium redőny és szúnyogháló ablakokon (a bejárati ajtón és nappaliban ELEKTROMOS a többi helyiségben manuálisak a redőnyök)

-BIZTONSÁGRÓL a nyitás mozgásérzékelővel ellátott, riasztó rendszer gondoskodik.

-15m2-es FEDETT terasz is kiépítése került, amely további kb. 30m2-rel bővítésre került.

-BURKOLATOK: 2023-ban a teljes fürdőszobában, bővítésre és felújításra került víz, villany, burkolatok, kád és zuhanyzó is beépítésre került.

-KERÍTÉS: 2023-ban új épített kerítés, térkövezett utca és udvar.

-HOMLOKZAT: a teljes külső homlokzat néhány éve újra lett színezve.

-KERT: A hátsó INTIM kertben, gyönyörű élénkzöld gyep és számtalan örökzöld és kerti szerszámos is elérhető. A kert öntözése FÚRT KÚTRÓL működő, automata ÖNTÖZŐRENDSZER REL megoldott.

-MEDENCE: az előkertben egy 2018-ban épített FEDETT 3 x 5 méteres, teljes gépészettel rendelkező, fűthető, épített medence érhető el.

-GÉPKOCSIBEÁLLÁS- PARKOLÁS: Telken belül két autó számára biztosított a hely: egy kisebb autó számára FEDETT gépkocsi beálló, viacolor burkolattal ellátva. A ház előtt, további két autó parkolása biztosított az új térkövezett területen.



REZSI KÖLTSÉG jelenleg összesen:38.300.-Ft

mely áll: (gáz: 20.000.-Ft/hó 24 C° tartása mellett, villany: 6.000.-Ft/hó, víz: 10.000.-Ft/hó a medence utántöltése miatt), szemétszállítás: 2.300.-Ft/hó.



- Internet, kábel tv: jelenleg Telekom és Flynet szolgáltatás van a házban, de az utcában a Vodafone szolgáltatása is elérhető.



Közelben: Néhány perc sétával elérhető: az ÚJ SPORT park, ahol a gyerekeknek és a felnőtteknek is számtalan sportolási lehetőség érhető el ingyen, mint pl: futópálya, kültéri kondi terem, játszótér. Illetve 5 perc sétányira az igen kedvelt hajós játszótér, óvoda, bölcsőde, kávézó-pizzéria-fagyizó, piac, vonatállomás, helyi járat buszmegállója, kisbolt, dohánybolt elérhető.



Ajánlom mindazon családalapítás előtt vagy már családdal rendelkezők számára, akik szép környezetben, élhető terekkel, gondozható méretű kerttel rendelkező otthont keresnek, sétatávolságra lévő óvodával, bölcsődével és játszótérrel.



Az ingatlan CSOK Plusz igényeinek teljes mértékben megfelel.

További bővebb információkért illetve a megtekintés ügyében forduljon hozzám bizalommal, akár hétvégén is, ha nem tudom fogadni hívását, visszahívom!

Családi ház részletei

Ár: 123 900 000 Ft
Méret: 125 négyzetméter
Azonosító: 11541079
Irodai azonosító: 107004025
Telek: 411 négyzetméter
Ingatlan állapota: Kitűnő
Jelleg: ikerház
Építőanyag: Tégla
Fűtés jellege: Központi
Komfort fokozat: Dupla komfort
Egész szobák: 5

Így keressen családi házat négy egyszerű lépésben. Csupán 2 perc, kötelezettségek nélkül!

Szűkítse a családi házak
listáját
Válassza ki a megfelelő
családi házat
Írjon a hirdetőnek
Várjon a visszahívásra