Eladó családi ház Dunaharaszti 116 999 000 Ft

Leírás


Tárolókapcsolatos, teljesen körbe járható ingatlan, NINCSEN közös falkapcsolat!!



Dunaharasztin a VÖRÖSMARTY utcában épülő MODERN, ENERGIATAKARÉKOS hőszivattyús tároló kapcsolatos ikerház CSODÁS KÖRNYEZETBEN eladó!



Éljen a lehetőséggel !!!!



BEVEZETŐ áron kínáljuk eladásra Dunaharaszti legkedveltebb részén, igényes kivitelezésű, kedvelt elrendezésű ikerházait.



Hitel ügyintézéssel kapcsolatosan is azonnal rendelkezésére állunk!

CSOK igényelhető rá!



Az utcafronti ingatlan 106nm-es, melyhez 518nm-es telekrész tartozik, ára: 114.999.000.Ft



A hátsó ingatlan 106nm-es 754nm-es telekhányaddal, melynek ára: 116.999.000.Ft ELKELT!!! 



A BERUHÁZÓ SZÁMTALAN REFERENCIÁVAL RENDELKEZIK



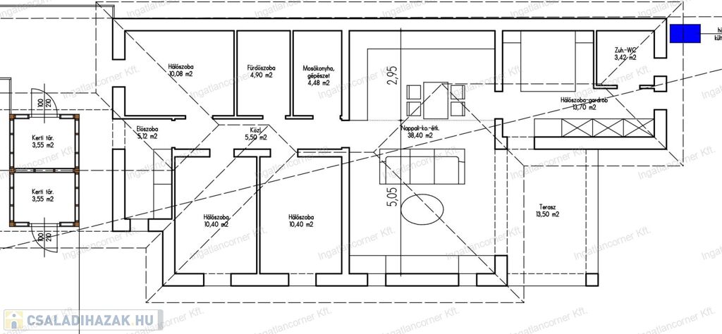
Elosztását tekintve kiváló: szülői apartman rész kerül kialakításra, gardróbbal , fürdővel. Az amerikai konyhás étkező-nappalin kívül, 4 hálószobával, 2 fürdőszobával, mosókonyhával rendelkeznek illetve terasszal és tárolóval.



A fűtésrendszer és a meleg víz hőszivattyúval működtetett padlófűtéssel kerül kiépítésre, gazdaságossá téve a fogyasztást termosztátokkal.



Napelem előkészítés. Elektromos autótöltő előkészítés.

A falak 10 cm-es homlokzati, a padlástér pedig 25 cm-es szigeteléssel.

A tető fedése bramac betoncseréppel történik.

A nyílászárók 3 rétegű üvegezéssel ellátottak.



ENERGETIKAI BESOROLÁS: A



Igény szerint, választhatók a burkolatok, a belső ajtók, szaniterek és a válaszfalak is még variálhatók.



A Hévmegálló és üzletek, DUNA-PART néhány perces sétával elérhetők.



Az ingatlanok várható átadása: 2025. nyár. A képek között a látványtervek, alaprajzok, helyszínrajzok szerepelnek.



Igényes, gondos, egyedi kivitelezés! Érdemes megtekinteni! Ne maradjon le róla!



Várjuk hívását! Amennyiben nem tudjuk felvenni a telefont, hamarosan visszahívjuk!

Hétvégén és esténként is nyugodtan kereshet bizalommal!



Független, ingyenes hitel-CSOK ügyintézéssel segítjük kedves Ügyfeleinket, igen kedvező hitelekkel 2024-ben!



Ha az ingatlan megvásárlásához el szeretné adni a jelenleg meglévő ingatlanját, ebben is nagyon szívesen segítünk.

Az Ingatlancorner kft. igen alacsony közvetítői díjjal, a legmagasabb színvonalon képviseli az Ön érdekeit.

Ellenőrzött prémium partnereink várják a hívását!

Családi ház részletei

Ár: 116 999 000 Ft
Méret: 106 négyzetméter
Azonosító: 11419944
Irodai azonosító: 107003827
Telek: 754 négyzetméter
Ingatlan állapota: Átlagos
Jelleg: ikerház
Építőanyag: Tégla
Komfort fokozat: Dupla komfort
Kor: Új építésű
Egész szobák: 4

Így keressen családi házat négy egyszerű lépésben. Csupán 2 perc, kötelezettségek nélkül!

Szűkítse a családi házak
listáját
Válassza ki a megfelelő
családi házat
Írjon a hirdetőnek
Várjon a visszahívásra