Eladó családi ház Dunaalmás 48 000 000 Ft

Leírás

INGATLANFEJLESZTÉSI LEHETŐSÉG ÉS ÖRÖKPANORÁMA DUNAALMÁSON

Dunaalmás egyik legszebb részén, az ORGONA UTCÁBAN válik elérhetővé ez a különleges projekt, ahol a reggeli kávé mellé a DUNAKANYAR és a messzeségbe nyúló panoráma társul.

Ez a ház nem csupán egy épület, hanem egy lehetőség arra, hogy a piszkos munka nehézségeit elkerülve, mégis SAJÁT ÍZLÉSE szerint fejezze be álmai otthonát.
Az ingatlan alapjait egy 1980-as építésű tégla ház adja, melynek teljes körű modernizálása 2020 évektől NYITOTT E-NAPLÓ mellett, dokumentáltan zajlik.

Az 1571 NÉGYZETMÉTERES telek tágas teret enged a kertépítésnek, miközben a ház belső terei a legmodernebb anyagokkal újultak meg.

A MŰSZAKI TARTALOM KIEMELKEDŐ PONTJAI:
• SZERKEZET: 30 CM-ES POROTHERM tégla homlokzat és 10 CM-ES YTONG belső válaszfalak a stabil és modern belső terekért.
• NYÍLÁSZÁRÓK: Prémium, 3 RÉTEGŰ HŐSZIGETELT ÜVEGEZÉSSEL ellátott ablakok, az észak-nyugati oldalon beépített REDŐNYÖKKEL.
• ELEKTROMOS KAPACITÁS: Egyedülálló 3 X 32A NAPPALI és 3 X 32A VEZÉRELT ÁRAM, mely minden modern háztartási és gépészeti igényt kiszolgál.
• FŰTÉSRENDSZER: A vételár részét képező ELEKTROMOS PADLÓFŰTÉS és NORD ART PANELEK biztosítják a jövőbeli komfortot.
• SZIGETELÉS: A zárófödém 20 CM-ES KŐZETGYAPOT szigetelést és gipszkarton álmennyezetet kapott.
• HÁLÓZAT: Teljesen megújult VÍZ- ÉS CSATORNAVEZETÉKEK, valamint szintenként elválasztott KISMEGSZAKÍTÓ TÁBLÁK.

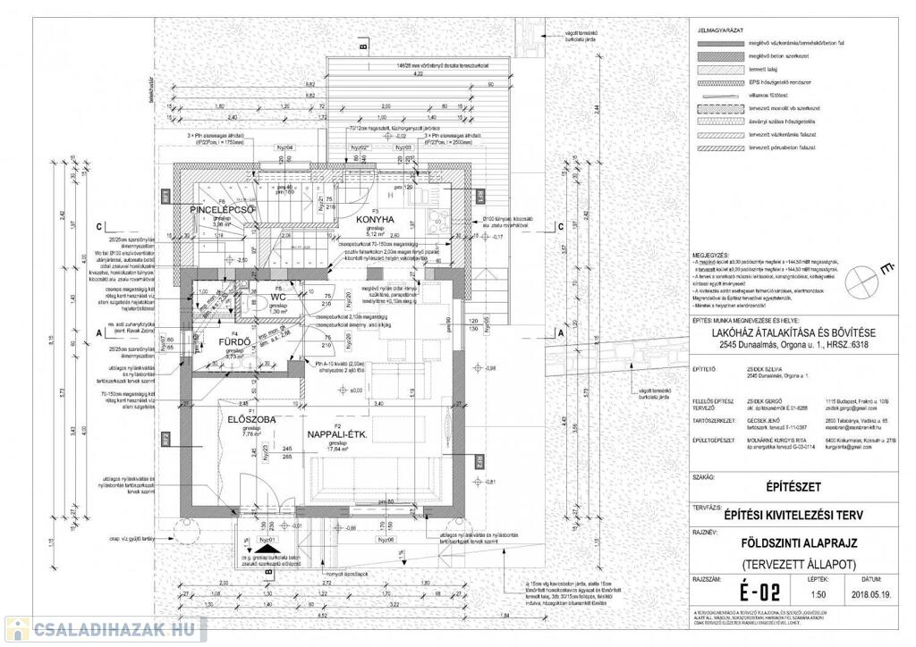
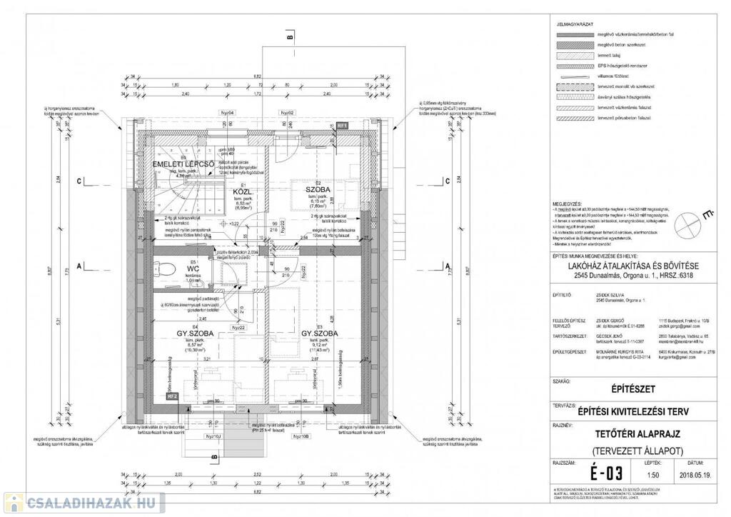
A 90 NÉGYZETMÉTERES hasznos alapterület három szinten kínál logikus és élhető elosztást. Az alagsor a praktikus tárolást és a HÁZTARTÁSI HELYISÉGET biztosítja, míg a földszint a közösségi élet színtere. A konyhából kilépve egy tervezett HATALMAS PANORÁMATERASZ várja az új tulajdonost, ahonnan tiszta időben egészen KOMÁROMIG ellátni. Az emeleti három hálószoba és a kiegészítő mellékhelyiség a család privát szféráját garantálja.

BEFEKTETŐI SZEMPONTBÓL az ingatlan igazi ritkaság. A kockázatos szerkezeti munkák, a közművek fejlesztése és a gépészeti alapozás már megtörtént. Önre már csak a befejező fázis – a burkolás, a festés és a tető héjazatának cseréje – vár, így az ingatlan végső karaktere teljes egészében az Ön elképzeléseit tükrözi majd.

A környék infrastruktúrája kiváló, TATA és az M1-ES AUTÓPÁLYA gyors elérhetősége pedig hosszú távú
ÉRTÉKÁLLÓSÁGOT garantál.

IRÁNYÁR: 48.000.000 FT
Folytassa az építkezést egy SZAKSZERŰEN ELŐKÉSZÍTETT fázistól, és élvezze ki a Dunára néző EXKLUZÍV KILÁTÁST minden egyes nap.


Amennyiben a DOT-ING INGATLAN által kínált CSALÁDI HÁZ, vagy bármely a kínálatunkban található LAKÁS felkeltette érdeklődését, hívjon bármikor a megadott telefonszámon.
Vásárolna, de nincs rá keret? Kollégám díjmentes, bank semleges hitelügyintézéssel áll rendelkezésére.

Ha felkeltette érdeklődését ez az ingatlan, megtekintéssel kapcsolatban kérem hívjon bizalommal!

FARKAS GERGELY DOT-ING INGATLANIRODA TELEFONSZÁM: 06 30 322 1015 EMAIL: FARKAS.GERGELY@DOT-ING.HU

Családi ház részletei

Ár: 48 000 000 Ft
Méret: 90 négyzetméter
Azonosító: 11606001
Irodai azonosító: 9750
Cím: Dunaalmás
Telek: 1571 négyzetméter
Ingatlan állapota: Felújítandó
Jelleg: családi ház
Építőanyag: Kérdezzen rá a hirdetőtől »
Fűtés módja: Villany
Egész szobák: 4

Így keressen családi házat négy egyszerű lépésben. Csupán 2 perc, kötelezettségek nélkül!

Szűkítse a családi házak
listáját
Válassza ki a megfelelő
családi házat
Írjon a hirdetőnek
Várjon a visszahívásra