Eladó családi ház Dömsöd 49 900 000 Ft

Leírás

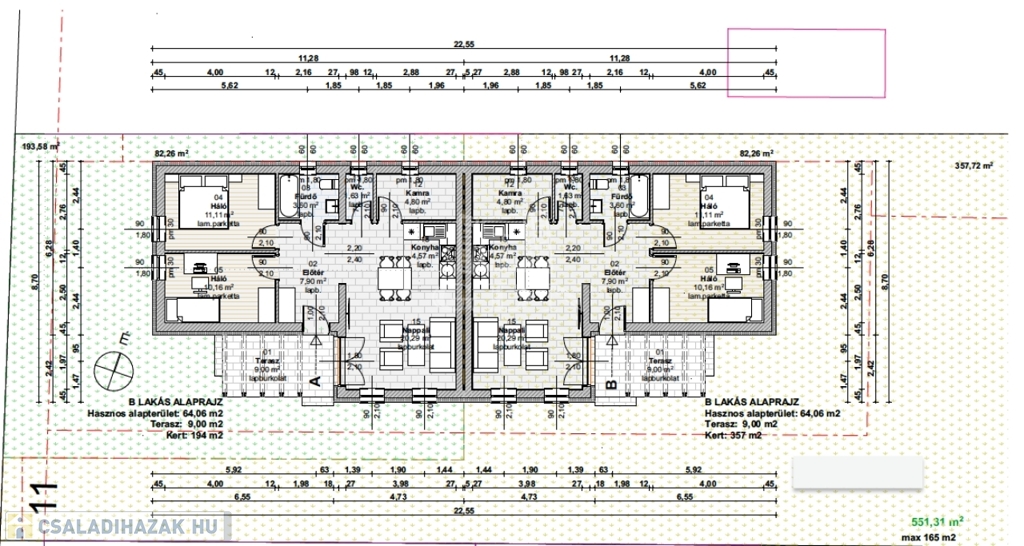
Eladó ikerház Dömsödön, a Dunavecsei út környékén.

A két fél között a telek mérete miatt árkülönbség van

A Lakás - 64,06 m2, telekméret: 194 m2 - ára 49.900.000 ft
B Lakás - 64,06 m2, telekméret 357 m2 - ára 50.900.000 ft

Az ingatlan jelenleg építés alatt áll és nappali kapcsolatos lesz!

A ház fűtéséről hőszivattyú gondoskodik.

Összesen 2 szoba és nappalis lesz az ikerház.

Várható átadási idő 2026 nyár.

Amennyiben szeretne egy teljesen új és korszerűen épített energiatakarékos otthonba költözni, ne habozzon, hívjon bizalommal!

FINANSZÍROZÁS:
Nálunk mindent egy helyen intézhet:
- hivatalos ingatlanközvetítés;
- szakszerű jogi képviselet;
- profi CSOK-PLUSZ, és hitelügyintézés: 16 Bank, több mint 100 konstrukció;

VÁROM MEGTISZTELŐ HÍVÁSÁT!

A részletes adatvédelmi tájékoztató folyamatosan elérhető a oldalon.

Családi ház részletei

Ár: 49 900 000 Ft
Méret: 64 négyzetméter
Azonosító: 11581558
Irodai azonosító: 389965
Cím: Dunavecsei út környéke
Telek: 194 négyzetméter
Ingatlan állapota: Épülő
Jelleg: ikerház
Építőanyag: Tégla
Fűtés jellege: Geotermikus
Fűtés módja: Hőszivattyú
Komfort fokozat: Összkomfort
Kor: Új építésű
Szintek száma: Földszintes
Egész szobák: 3

Egyéb jellemzők

  • Csatorna
  • Garázs
  • Pince
  • Terasz

Térkép


Így keressen családi házat négy egyszerű lépésben. Csupán 2 perc, kötelezettségek nélkül!

Szűkítse a családi házak
listáját
Válassza ki a megfelelő
családi házat
Írjon a hirdetőnek
Várjon a visszahívásra