Eladó családi ház Diósd 349 999 999 Ft

Leírás

Kedves Ingatlankereső!

Ha luxusra, természetközeli nyugalomra vágyik, ez a vadonatúj, prémium minőségű otthon tökéletes választás!

Ez a ház nem csupán egy ingatlan – ez egy életforma. A prémium kivitelezés, a természet közelsége és a modern technológia találkozása.

A fejlesztő kiemelten kezeli a projektet, a tőle megszokott magas minőségben épít, számos referenciával rendelkezik.

A mai kor követelményeinek maximálisan eleget téve építik meg az ingatlanokat.

TÖKÉLETES VÁLASZTÁS A NAGYVÁROSOK ZAJÁTÓL TÁVOLI, ENERGIAHATÉKONY ÁLOMOTTHONT KERESŐK SZÁMÁRA!

Szeretné meglepni szeretteit vagy biztonságban tudni a pénzét?

Akkor ha ön is így gondolja ajánlanám ezt az ingatlant!!

JÖJJENEK, NÉZZENEK KÖRÜL, HOGYAN IS ALAKÍTANÁK KI AZ ÖNÖK IGÉNYEI SZERINT SZÉP OTTHONNÁ!!

Kérem hívjon, találkozzunk a helyszínen, hogy körbesétálhassunk a nyugodt , szép környezetben megépülő ingatlant, alakítsuk ki együtt az Ön és kedves családja szép új otthonát :)

Az energiahatékonyság jegyében HŐSZIVATTYÚ rendszert alkalmaztunk, mely nagyon ENERGIATAKARÉKOS FELHASZNÁLÁST tesz lehetővé.




Rövid műszaki ismertető:
•vasbeton sávalap
•30 cm vastag Porotherm teherhordó falak
•10cm vastag Porotherm belső válaszfalak
•köztes-és zárófödém monolit vasbeton szerkezet
•tetőhéjalás antracit beton cserép
•homlokzati szigetelés 15cm vastag Dryvit rendszerű hőszigetelés
•födémen 30cm vastag kőzetgyapot szigetelés
•nyílászárók 3 rétegű 5 légkamrás műanyag szerkezetű középtölgy színben ,

Miért kiemelkedő ez az ingatlan?

- Nem ikerház, nem sorház, nem lakópark.
- Ez egy különálló családi ház, saját telekkel, teljes intimitással.
- Beépült, nyugodt környék.
- Nincs több építkezés, nem kell betonkeverők és munkások között laknod.
- Minden benne van az árban, nincsenek rejtett pluszköltségek, az extrák itt alaptartozékok.
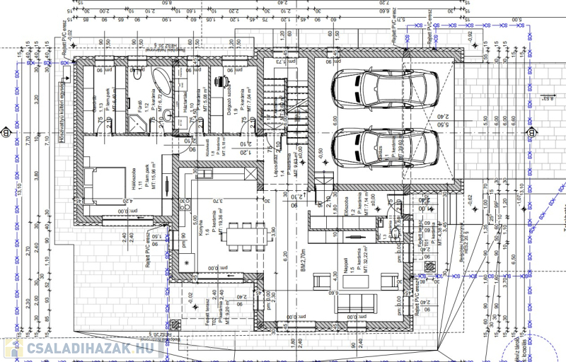
- Okos és átgondolt alaprajz.
- Nappali, étkező, konyha egy térben, természetes fény mindenhol.
-Fedett terasz-a nappaliból
- Szülői lakrész külön gardróbbal, saját fürdővel.
- Dupla garázs/39,60nm/

-A kivitelezés / építkezés tervezett befejezése -2026.
-Az ár tartalmazza:
-Hideg/Meleg burkolatok (megbeszélés szerinti összeghatárig)
-Szaniterek
-Hőszivattyús fűtő/hűtő rendszer
-Beltéri ajtók
-Elektromos kiállások
-Elektromos redőny
-Elektromos gárázskapu
-Elektromos nagykapu
-Üveg korlátok stb.

A hírdetésben megjelent külső látványtervek az engedélyezett ház tervei. Azaz a leendő végleges formát tükrözik.

Ez az ingatlanok részleteiben igen gazdag elgondolás szerint lesznek megépítve. Tapasztalt a kivitelező cég, így megannyi referencia munkával igazolható, hogy a megálmodástól a megvalósításhoz vezető út nem csak egy illúzió. Az építkezés során szigorúan csak a legmagasabb minőségű anyagokat fogja a kivitelező felhasználni, hogy igazán exkluzív otthont hozzon létre.
Mindemellett számítunk az Ön igényeinek bevonásaira is, burkolatok és szaniterek és egyéb kiegészítők tekintetében.


Aki a csendre, nyugalomra vágyik a zöldövezetben, luxus környezetben szeretne élni, de fontos neki, hogy elérhető távolságra legyen a város nyüzsgése is, annak kiváló választás ez a környék.

HÍVJON FEL, KÉRJEN EGY IDŐPONTOT, JÖJJÖN, NÉZZE MEG!

Nekem ebben az ingatlanban az elhelyezkedése mellett, a formálhatósága és a benne rejlő rengeteg lehetőség tetszik a legjobban.

Ha Ön is így látja, hívjon, nézze meg, legyen az új tulajdonosa mielőbb!

Nem fogja megbánni!


Szép napot sikeres vásárlást kívánok!

Köszönöm hogy időt szánt a hirdetésemre!






Családi ház részletei

Ár: 349 999 999 Ft
Méret: 244 négyzetméter
Azonosító: 11555785
Telek: 701 négyzetméter
Ingatlan állapota: Kitűnő
Jelleg: családi ház
Építőanyag: Kérdezzen rá a hirdetőtől »
Szintek száma: 2 szint
Egész szobák: 6
Fél szobák: 1

Egyéb jellemzők

  • Csatorna
  • Garázs
  • Kábel TV
  • Melléképület
  • Parketta
  • Pince
  • Terasz

Így keressen családi házat négy egyszerű lépésben. Csupán 2 perc, kötelezettségek nélkül!

Szűkítse a családi házak
listáját
Válassza ki a megfelelő
családi házat
Írjon a hirdetőnek
Várjon a visszahívásra