Eladó családi ház Diósd 219 900 000 Ft

Leírás

Magas színvonalú kivitelezés – energiatakarékos műszaki tartalom – tágas napfényes tájolás.

Diósd kedvelt részén, eladó 891 m2-es telken épülő nettó 178 m2-es alapterületű családi ház nappali + 5 szoba, 2 gk.garázs, 3 fürdőszoba, teraszok nagy telekkel, A családi ház leköthető, egyedi igények szerint befejezhető.

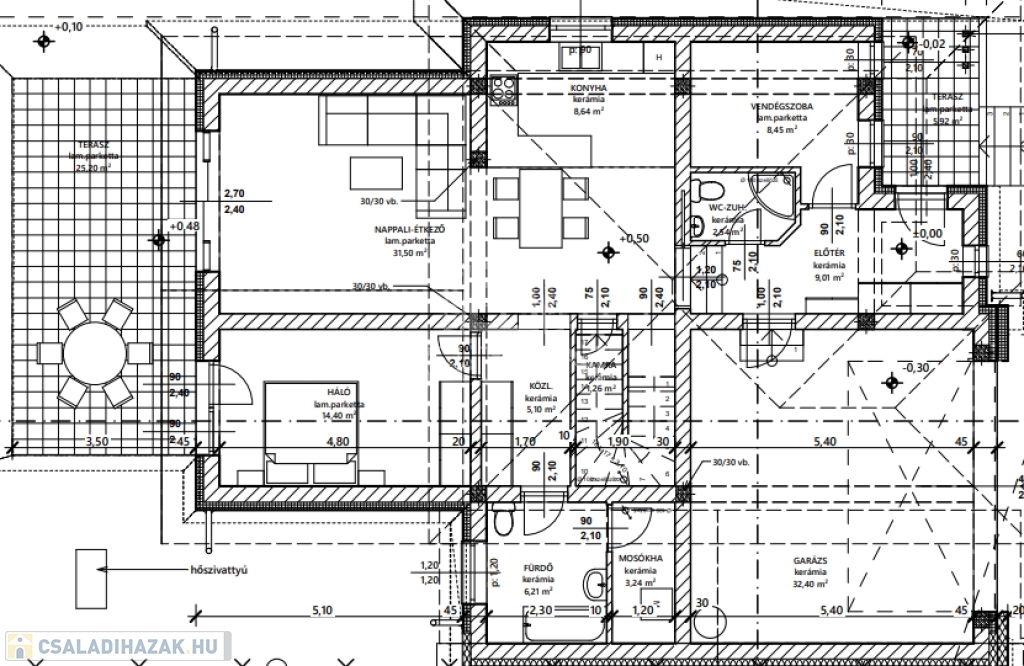
Földszint 122,7m2 + terasz:

• 31.1 m2-es nappali - étkező + 25.2 m2-es fedett terasz
• 14.4 m2-es szoba háló
• 8.45 m2-es szoba vendég
• 8.64 m2-es konyha - 1.26 m2-es kamra
• 11.5 m2-es szoba,
• 6.21 m2-es fürdő + WC
• 2,54 m2-es Wc
• 3,24 m2-es mosókonyha2
• 5.1 m2-es közlekedő
• 9.1 m2-es előszoba + 5,92 m2-es fedett bejárat

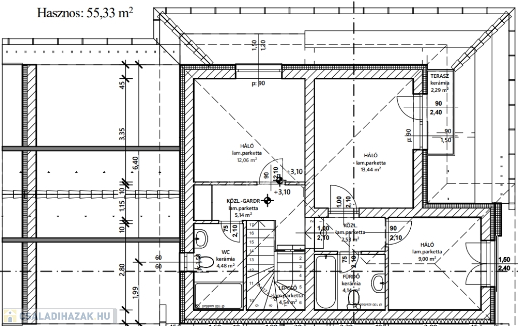
Emelet:
• 13.44 m2-es szoba - háló + 2,29 m2 terasz
• 12.06 m2-es szoba - háló
• 9.00 m2-es szoba - háló
• 4.14 m2-es fürdőszoba WC
• 4.48 m2-es WC
• 5,14 m2-es közlekedő- 4,54 m2 lépcsőtér

Kivitelezés:
A kivitelező cég 15 év óta több mint száz ingatlant épített meg minőségi kivitelezéssel.

Műszaki tartalom:
A ház a mai energiatakarékos műszaki elvárásoknak megfelelően minőségi alapanyagok felhasználásával épül.

• H tarifa, Hőszivattyú, padlófűtés + fan-coil
• A fűtést és a melegvíz ellátást a 14 KW-os Immergas hőszivattyú látja el, meleg - hideg hőellátást a padlófűtéssel kombinált hűtő-fűtő oldal fali berendezés ( fan-coil ) végzi.
• A hőszivattyúhoz kedvezményes " H" tarifás elszámolás tartozik - 23 Ft/KW.
• Az épület szigetelt, vasbeton sávlap alapra épült, 30-as Porotherm tégla tartófalakkal, 10-es vakolt tégla válaszfalakkal.
• A homlokzat 15 cm-es dryvit, az aljzat 10 cm-es lépésálló szigeteléssel készült.
• Tető beton födémmel készült - födém 30 cm-es kőzetgyapot szigeteléssel rendelkezik.
• Fehér, műanyag, több ponton záródó, biztonsági bejárati ajtó.
• Műanyag, fehér, 3 réteg üvegezésű, hő- és hangszigetelt nyílászárók, rejtett redőnytok kívül szinterezett párkányokkal.
• A hideg és meleg burkolatok 7000 Ft/m2. értékben választhatóak.
• Beltéri dekor fóliás ajtók 7 féle színben választhatók.
• Elektromos motorral szerel távirányítós nagykapú térkövezett kocsibeállóval.

Az építkezés 2024 kezdődött 2025 készült el! - az első negyedévben.

Az ingatlan csendes, aszfaltozott utcában található.

Kedvezményes hiteligénylés, CSOK, BABAVÁRÓ támogatás esetén, kezdeményezheti a kapcsolatfelvételt díjmentesen bankfüggetlen hitelszakértő munkatársunkkal.

Az ingatlan megtekintése előre egyeztetett időpontban lehetséges, akár hétvégén is.
Amennyiben felkeltette az érdeklődését, további kérdéseivel kapcsolatban várom jelentkezését!

Családi ház részletei

Ár: 219 900 000 Ft
Méret: 178 négyzetméter
Azonosító: 11290503
Irodai azonosító: 358488
Cím: Diósd - Pest megye
Telek: 891 négyzetméter
Ingatlan állapota: Átlagos
Jelleg: családi ház
Építőanyag: Tégla
Fűtés jellege: Geotermikus
Fűtés módja: Hőszivattyú
Komfort fokozat: Dupla komfort
Kor: Új építésű
Szintek száma: 1 szint
Egész szobák: 4
Fél szobák: 2

Egyéb jellemzők

  • Csatorna
  • Garázs
  • Pince
  • Terasz

Térkép


Így keressen családi házat négy egyszerű lépésben. Csupán 2 perc, kötelezettségek nélkül!

Szűkítse a családi házak
listáját
Válassza ki a megfelelő
családi házat
Írjon a hirdetőnek
Várjon a visszahívásra