Eladó családi ház Diósd 211 900 000 Ft

Leírás

Kedves Ingatlankereső!

Ajánlom figyelmébe ezt a LUXUS kivitelű iker -házat!

Exkluzív otthonra vágyik, ahol a luxus, kényelem és nyugalom találkozik? Ne keressen tovább!

TÖKÉLETES VÁLASZTÁS A NAGYVÁROSOK ZAJÁTÓL TÁVOLI, ENERGIAHATÉKONY ÁLOMOTTHONT KERESŐK SZÁMÁRA!

Az energiahatékonyság jegyében HŐSZIVATTYÚ rendszert alkalmaztunk, mely nagyon ENERGIATAKARÉKOS FELHASZNÁLÁST tesz lehetővé.


Olyan kertes házra vágyik,melynek párja nincs a környéken és csak a bőröndöt kell begurítania?
Akkor ne keressen tovább Megtalálta!

A kivitelező törekedett arra,hogy magas minőségű,egyedi kivitelezésű ingatlant alkosson ezen a nem mindennapi környéken!!

A ház – csakúgy, mint a kivitelező számtalan, megtekinthető referencia háza esetében is – magas minőségi anyagok felhasználásával és magas műszaki tartalommal épül.


Fontos, hogy az ingatlanvásárlás hosszú távon is értékálló befektetés legyen!

A házat ajánljuk családosoknak, hiszen itt minden az Állam adta kedvezményt, lehetőséget kihasználhatnak, legyen az Babaváró, CSOK támogatás és hitel is!

Miért ne venné igénybe az Állam adta támogatásokat, lehetőségeket? Döntsön okosan, használja ki amíg lehet!

Rövid műszaki leírás:
-30-as téglafalak
-15cm-szigeteléssel
-tetőn 30cm szigetelés
-Műanyag nyílászárók,szinezett
-rejtett redőnytokok
-elektromos redőnyök
-cserép fedésű tető
-elektromos kapu
- kamerás kaputelefon
- motoros garázs ajtóval
-A fűtés rendszert Immergas típusú 12 kW-os, vízteres, „H tarifa” áram szolgáltatásról működő, levegő hőszivattyú működteti az egész házban padlófűtéssel, a fürdőszobában + törölköző szárító radiátorral , fancoil készülékekkel kiegészítve.
-A használati melegvíz szintén a hőszivattyúhoz kapcsolt hőtárolóval biztosított.

HÍVJON FEL, KÉRJEN EGY IDŐPONTOT, JÖJJÖN, NÉZZE MEG!

Nekem ebben az ingatlanban az elhelyezkedése mellett, a formálhatósága és a benne rejlő rengeteg lehetőség tetszik a legjobban.

Ha Ön is így látja, hívjon, nézze meg, legyen az új tulajdonosa mielőbb!

Ez az ingatlan nem csak egy ház, hanem egy életérzés! Foglaljon időpontot még ma egy személyes megtekintésre!


Nem fogja megbánni!


Szép napot sikeres vásárlást kívánok!

Köszönöm hogy időt szánt a hirdetésemre!

Készséggel állok rendelkezésre további kérdésekkel kapcsolatban!








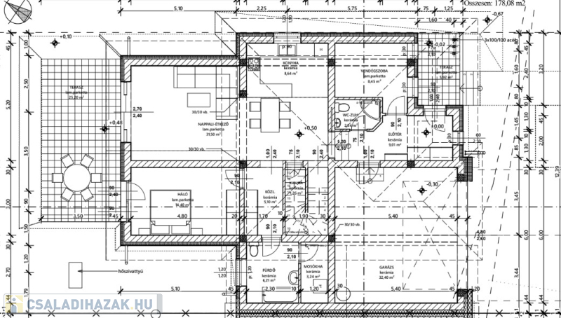
Családi ház részletei

Ár: 211 900 000 Ft
Méret: 178 négyzetméter
Azonosító: 11456876
Telek: 891 négyzetméter
Ingatlan állapota: Átlagos
Jelleg: ikerház
Építőanyag: Kérdezzen rá a hirdetőtől »
Egész szobák: 6

Egyéb jellemzők

  • Csatorna
  • Garázs
  • Kábel TV
  • Melléképület
  • Parketta
  • Pince
  • Terasz

Így keressen családi házat négy egyszerű lépésben. Csupán 2 perc, kötelezettségek nélkül!

Szűkítse a családi házak
listáját
Válassza ki a megfelelő
családi házat
Írjon a hirdetőnek
Várjon a visszahívásra