Eladó családi ház Diósd 210 000 000 Ft

Leírás

Új építésű exkluzív családi ház Diósd legértékesebb részén, Diósdligeten.

Diósd rendezett környezetében formálódik ez a letisztult, luxus megjelenésű családi ház, ahol minden részlet a modern életstílust szolgálja.

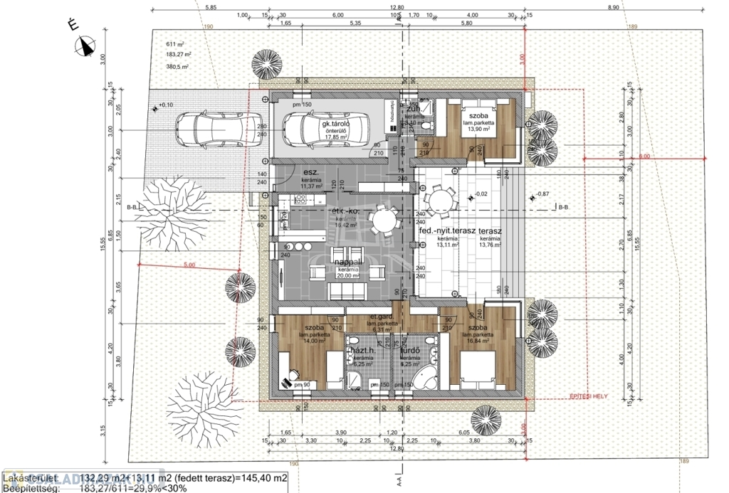
A belső terek elrendezése:
- kényelmes közlekedő
- amerikai konyhás nappali, ahol főzés közben is kapcsolatban maradhat a család és a vendégek
- 3 hálószoba
- mindegyik szobához külön fürdőszoba!
- a nappaliból megközelíthető a szinte egybenyitható hatalmas méretű terasz, ami megnöveli a teret, ahol igazán élvezheti a családi, baráti összejöveteleket
- garázs, melyből közvetlenül megközelítheti a belső tereket, így ha esik, ha fúj, az Ön kényelme teljes mértékben biztosított.

A tágas, amerikai konyhás nappali a ház szíve, amely természetes fénnyel, teraszkapcsolattal válik igazán élhetővé.
A három hálószoba, a garázs és a korszerű gépészet mind azt szolgálja, hogy a kényelem és az energiahatékonyság kéz a kézben járjon.

Prémium műszaki tartalom, ami a jövőnek épül:

Porotherm falazat, monolit vasbeton födém
15 cm grafitos homlokzati hőszigetelés
3 rétegű 7légkamrás antracit nyílászárók elektromos alumínium redőnnyel
hőszivattyús rendszer, H tarifa
teljes padlófűtés
klimatizált terek - központi hűtés és szellőzőrendszer
elektromos redőnyök

Extra előkészítések a jövőre:
napelem- és elektromos autó-töltő
kamerarendszer, riasztó, modern okosmegoldások

Lokáció, ami ritka érték:
Aszfaltozott utca, kész házak környezete, nincs további építkezés.
Budapest mindössze 15 perc autóval, M0, M6, M7 gyorsan elérhető.
Iskola, óvoda, bevásárlás, éttermek – minden karnyújtásnyira.

Nem tömegmegoldás. Nem sablon.
Egy átgondolt, időtálló otthon azoknak, akik minőséget keresnek.

A kivitelezés tapasztalt, referenciákkal rendelkező építőcsapat munkája, e-naplós rendszerrel, átlátható folyamatokkal.
Tervezett átadás: 2026 nyár használatbavételi engedéllyel

A képek között látványtervek szerepelnek, szobákról, nappali berendezés, fürdőszoba. Ötletként kiválóan szolgálnak, az elképzeléseknek a fantázia szab határt.

Ne vigyék el Ön elől! Érdeklődjön és válassza ki még most Ön a burkolatokat, színeket és kövesse tovább az építkezés folyamatát!
Teljes mértékben személyre szabható belső kialakítás:
Burkolatok, szaniterek, beltéri ajtók – az új tulajdonos döntései alapján, rugalmas kivitelezéssel.

Családi ház részletei

Ár: 210 000 000 Ft
Méret: 145 négyzetméter
Azonosító: 11600889
Irodai azonosító: 392800
Cím: Új építés luxus kivitelezés
Telek: 611 négyzetméter
Ingatlan állapota: Kitűnő
Jelleg: családi ház
Építőanyag: Tégla
Fűtés jellege: Geotermikus
Fűtés módja: Hőszivattyú
Komfort fokozat: Dupla komfort
Kor: Új építésű
Szintek száma: Földszintes
Egész szobák: 4

Egyéb jellemzők

  • Csatorna
  • Garázs
  • Pince
  • Terasz

Térkép


Így keressen családi házat négy egyszerű lépésben. Csupán 2 perc, kötelezettségek nélkül!

Szűkítse a családi házak
listáját
Válassza ki a megfelelő
családi házat
Írjon a hirdetőnek
Várjon a visszahívásra