Eladó családi ház Diósd 184 999 999 Ft

Leírás

Kedves Ingatlankereső!

Igényes ,modern otthonra vágyik,ami alacsony rezsivel fenntartható??

Legyen Ön az első tulajdonosa ennek akiváló elosztású családi háznak!

TÖKÉLETES VÁLASZTÁS A NAGYVÁROSOK ZAJÁTÓL TÁVOLI, ENERGIAHATÉKONY ÁLOMOTTHONT KERESŐK SZÁMÁRA!

Szeretné meglepni szeretteit vagy biztonságban tudni a pénzét?

Akkor ha ön is így gondolja ajánlanám ezt az ingatlant!!

JÖJJENEK, NÉZZENEK KÖRÜL, HOGYAN IS ALAKÍTANÁK KI AZ ÖNÖK IGÉNYEI SZERINT SZÉP OTTHONNÁ!!

Kérem hívjon, találkozzunk a helyszínen, hogy körbesétálhassunk a nyugodt , szép környezetben megépülő ingatlant, alakítsuk ki együtt az Ön és kedves családja szép új otthonát :)

Az energiahatékonyság jegyében HŐSZIVATTYÚ rendszert alkalmaztunk, mely nagyon ENERGIATAKARÉKOS FELHASZNÁLÁST tesz lehetővé.

A kivitelező és a tervező/KCSA tervezői csapata/ törekszik arra,hogy magas minőségű,egyedi kivitelezésű ingatlant alkosson ezen a nem mindennapi környéken!!

A ház – csakúgy, mint a kivitelező számtalan, megtekinthető referencia háza esetében is – magas minőségi anyagok felhasználásával és magas műszaki tartalommal épül.

A házat ajánljuk családosoknak, hiszen itt minden az Állam adta kedvezményt, lehetőséget kihasználhatnak, legyen az Babaváró, CSOK támogatás és hitel is!

Miért ne venné igénybe az Állam adta támogatásokat, lehetőségeket? Döntsön okosan, használja ki amíg lehet!

Leendő tulajdonosának lehetősége van az alaprajzon a statikát nem érintő, mozgatható válaszfalak módosítására, igénye szerint, valamint a belső burkolatok, ajtók kiválasztására, megadott értékhatárig.

Ez az ingatlan részleteiben igen gazdag elgondolás szerint lesz megépítve. Tapasztalt a kivitelező cég, így megannyi referencia munkával igazolható, hogy a megálmodástól a megvalósításhoz vezető út nem csak egy illúzió. Az építkezés során szigorúan csak a legmagasabb minőségű anyagokat fogja a kivitelező felhasználni, hogy igazán exkluzív otthont hozzon létre.
Mindemellett számítunk az Ön igényeinek bevonásaira is, burkolatok és szaniterek és egyéb kiegészítők tekintetében.

A ház szinte minden helyén garantált a lakók állandó kapcsolata a természettel, akik minden évszakban élvezni tudják majd a csodálatosan változó tájat. Az ingatlan további előnye a hangulatos, PANORÁMÁS ÜVEGKORLÁTOS terasz,amely szimbólikus kapocs a belső tér és a kert között.

A környezettel harmóniában lévő kényelmi valamint a funkcionális megoldások hosszú évekre szóló örök értéket teremtenek.

Rövid műszaki leírás:
-30-as tégla fal
-10-es válaszfalak
-műanyag nyílászárók
-elektromos redőnyök
-szúnyoghálók
-terasz ajtó tolós
-hőszivattyús fűtés rendszer
-H tarifa
-15cm szigetelés
-elektromos garázs kapu
-üvegkorlátok
-riasztó rendszer-kamerarendszer kiépítése
-burkolatok 10 000ft/nm áron



Aki a csendre, nyugalomra vágyik a zöldövezetben, luxus környezetben szeretne élni, de fontos neki, hogy elérhető távolságra legyen a város nyüzsgése is, annak kiváló választás ez a környék.

HÍVJON FEL, KÉRJEN EGY IDŐPONTOT, JÖJJÖN, NÉZZE MEG!

Nekem ebben az ingatlanban az elhelyezkedése mellett, a formálhatósága és a benne rejlő rengeteg lehetőség tetszik a legjobban.

Ha Ön is így látja, hívjon, nézze meg, legyen az új tulajdonosa mielőbb!

Nem fogja megbánni!


Szép napot sikeres vásárlást kívánok!

Köszönöm hogy időt szánt a hirdetésemre!


























Amennyiben Ön egy prémium lokációban lévő, magas minőségű, egyedi ingatlant keres és máshol nem tapasztalható vevőorientált vevőkapcsolatot és Önre szabott házvéglegesítést szeretne DIÓSDON, úgy várjuk megtisztelő hívását! Jöjjön el, nézze meg ezt a most kezdődő építkezést és bizonyosodjon meg róla, hogy miként lehet és kell prémium minőséget és vevői igényekre szabott szolgáltatást nyújtani az újépítésű ingatlanok piacán!

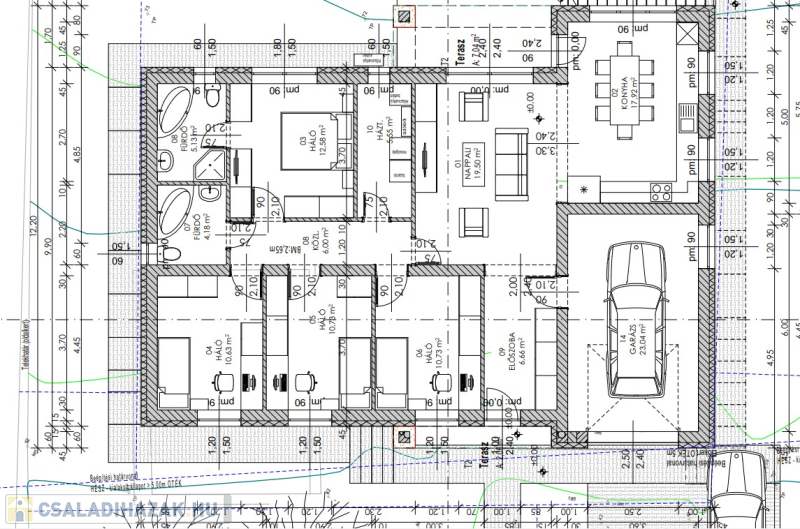
Családi ház részletei

Ár: 184 999 999 Ft
Méret: 140 négyzetméter
Azonosító: 11456833
Telek: 619 négyzetméter
Ingatlan állapota: Átlagos
Jelleg: családi ház
Építőanyag: Kérdezzen rá a hirdetőtől »
Egész szobák: 5

Egyéb jellemzők

  • Csatorna
  • Garázs
  • Kábel TV
  • Melléképület
  • Parketta
  • Pince
  • Terasz

Így keressen családi házat négy egyszerű lépésben. Csupán 2 perc, kötelezettségek nélkül!

Szűkítse a családi házak
listáját
Válassza ki a megfelelő
családi házat
Írjon a hirdetőnek
Várjon a visszahívásra