Eladó családi ház Debrecen 79 900 000 Ft

Leírás

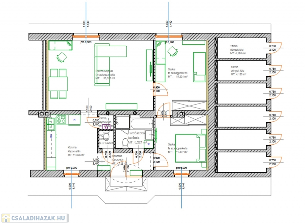
Debrecen Nagyerdőalja városrészén a Zrinyi utca és a Jánosi utca közelében eladó egy 78 nm földszintes társasházi sorház ingatlan.

Az ingatlan főbb jellemzői.:

- csendes kis utcában található
- tégla építés
- gázcirkó fűtés
- padlásfödém hőszigetelt
- műanyag nyílás zárók redőnnyel szerelve
- nappali + 2 szoba
- a szobák valódi fapadlósak
- fürdőszoba külön wc
- gyönyörűen parkosított kert
- 2 db tároló
- 12 nm garázs

Bővebb információkért kapcsolatban kérem keressen bizalommal.

Családi ház részletei

Ár: 79 900 000 Ft
Méret: 78 négyzetméter
Azonosító: 11544901
Irodai azonosító: HK-4970421-4970421
Telek: 200 négyzetméter
Ingatlan állapota: Kitűnő
Jelleg: sorház
Építőanyag: Tégla
Fűtés jellege: Cirkó
Fűtés módja: Gáz
Komfort fokozat: Összkomfort
Szintek száma: Földszintes
Egész szobák: 3

Egyéb jellemzők

  • Garázs

Térkép


Így keressen családi házat négy egyszerű lépésben. Csupán 2 perc, kötelezettségek nélkül!

Szűkítse a családi házak
listáját
Válassza ki a megfelelő
családi házat
Írjon a hirdetőnek
Várjon a visszahívásra