Eladó családi ház Debrecen 274 800 000 Ft

Leírás

Fedezd fel ezt a két szintes, modern családi házat, ahol a kényelem és az átgondolt kialakítás találkozik. A letisztult formák, a világos terek és a praktikus megoldások mind azt szolgálják, hogy igazán otthon érezd magad.

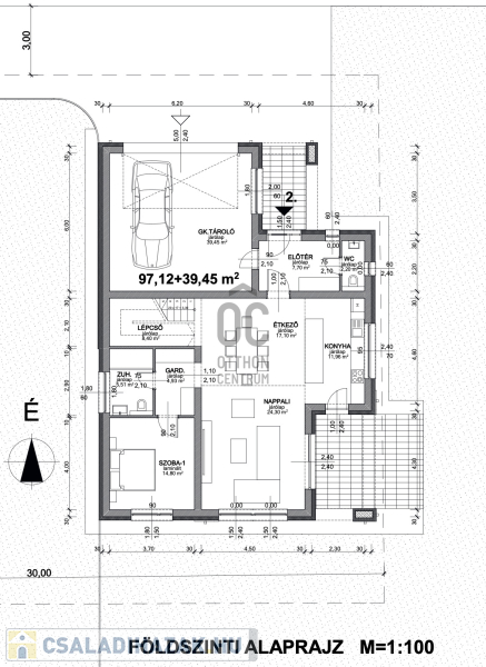
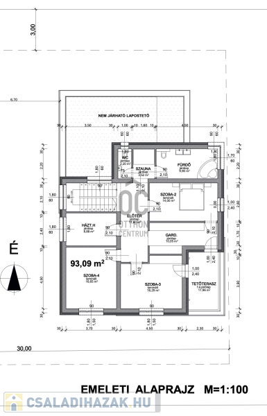
Ez a ház azoknak fog készülni, akik nem szeretnének kompromisszumot kötni: tágas nappali, jól elkülönülő szobák, saját szauna és tetőterasz – itt minden megvan, ami egy kényelmes, mégis stílusos élethez kell.

Főbb műszaki jellemzők:
* 30 cm Porotherm tégla falazat, monolit vasbeton födém és koszorú
* Prémium hőszigetelés – XPS a lábazatnál és a koszorúknál
* Korszerű 3 rétegű nyílászárók (Uw=0,8 W/m²K)
* Repedésmentes vakolatréteg üvegszövethálóval megerősítve
* Edzett üveg korlátok, alumínium bádogozás
* Magas minőségű burkolatok, mennyezetig csempézett fürdők
* Monolit vasbeton garázs, szekcionált kapuval

Kényelmi extrák:
* Teljes belső kialakítás személyre szabható
* 4 külön nyíló szoba + gardrób
* Saját szauna az emeleten
* Tetőterasz a pihenéshez vagy napozáshoz
* Nappaliban dupla belmagasság, természetes fényár
* Térkövezett bejáró, saját kert
* Zárt garázs közvetlen kapcsolattal a házhoz

Ez az otthon nem csak egy ház, hanem egy lehetőség, hogy a saját ízlésedre szabott, modern életteret teremts magadnak és családodnak.

Tetszik? Akkor hívj most! Lehet, hogy ez lesz az a ház, ahonnan már nem akarsz tovább keresgélni.

Átadás 12 hónapon belül.

Családi ház részletei

Ár: 274 800 000 Ft
Méret: 229 négyzetméter
Azonosító: 11517319
Telek: 782 négyzetméter
Ingatlan állapota: Kitűnő
Jelleg: családi ház
Építőanyag: Kérdezzen rá a hirdetőtől »
Egész szobák: 5

Egyéb jellemzők

  • Csatorna
  • Garázs
  • Kábel TV
  • Melléképület
  • Parketta
  • Pince
  • Terasz

Így keressen családi házat négy egyszerű lépésben. Csupán 2 perc, kötelezettségek nélkül!

Szűkítse a családi házak
listáját
Válassza ki a megfelelő
családi házat
Írjon a hirdetőnek
Várjon a visszahívásra