Eladó családi ház Debrecen 268 900 000 Ft

Leírás

Képzeld el, hogy egy olyan új otthonra bukkantál, amely minden álmodat valóra váltja!

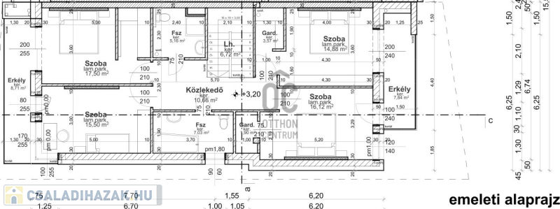
Debrecen csendes, barátságos, kertvárosias városrészében, a Vezér-lakótelepen található ez a prémium kivitelezésű, modern ház, amely ideális választás családosok számára. A 212 négyzetméteres alapterület és a 420 négyzetméteres telek tökéletes teret biztosít a kényelmes élethez. A házban összesen 6 szoba található, így bőven van hely a család minden tagjának, valamint a vendégek fogadására is. A három fürdőszoba pedig garantálja, hogy soha ne kelljen sorban állni a reggeli készülődés során. Az ingatlan kiváló állapotban van, így azonnal költözhető. A hőszivattyús fűtés és a mennyezethűtés biztosítja, hogy a hőmérséklet mindig kellemes legyen, függetlenül az évszaktól. Az erkélyek, melyek összesen 17 négyzetméter nagyságú, tökéletes helyszín a reggeli kávézáshoz vagy a naplementék élvezetéhez. A panorámás kilátás pedig csak tovább fokozza az otthon varázsát. A belső burkolatok, beltéri ajtók, szaniterek a vételár részét képezik. A környék csendes és biztonságos, ideális helyszín a családi élethez. A közeli közlekedési lehetőségek könnyedén elérhetőek, így a város többi része is gyorsan megközelíthető. A városrész zöldövezete és a közeli park remek lehetőséget kínálnak a szabadtéri programokra, sétákra, valamint a gyerekek szabadidős tevékenységeire. A környéken található boltok, iskolák és óvodák pedig mind hozzájárulnak ahhoz, hogy az itt élők kényelmesen és boldogan élhessenek.

Ez az ingatlan nem csupán egy ház, hanem egy otthon, ahol a család minden tagja megtalálhatja a számításait. Ha bármilyen kérdésed van, vagy szeretnéd megtekinteni ezt a csodás ingatlant, bátran keress meg! Örömmel állunk rendelkezésedre, hogy megtaláld a tökéletes otthont!

Családi ház részletei

Ár: 268 900 000 Ft
Méret: 212 négyzetméter
Azonosító: 11503063
Telek: 420 négyzetméter
Ingatlan állapota: Átlagos
Jelleg: ikerház
Építőanyag: Kérdezzen rá a hirdetőtől »
Egész szobák: 6

Egyéb jellemzők

  • Csatorna
  • Garázs
  • Kábel TV
  • Melléképület
  • Parketta
  • Pince
  • Terasz

Így keressen családi házat négy egyszerű lépésben. Csupán 2 perc, kötelezettségek nélkül!

Szűkítse a családi házak
listáját
Válassza ki a megfelelő
családi házat
Írjon a hirdetőnek
Várjon a visszahívásra