Eladó családi ház Debrecen 219 990 000 Ft

Leírás

Kivételes Lehetõség: Többgenerációs Családi Ház Eladó Debrecen Közkedvelt Akadémiakert Városrészében!

Debrecenben az Akadémiakertben 210m2-es kétgenerációs ház 588m-es telekkel eladó!

Ideális otthon nagycsaládosoknak, összeköltözõknek, vállalkozóknak vagy befektetésnek egyaránt! Debrecen egyik legkedveltebb és legigényesebb városrészében, az Akadémiakertben eladó egy tágas, két külön bejáratú lakrésszel rendelkezõ családi ház, amely tökéletesen alkalmas több generáció együttélésére, családi rendezvények tartására. Az Akadémiakert a város egyik legkeresettebb lokációja, kiváló lakóközösséggel és nyugodt, családi környezettel. Az ingatlan tehermentes, és igény szerint 3-6 hónapon belül birtokba vehetõ.

A Ház Fõbb Jellemzõi:

•Két Külön Lakrész: A ház két, teljesen szeparált lakrésszel rendelkezik, melyek mindegyike külön bejárattal közelíthetõ meg. Ez garantálja a privát szférát és a kényelmet minden lakó számára, miközben a családi összetartozás érzése is megmarad.
•Frekventált Elhelyezkedés: Debrecen közkedvelt és igen igényes Akadémiakert városrészében található, így a fontosabb szolgáltatások, boltok, iskolák, óvodák és orvosi rendelõk könnyen elérhetõk. A fõbb közlekedési útvonalak közelsége kiváló megközelíthetõséget biztosít.
•Parkolás: Az 588 nm-es telken belül több autó számára is biztosított a kényelmes parkolás, valamint az utcafronton, térköves részen is legalább 3 autóval lehet parkolni, így sosem kell aggódnia a helyhiány miatt.
•Összközmûves: Az ingatlan teljesen összközmûves, minden szükséges közmûvel rendelkezik (víz, villany, gáz, csatorna).
•Energiatakarékos: Mindkét ház 10 cm-es hõszigeteléssel rendelkezik, ami hozzájárul az alacsony rezsiköltséghez.

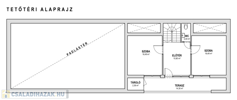
Az Elsõ Ház Részletes Leírása:

A 80-as években épült, gondosan karbantartott 90 m2-es, földszintes téglaépítésû családi ház tökéletes választás a kényelmes életvitelhez. Az ingatlan szigetelt, melynek köszönhetõen alacsony a rezsiköltsége, ezt tová

Családi ház részletei

Ár: 219 990 000 Ft
Méret: 210 négyzetméter
Azonosító: 11548960
Irodai azonosító: 17877
Cím: Akadémiakertben 210m2-es 2 generációs ház 588m2-es kerttel e
Telek: 587 négyzetméter
Ingatlan állapota: Kitűnő
Jelleg: családi ház
Építőanyag: Kérdezzen rá a hirdetőtől »
Fűtés jellege: Cirkó
Komfort fokozat: Összkomfort
Szintek száma: Földszintes
Egész szobák: 8

Így keressen családi házat négy egyszerű lépésben. Csupán 2 perc, kötelezettségek nélkül!

Szűkítse a családi házak
listáját
Válassza ki a megfelelő
családi házat
Írjon a hirdetőnek
Várjon a visszahívásra