Eladó családi ház Debrecen, Belváros, 199 000 000 Ft

Leírás

PRÉMIUM BELVÁROSI ÉLETTÉR – LUXUS IKERHÁZ DEBRECENBEN!

Debrecen egyik legcsendesebb, mégis abszolút belvárosi utcájában, kínálunk megvételre egy 170 m²-es, új építésű, prémium kategóriás ikerházat, DUPLA GARÁZZSAL.
Ez az ingatlan azoknak szól, akik nem kompromisszumot keresnek, hanem minőséget és nyugalmat a város szívében.
-Az ár kulcsrakész állapotra vonatkozik.
-A jelenlegi 90%-os készültség lehetőséget ad a végső részletek személyre szabására.
Életstílus, nem csak ingatlan!

Ez a ház ideális választás azoknak, akik:
a belváros közelségét szeretnék élvezni
de nem akarnak lemondani a csendről és privát élettérről
fontos számukra a minőség, design és modern technológia.
- Ritka kombináció: városi élet + kert + nyugalom + prémium kivitelezés

Kinek szól valójában?
Felsővezetőknek, vállalkozóknak
Akik értékelik az időt, a kényelmet és a reprezentatív környezetet.
Orvosoknak, ügyvédeknek, értelmiségi rétegnek
Akik számára a lokáció presztízst, a környezet pedig nyugalmat jelent.
Családoknak, akik szintet lépnének
Ahol a gyerekeknek tér jut, a szülőknek pedig valódi élettér.

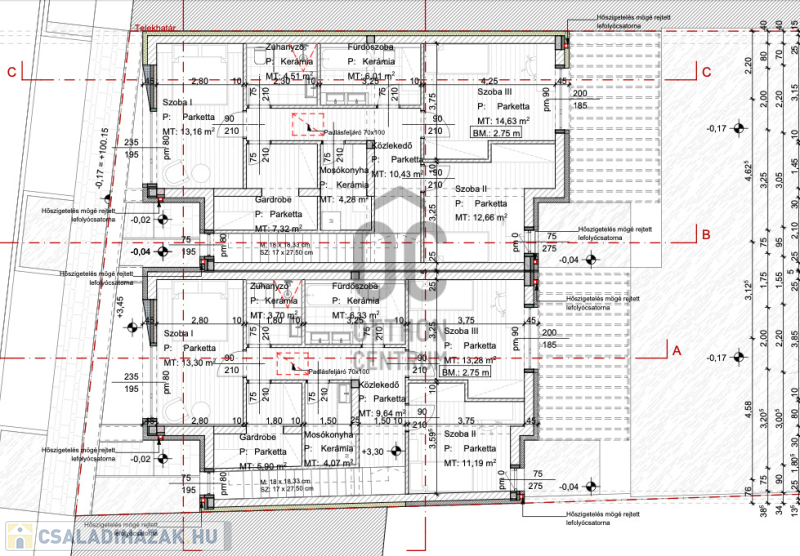
Terek, amik élhetőek
tágas nappali–étkező–konyha – a mindennapi élet központja
3 külön nyíló hálószoba – privát életterek
3 fürdőszoba – kompromisszummentes kényelem
gardrób + háztartási helyiség
dupla garázs közvetlen bejutással
- A jelenlegi állapot lehetőséget ad arra, hogy nem egy kész sablont kap, hanem saját otthont hoz létre.

Technológia, ami a komfortot szolgálja
Daikin hőszivattyús rendszer
teljes felületen padlófűtés
klimatizált helyiségek
elektromos alumínium okos redőnyök
vízlágyító rendszer
komplett riasztó- és kamerarendszer
kamerás kaputelefon

Külső terek
parkosított kert
automata öntözőrendszer
robotfűnyíró előkészítés
- Minimális ráfordítás, maximális komfort.

Mi teszi igazán értékessé?
Belvárosi elhelyezkedés, mégis csend
új építés, prémium műszaki tartalom
kulcsrakész ár – tervezhető költségek
még személyre szabható
hosszú távon is értékálló ingatlan

Befektetőknek
A lokáció és a műszaki tartalom miatt kiemelkedő értékállóság, prémium bérlői kör, hosszú távon stabil hozam.

Összegzés
Ez az ingatlan nem azoknak szól, akik csak “lakást keresnek”.
Ez azoknak szól, akik tudják, mit jelent a minőségi élettér.

Ha Ön is ebbe a körbe tartozik, hívjon bizalommal és nézze meg személyesen.
Az ilyen ingatlanok nem sokáig maradnak a piacon.

Családi ház részletei

Ár: 199 000 000 Ft
Méret: 150 négyzetméter
Azonosító: 11584840
Városrész: Belváros
Telek: 235 négyzetméter
Ingatlan állapota: Kitűnő
Jelleg: ikerház
Építőanyag: Kérdezzen rá a hirdetőtől »
Egész szobák: 4

Egyéb jellemzők

  • Csatorna
  • Garázs
  • Kábel TV
  • Melléképület
  • Parketta
  • Pince
  • Terasz

Így keressen családi házat négy egyszerű lépésben. Csupán 2 perc, kötelezettségek nélkül!

Szűkítse a családi házak
listáját
Válassza ki a megfelelő
családi házat
Írjon a hirdetőnek
Várjon a visszahívásra