Eladó családi ház Debrecen 188 520 000 Ft

Leírás

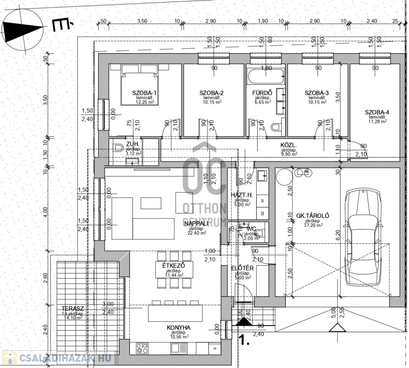
Eladó Nagymacson, a BMW-től 1 percre, új építésű, 157 m2-es, nappali-amerikai konyha-étkező + 4 külön nyíló szobás, dupla garázsos ikerház, 660 m2 telekkel, az alábbiak szerint:

> földszintes kivitelezésben, nagy és világos terek
> a nappali-konyha-étkező rész önmagában 44 m2, amihez kapcsolódik a félig fedett 14 m2-es terasz
> a hőszivattyús fűtés elektromos igényét teljes egészében fedezi az 5 kW-os napelem rendszer, ezért az épület fenntarthatósága kiváló
> 2 fürdőszoba és 3 WC biztosítja a reggeli készülődés zökkenőmentességét
> mind a 4 hálószoba külön nyílik és jól szeparált a nappali résztől, ezért a nyugodt pihenés garantált
> a szekcionált garázskapu is hőszigetelt, elektromos távirányítóval szerelt
> térkőburkolat, tereprendezés, füvesítés
> választható burkolatok színben és anyagban is (járólap-vinyl-laminált parketta)
> igény szerint a teraszhoz előtető rendelhető
> vételár tartalmazza az oldalsó- , utcafronti- , hátsó kerítés kialakításának a költségét, valamint az utcafronti elektromos, távírányítós nagykapu árát is
> a burkolatok mellett a beltéri ajtók is választhatók

Részletes műszaki tartalomért, további információkért, megtekintési időpontért hívja kollégánkat a hét minden napján!

Családi ház részletei

Ár: 188 520 000 Ft
Méret: 157 négyzetméter
Azonosító: 11573637
Telek: 660 négyzetméter
Ingatlan állapota: Kitűnő
Jelleg: ikerház
Építőanyag: Kérdezzen rá a hirdetőtől »
Egész szobák: 5

Egyéb jellemzők

  • Csatorna
  • Garázs
  • Kábel TV
  • Melléképület
  • Parketta
  • Pince
  • Terasz

Így keressen családi házat négy egyszerű lépésben. Csupán 2 perc, kötelezettségek nélkül!

Szűkítse a családi házak
listáját
Válassza ki a megfelelő
családi házat
Írjon a hirdetőnek
Várjon a visszahívásra