Eladó családi ház Debrecen 169 000 000 Ft

Leírás

A HUSZTI LAKÓPARKBAN ÉLNI: EGY ÉLETÉRZÉS

Debrecenben a Huszti lakóparkban új építésű, modern, földszintes ikerház épül,
magas műszaki tartalommal.

Az épület főbb jellemzői:
- falazata 38 cm-es YTONG
- válaszfalak 10 cm-es válaszfal YTONG-ból falazva
- zárófödémen 30 cm-es URSA kőzetgyapot szigetelés
- homlokzati nyílászárók háromrétegű üvegezéssel, hatkamrás műanyag szerkezettel,
redőnnyel szerelve
- riasztó, térfigyelő rendszer és kaputelefon előkészítés
- burkolatválasztás műszaki leírás szerint
- hőszivattyúról üzemelő padlófűtés
- hőszivattyúról üzemelő mennyezethűtés
- 1 MFt értékben beépített konyha
- gk. bejáró és bejárat térkövel burkolva
- Várható átadás 2026. 08. 31.

Az ingatlan 30% befizetéssel leköthető.
Hitel, támogatott hitel igénybe vehető!

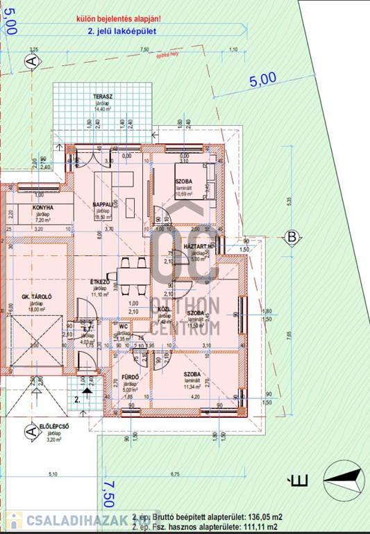
Családi ház részletei

Ár: 169 000 000 Ft
Méret: 111 négyzetméter
Azonosító: 11598665
Telek: 519 négyzetméter
Ingatlan állapota: Kitűnő
Jelleg: ikerház
Építőanyag: Kérdezzen rá a hirdetőtől »
Egész szobák: 4

Egyéb jellemzők

  • Csatorna
  • Garázs
  • Kábel TV
  • Melléképület
  • Parketta
  • Pince
  • Terasz

Így keressen családi házat négy egyszerű lépésben. Csupán 2 perc, kötelezettségek nélkül!

Szűkítse a családi házak
listáját
Válassza ki a megfelelő
családi házat
Írjon a hirdetőnek
Várjon a visszahívásra