Eladó családi ház Debrecen 140 000 000 Ft

Leírás


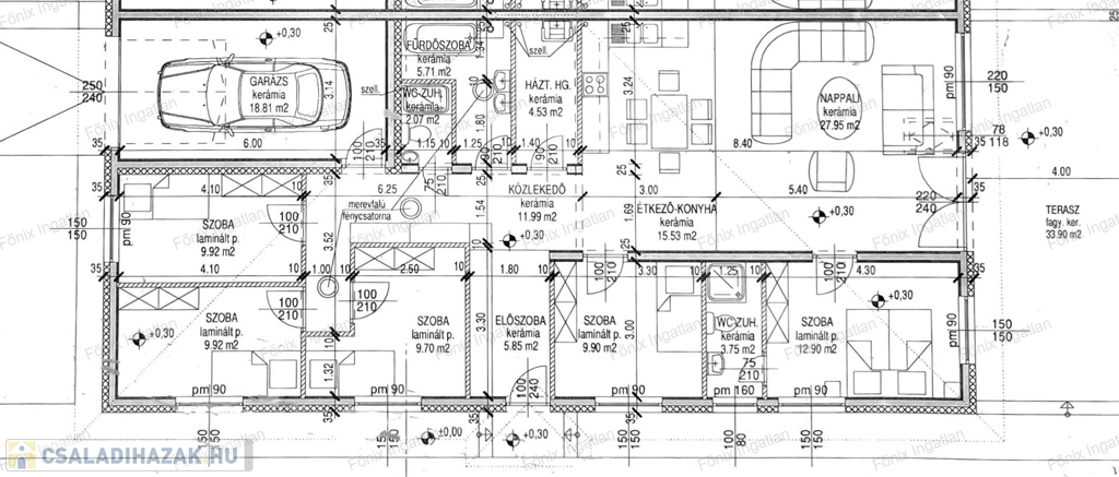
Szeretné a nyugalmat és a kényelmet kompromisszumok nélkül? Akkor ez a 147 nm-es, új építésű, modern elrendezésű ikerház tökéletes választás!  

 

Egyszintes | 5 hálószoba | 147 m² | 900 m² saját telek  

Energiatakarékos hőszivattyús fűtés  

 

Elhelyezkedés: Debrecen, Felsőjózsa – autópálya közelében, csendes, fejlődő környéken.  

 

Műszaki jellemzők:  

- Masszív szerkezet – 35 cm szigetelt Thermo blokk falazat, 65 cm-es ikerházfalak  

- Prémium szigetelés – 20 cm homlokzati, 25 cm födém, 12 cm padlószigetelés  

- Modern fűtés – Hőszivattyúról működő padlófűtés minden helyiségben  

- 5,2 Kw napelem hozzátartozó akkumulátor pakkal, hibrid inverterrel

- Tartós és esztétikus tető – Leier Toscana cserép  

- Garázs – 19,42 m²  

 

Kulcsrakész kivitelezés tartalma: 

- Utcafronti kerítés elektronikai kiállással  

- Térkövezett autófelhajtó és biztonsági járdák  

- Klíma előkészítés  

- Kiegészítő bojler + „H” tarifa  

- Külön mérőórák és szikkasztó rendszer  

 

Személyre szabható dizájn! 

A burkolatok és szaniterek kiugró esztétikai minőségben választhatók, így teljesen a saját ízlésére formálhatja!  

 

Várható átadás:  2025. október vége.  

 

Érdeklődjön most, és biztosítsa be új otthonát!

 

Családi ház részletei

Ár: 140 000 000 Ft
Méret: 147 négyzetméter
Azonosító: 11503800
Irodai azonosító: 705100145
Telek: 900 négyzetméter
Ingatlan állapota: Átlagos
Jelleg: ikerház
Építőanyag: Tégla
Komfort fokozat: Dupla komfort
Kor: Új építésű
Egész szobák: 5

Így keressen családi házat négy egyszerű lépésben. Csupán 2 perc, kötelezettségek nélkül!

Szűkítse a családi házak
listáját
Válassza ki a megfelelő
családi házat
Írjon a hirdetőnek
Várjon a visszahívásra