Eladó családi ház Debrecen 134 990 000 Ft

Leírás

Modern családi otthon saját kerttel a népszerû Bartók Lakóparkban eladó!

Költözzön a nyugalom szigetére!

Eladó a Bartók Lakópark egy praktikus elrendezésû, 119 m2-es, új építésû sorháza. Ez az ingatlan tökéletes választás azoknak, akik nem akarnak kompromisszumot kötni a minõség és a kényelem között.

Fõbb jellemzõk:
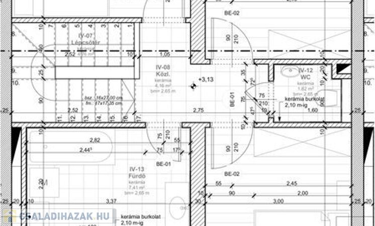
Tér és elrendezés: Világos, amerikai konyhás nappali + 3 külön nyíló hálószoba.
Dupla komfort: A földszinten zuhanyzós fürdõ WC-vel, az emeleten tágas, kádas fürdõszoba és külön WC található.
Saját kert: 200 m2-es telek, amely pont akkora, hogy élvezhetõ legyen a grillezés és a játék, de a fenntartása ne legyen teher.
Parkolás: Saját garázs biztosítja az autó védelmét és az extra tárolóhelyet.

Ne maradjon le róla, hívjon és nézzük meg együtt!

Családi ház részletei

Ár: 134 990 000 Ft
Méret: 119 négyzetméter
Azonosító: 11589860
Irodai azonosító: 18097
Cím: Új építésû sorház eladó
Telek: 202 négyzetméter
Ingatlan állapota: Kitűnő
Jelleg: sorház
Építőanyag: Kérdezzen rá a hirdetőtől »
Fűtés jellege: Cirkó
Komfort fokozat: Összkomfort
Szintek száma: Földszintes
Egész szobák: 4

Így keressen családi házat négy egyszerű lépésben. Csupán 2 perc, kötelezettségek nélkül!

Szűkítse a családi házak
listáját
Válassza ki a megfelelő
családi házat
Írjon a hirdetőnek
Várjon a visszahívásra