Eladó családi ház Debrecen 129 900 000 Ft

Leírás

Debrecen 10 percen belül elérhető távolságban van Autóval a háztól, autópálya felhajtó pár percre!

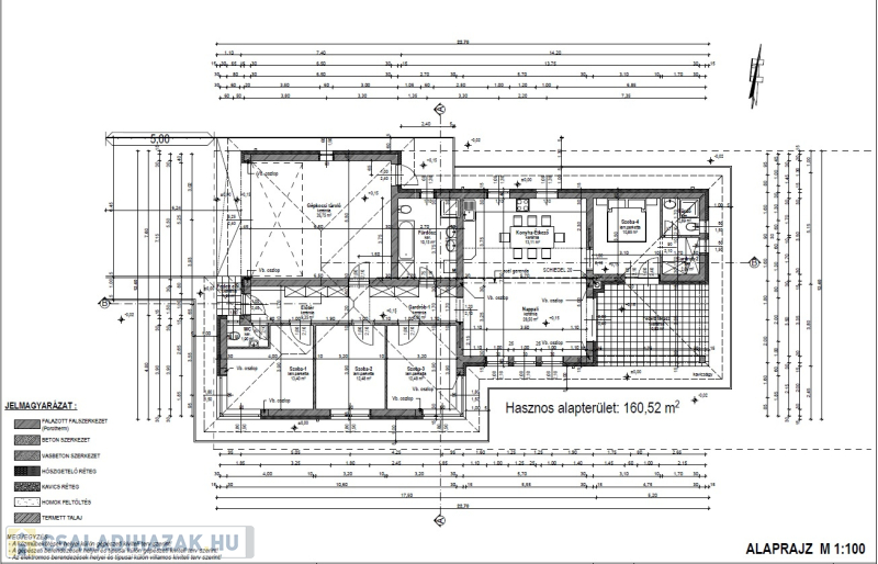
Eladó építés előtt álló családi ház, melyet magas műszaki tartalommal terveznek megépíteni és még átalakítható fázisban van!

Ingatlan főbb jelenlegi építési paraméterei:

- 1400 nm-es (20m utcafronttal) telken lesz megépítve
- Tervezett 170 nm-es nettó méretű tégla ház 15 cm-es külső szigeteléssel
- Mediterrán stílusú kinézet, és letérkövezett rendezett udvar lett megálmodva
- 4 háló+nappali és nagy konyhás elosztás
- 2 fürdőszoba, 3 wc-vel
- Fedett 10 nm-es terasz déli fekvéssel
- 35 nm-es fűtött dupla garázs
- Hőszivattyús fűtésrendszer padlófűtéssel
- Műanyag nyílászárók elektromos redőnnyel és szúnyoghálóval
- 5 db klíma szolgáltatja majd a hűvös levegőt a nyári napokon
- Cserép héjazat szín azonos ereszcsatornával
- Kerítéssel körbevett terület kerül átadásra

Ha csendre vágyik elérhető áron és távolságban Debrecentől, akkor megtalálta!

Ha új építésű ingatlanba szeretne költözni, egy több évtizedes múlttal rendelkező kivitelezőtől, keressen bizalommal!

Családi ház részletei

Ár: 129 900 000 Ft
Méret: 170 négyzetméter
Azonosító: 11538550
Telek: 1400 négyzetméter
Ingatlan állapota: Kitűnő
Jelleg: családi ház
Építőanyag: Kérdezzen rá a hirdetőtől »
Egész szobák: 5

Egyéb jellemzők

  • Csatorna
  • Garázs
  • Kábel TV
  • Melléképület
  • Parketta
  • Pince
  • Terasz

Így keressen családi házat négy egyszerű lépésben. Csupán 2 perc, kötelezettségek nélkül!

Szűkítse a családi házak
listáját
Válassza ki a megfelelő
családi házat
Írjon a hirdetőnek
Várjon a visszahívásra