Eladó családi ház Debrecen 129 990 000 Ft

Leírás

Álmai otthona a Bartók lakóparkban - ahol a minõség és a nyugalom találkozik!

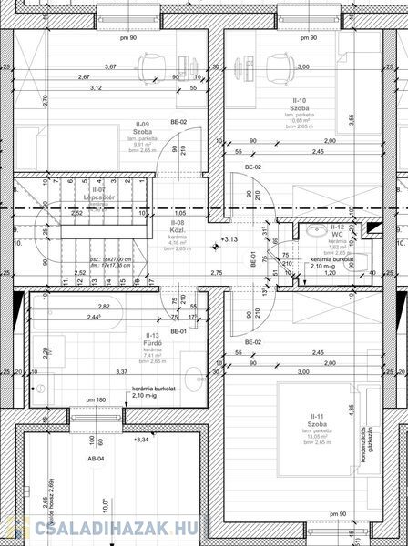
Eladóvá vált ez a prémium minõségû, új építésû, kétszintes, 119 m2-es sorházi lakás, amely minden igényt kielégít!

Miért fogja imádni?
- Tágas terek: Amerikai konyhás, étkezõs nappali + 3 külön nyíló hálószoba.
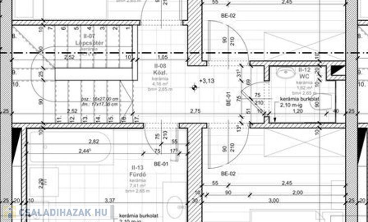
- Kényelem: Két fürdõszoba és két WC segíti a reggeli készülõdést.
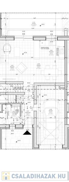
- Biztonság: 19 m2-es saját garázs az autója védelméért.
- Kikapcsolódás: 198 m2-es saját telek, 14 m2-es terasz a nyári estékhez.

Ez az ingatlan nemcsak egy lakás, hanem egy életforma a város egyik legkedveltebb lakóparkjában.
Nézze meg személyesen, szeressen bele! Kérjen idõpontot a megtekintéshez!
További mûszaki tartalomért és megtekintésért keressen bizalommal!

Családi ház részletei

Ár: 129 990 000 Ft
Méret: 119 négyzetméter
Azonosító: 11589660
Irodai azonosító: 18093
Cím: Új építésû sorház eladó
Telek: 198 négyzetméter
Ingatlan állapota: Kitűnő
Jelleg: sorház
Építőanyag: Kérdezzen rá a hirdetőtől »
Fűtés jellege: Cirkó
Komfort fokozat: Összkomfort
Szintek száma: Földszintes
Egész szobák: 4

Így keressen családi házat négy egyszerű lépésben. Csupán 2 perc, kötelezettségek nélkül!

Szűkítse a családi házak
listáját
Válassza ki a megfelelő
családi házat
Írjon a hirdetőnek
Várjon a visszahívásra