Eladó családi ház Debrecen 127 000 000 Ft

Leírás

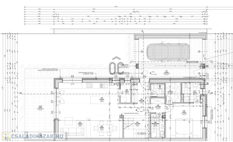
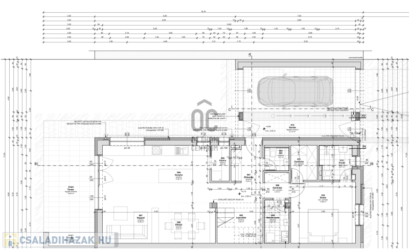
Józsaközpont Lakópark II. ütemében eladók azonnal költözhető, 184 m2-es, nappali-amerikai konyha + 4 egész szobás, dupla master bedroomos, önálló családi házak!
Projekt leírás
Debrecen-Józsa központjában már megépült, burkolás után azonnal költözhető (burkolatok még választhatók), önálló családi házak eladók, az alábbi paraméterekkel:
- 184 m2 nettó alapterületben a nappali-amerikai konyha mellett 4 egész szoba került kialakításra úgy, hogy a földszinten és az emeleti részen is helyet kapott egy-egy szülői hálónak megfelelelő, master bedroom kialakítású hálószoba, ahol saját fürdő és gardrób áll rendelkezésre
- a további 2 hálószoba is egész szoba, ezekhez egy 8 m2-es, kényelemes fürdőszoba tartozik
- az ingatlan mindkét szintjén több gardrób szoba és további gardróbszekrény beépítési lehetőséget építettek
- a fűtésről kondenzációs gázkazán gondoskodik, kiváló hatásfokkal, nagyon alacsony rezsivel
- szintenként került beépítésre hűtő-fűtő klíma
- a műanyag nyílászárókon redőny és rovarhálók találhatók
- az 500 m2-es telek körbe van kerítve, a kerítés ára is benne van a vételárban
- a garázson mindkét oldalon hőszigetelt Hörmann garázskapuk vannak, ezért a hátsó kertbe is biztosított az átjárás
- a konyha konyhaszigetes konyhabútornak van előkészítve
- a szeméttároló helye is ki van építve
- kiskapu, nagykapu elkészült, elektromos távirányításhoz elő van készítve
- burkolatválasztást követően 60 napon belül költözhető
- CSOK+ és más támogatás igénybe vehető

Részletes műszaki tartalommal és megtekintéssel kapcsolatban várjuk hívását a hét minden napján!
Projekt bemutatása

Debrecen-Józsa központjában már megépült, burkolás után azonnal költözhető (burkolatok még választhatók), önálló családi házak eladók, az alábbi paraméterekkel:
- 184 m2 nettó alapterületben a nappali-amerikai konyha mellett 4 egész szoba került kialakításra úgy, hogy a földszinten és az emeleti részen is helyet kapott egy-egy szülői hálónak megfelelelő, master bedroom kialakítású hálószoba, ahol saját fürdő és gardrób áll rendelkezésre
- a további 2 hálószoba is egész szoba, ezekhez egy 8 m2-es, kényelemes fürdőszoba tartozik
- az ingatlan mindkét szintjén több gardrób szoba és további gardróbszekrény beépítési lehetőséget építettek
- a fűtésről kondenzációs gázkazán gondoskodik, kiváló hatásfokkal, nagyon alacsony rezsivel
- szintenként került beépítésre hűtő-fűtő klíma
- a műanyag nyílászárókon redőny és rovarhálók találhatók
- az 500 m2-es telek körbe van kerítve, a kerítés ára is benne van a vételárban
- a garázson mindkét oldalon hőszigetelt Hörmann garázskapuk vannak, ezért a hátsó kertbe is biztosított az átjárás
- a konyha konyhaszigetes konyhabútornak van előkészítve
- a szeméttároló helye is ki van építve
- kiskapu, nagykapu elkészült, elektromos távirányításhoz elő van készítve
- burkolatválasztást követően 60 napon belül költözhető
- CSOK+ és más támogatás igénybe vehető

Részletes műszaki tartalommal és megtekintéssel kapcsolatban várjuk hívását a hét minden napján!

Családi ház részletei

Ár: 127 000 000 Ft
Méret: 184 négyzetméter
Azonosító: 11573487
Telek: 500 négyzetméter
Ingatlan állapota: Kitűnő
Jelleg: családi ház
Építőanyag: Kérdezzen rá a hirdetőtől »
Fűtés jellege: Cirkó
Egész szobák: 5

Egyéb jellemzők

  • Csatorna
  • Garázs
  • Kábel TV
  • Melléképület
  • Parketta
  • Pince
  • Terasz

Így keressen családi házat négy egyszerű lépésben. Csupán 2 perc, kötelezettségek nélkül!

Szűkítse a családi házak
listáját
Válassza ki a megfelelő
családi házat
Írjon a hirdetőnek
Várjon a visszahívásra