Eladó családi ház Debrecen 125 000 000 Ft

Leírás

Eladó Debrecen Belvárosában egy 535 m² önálló teleken.
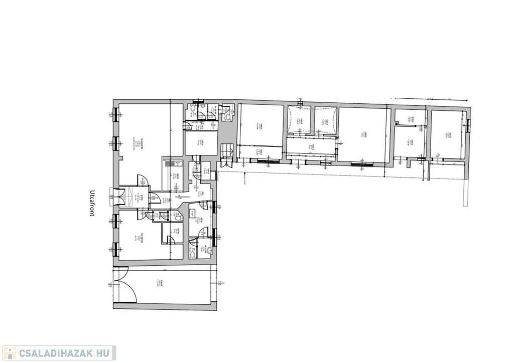
Több egységből álló, összesen 180 nm alapterületű, felújítandó épület együttes. Az utcafront szélessége 17 m. Zárt sorú beépítési módban épült, széles kapubejáróján biztosított az udvari beállási lehetőség. A főépület alapterülete 100 nm, belmagassága 3,4 m, szinte teljesen alápincézett, 80 nm szuterénrésszel rendelkezik.
4 kis alapterületű udvari egysége garázsként, műhelyként, irodaként, tárolóként kiválóan hasznosítható.
Az főépület pillanatnyilag üzleti célú felhasználásra kialakított terekkel rendelkezik, a válaszfalak eltávolításával kényelmes 3 szoba + 1 légterű nappali +étkező+konyha lehetőségét kínálja.
Nagyjából 300 nm egybefüggő, kellemesen elszeparált, jól használható udvar áll rendelkezésre családi, lakhatási célú hasznosítás esetén pihenésre, kikapcsolódásra, üzleti célú hasznosítás esetén tárolásra, kerthelyiség kialakítására.

Rendezett tulajdoni viszonyokkal, azonnal birtokba vehető.
Felújítandó.
Szabályozás szerint 60 %-ban beépíthető, legnagyobb beépítési magasság 9,5 m.

Ha Önnek vonzó lehetőségnek tűnik ez a sorház, keressen engem bizalommal elérhetőségeim bármelyikén.
Elérhetőség: 30/339-1481
(További kínálatunkat keresse a VING hivatalos weboldalán.)

Családi ház részletei

Ár: 125 000 000 Ft
Méret: 180 négyzetméter
Azonosító: 11394055
Irodai azonosító: 448533
Telek: 535 négyzetméter
Ingatlan állapota: Felújítandó
Jelleg: sorház
Építőanyag: Tégla
Fűtés jellege: Konvektoros
Egész szobák: 6

Egyéb jellemzők

  • Beépíthető tetőtér
  • Csatorna
  • Garázs
  • Melléképület
  • Pince
  • Terasz

Így keressen családi házat négy egyszerű lépésben. Csupán 2 perc, kötelezettségek nélkül!

Szűkítse a családi házak
listáját
Válassza ki a megfelelő
családi házat
Írjon a hirdetőnek
Várjon a visszahívásra