Eladó családi ház Debrecen 124 990 000 Ft

Leírás

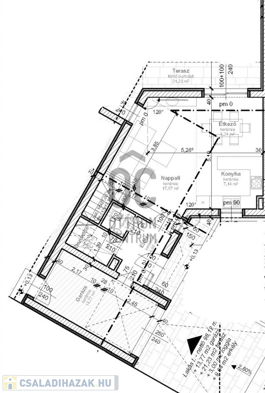
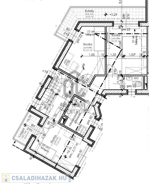
Debrecen kedvelt részén, a Hatvan utcai kert csendes, új építésű övezetében, magas műszaki tartalommal rendelkező, jó elrendezésű, kétszintes, 129nm-es sorházi lakás eladó. Az ingatlan, nappali + 3szobás, dupla komfortú, a földszinten garázzsal, terasszal, és önálló kertkapcsolattal.Kedvező hitelkonstrukció és vásárlási feltételek.

Az ingatlan jellemzői:
-modern építési technológia
-saját kertkapcsolat
-opció, további garázs vásárlásra
-nagy terasz
-hőszigetelt üvegezésű, argon gázzal töltött ablakok
-cirkó-fűtés, kondenzációs kazánnal
-minőségi burkolatok és szaniterek
-kitűnő infrastruktúra
-csendes, értékálló környezet
-magas műszaki tartalom
(Hansgrohe csaptelepek
Aria kádak
Villeroy&Boch kézmosók
Wellis fürdőszobaszekrények, mosdók tükörrel
Alföldi KOMBIPACK FORMO (cleanflush mélyöblítésű+softclosing ülőke+quickrelease + króm színű nyomólap) fali wc-k
magas minőségű üvegezett (szobák) és tele kivitelű (wc, fürdő, garázs) ajtók (120.000 Ft/db)
magas minőségű hidegburkolatok (9-12.000 Ft/nm – fürdőszoba mennyezetig burkolva)
Egger pro parketták (8.000 Ft/nm)
Viessmann kazánok
Gree Syen Bora+ klímák – plazmaszűrős, wifis, extra csendes).
stb.
Projekt bemutatása

Debrecen kedvelt részén, a Hatvan utcai kert csendes, új építésű övezetében, magas műszaki tartalommal rendelkező, jó elrendezésű, kétszintes, sorházi lakás eladó. Az ingatlan, nappali + 3szobás, dupla komfortú, a földszinten garázzsal, terasszal, és önálló kertkapcsolattal.Kedvező hitelkonstrukció és vásárlási feltételek.

Az ingatlan jellemzői:
-modern építési technológia
-saját kertkapcsolat
-nagy terasz
-hőszigetelt üvegezésű, argon gázzal töltött ablakok
-cirkó-fűtés, kondenzációs kazánnal
-minőségi burkolatok és szaniterek
-kitűnő infrastruktúra
-csendes, értékálló környezet
-stb.

Családi ház részletei

Ár: 124 990 000 Ft
Méret: 129 négyzetméter
Azonosító: 11206233
Erkély mérete: 31.00 négyzetméter
Telek: 250 négyzetméter
Ingatlan állapota: Kitűnő
Jelleg: sorház
Építőanyag: Kérdezzen rá a hirdetőtől »
Fűtés jellege: Cirkó
Egész szobák: 4

Egyéb jellemzők

  • Csatorna
  • Garázs
  • Kábel TV
  • Melléképület
  • Parketta
  • Pince
  • Terasz

Így keressen családi házat négy egyszerű lépésben. Csupán 2 perc, kötelezettségek nélkül!

Szűkítse a családi házak
listáját
Válassza ki a megfelelő
családi házat
Írjon a hirdetőnek
Várjon a visszahívásra