Eladó családi ház Debrecen 123 900 000 Ft

Leírás

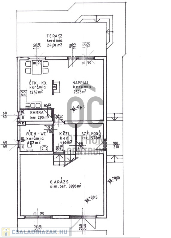
Debrecen Józsán eladó egy 1992-ben épült, nappali-étkező-konyha + 5 szobás, eltolt szintes, részben felújított, 180 m2 nettó alapterületű, önálló családi ház, a hozzá tartozó engedéllyel tervrajzokkal rendelkező, 83 m2-es különálló műhellyel együtt, az alábbi paraméterekkel:
- A ház néhány évvel ezelőtt teljes körű villamoshálózati felújításon és fűtéskorszerűsítésen esett keresztül, melyek keretében az összes villamosvezetéket kicserélték, új biztosítókat és megszakítókat szereltek be, új kondenzációs kazán került beépítésre, természetesen a kémény törvényi előírásoknak megfelelő átalakításával. A hőleadókat is modern alumínium radiátorokra cserélték. Ebből fakadóan a fűtési költségek alacsonyan tarthatók.
- A villamossági felújítás során külön mérőórát szereltek be a műhely áramfogyasztásának mérésére.
- A lakóház és a műhely gázellátása is külön gázórákon keresztül történik, mindkét ingatlanban kondenzációs kazán működik.
- A korábbi nyílászárókat műanyagra cserélték (redőnyökkel, rovarhálókkal).
- Az utcafronti garázs helyén jelenleg egy iroda van kialakítva, amit igény szerint vissza lehet alakítani.
- A gépkocsik tárolását jelenleg 4 fedett beálló biztosítja a telken belül, míg további 4 nyitott beálló is rendelkezésre áll.
- Az udvar parkosított, a fúrt kútról öntözhető kertben örökzöldek, gyümölcsfák, konyhakerti növények (fóliasátorban) találhatók.
- A kerten kívüli terület teljes mértékben térkövezett.
- A fedett terasz 28 m2.
- Az épület földszintjén található fürdőszoba WC-vel szerelt, épített zuhanyzóval és káddal van ellátva és egy különálló második WC is helyet kapott.
- Az emeleti részen további 2 fürdőszoba került kiépítésre, ezek közül az egyikben WC-kád-mosdó, a másikban zuhanyzó és mosdó került beépítésre.
- Az 5 külön nyíló szoba kiváló lehetőséget biztosít több gyermek külön elhelyezésére, valamint dolgozó- vagy vendégszoba kialakítására is.

A ház kiváló otthona lehet olyan családoknak, akik több szobát és otthoni vállalkozást is szeretnének egy ingatlanon belül tudni, nagyon széleskörűen hasznosítható.
CSOK+, babaváró, Otthon Start Program akár kombinálva is felhasználható.
További részletekért várjuk hívását a hét minden napján!

Családi ház részletei

Ár: 123 900 000 Ft
Méret: 180 négyzetméter
Azonosító: 11566245
Telek: 1000 négyzetméter
Ingatlan állapota:
Jelleg: családi ház
Építőanyag: Kérdezzen rá a hirdetőtől »
Fűtés jellege: Cirkó
Egész szobák: 6

Egyéb jellemzők

  • Csatorna
  • Garázs
  • Kábel TV
  • Melléképület
  • Parketta
  • Pince
  • Terasz

Így keressen családi házat négy egyszerű lépésben. Csupán 2 perc, kötelezettségek nélkül!

Szűkítse a családi házak
listáját
Válassza ki a megfelelő
családi házat
Írjon a hirdetőnek
Várjon a visszahívásra