Eladó családi ház Debrecen 119 900 000 Ft

Leírás

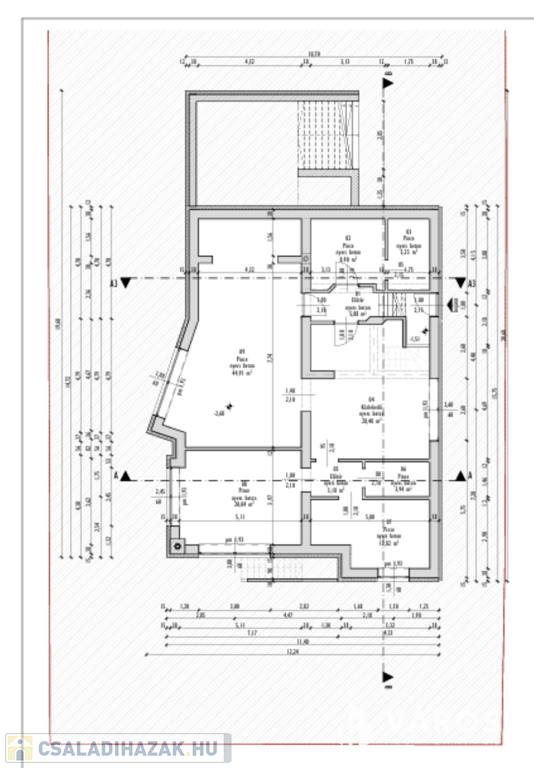
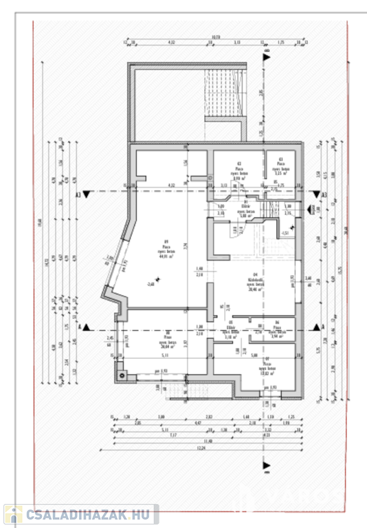
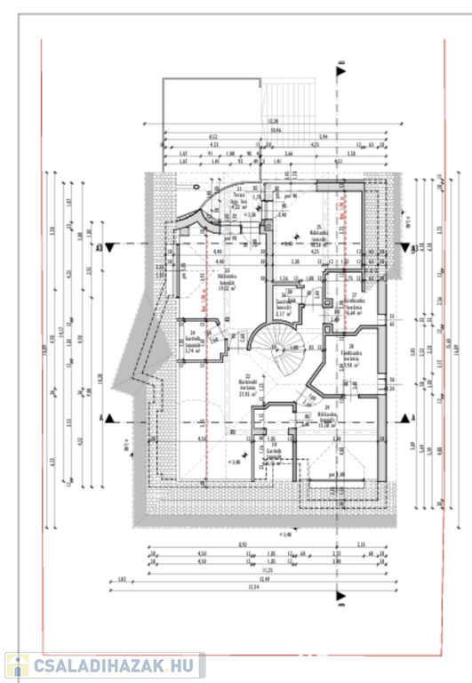
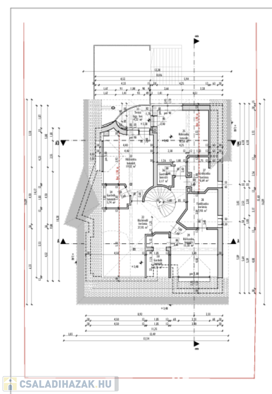
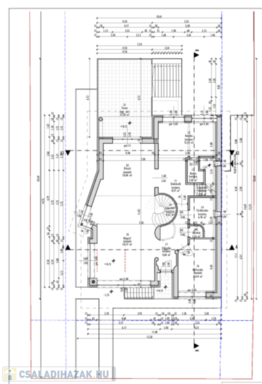
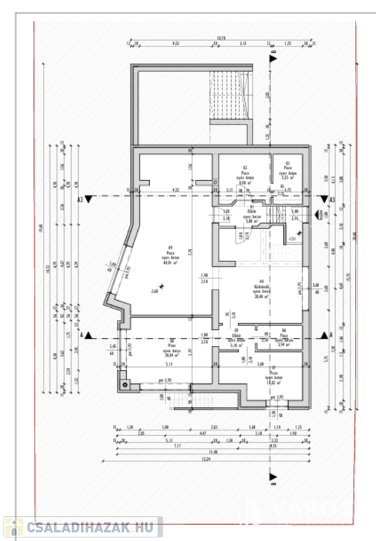
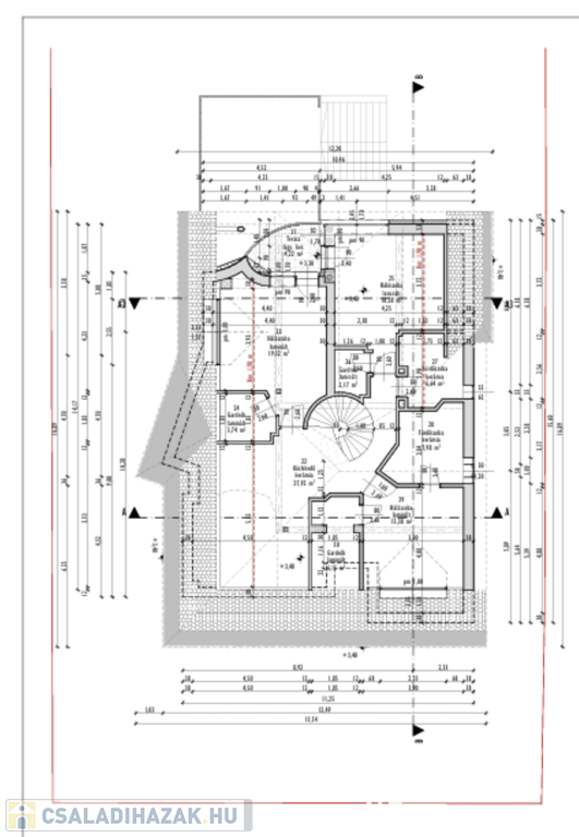
Debrecen szép kertvárosi környezetében, a Kincseshegy városrészen, 360 nm-es szerkezetkész 4 szoba nappalis 3 szintes ingatlan eladó! A ház teljesen alápincézett, ahol 7 kisebb nagyobb helyiség található. A földszinti részen, egy közel 60 nm-es hatalmas nappali étkező van, mellette 18 nm-es konyha kamrával, fürdőszoba külön wc-vel, és egy 15 nm-es szoba található. A felső szinten 3 nagyméretű hálószoba van, mindegyik saját gardróbbal, 2 fürdőszoba, és egy szép világos nappali rész van. A ház befejezéséhez, teljesen friss jogerős építési engedélyek vannak, így azonnal elkezdhető a befejezés, és egy álomszép luxus otthont lehet belőle varázsolni. A telken található még egy 80 nm-es dupla garázs, melynek az egyik részében, egy egyszobás garzon lakrész is rendelkezésre áll. Érdemes megnézni, rengeteg fantázia van az ingatlanban!!!

További információkért és megtekintésért keressen bizalommal!
TRIPSÓ TIBOR
+36 30 942 5373
Prémium ingatlanértékesítő
Városi Ingatlaniroda
Debrecen
(További képekért és információkért kérem hívjon!)

Családi ház részletei

Ár: 119 900 000 Ft
Méret: 360 négyzetméter
Azonosító: 11509227
Irodai azonosító: 780102
Telek: 1129 négyzetméter
Ingatlan állapota: Szerkezetkész
Jelleg: családi ház
Építőanyag: Tégla
Egész szobák: 6
Nappalik: 2

Egyéb jellemzők

  • Beépíthető tetőtér
  • Csatorna
  • Garázs
  • Melléképület
  • Pince
  • Terasz

Így keressen családi házat négy egyszerű lépésben. Csupán 2 perc, kötelezettségek nélkül!

Szűkítse a családi házak
listáját
Válassza ki a megfelelő
családi házat
Írjon a hirdetőnek
Várjon a visszahívásra