Eladó családi ház Debrecen 119 000 000 Ft

Leírás

Debrecen Hatvan utcai kerti részén, gyönyörű, modern környezetben, nappali+ 3 hálószobás ikerház, gondozott kerttel eladó!

Kiváló lokáció, kedvelt, sokak által előnyben részesített környezet.
A belváros közelsége, illetve a nyugati városrész bevásárló üzleteinek rövid megközelíthetősége, és az autópálya gyors elérése is hatalmas előnyökkel jár az itt lakók számára.
Aszfaltozott, átmenő forgalomtól mentes utcában található.

Paraméterek:
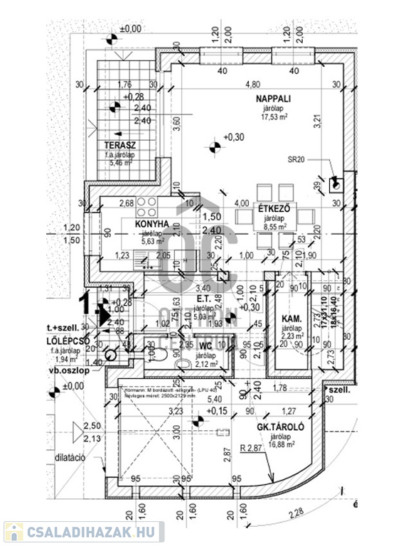
- 2017-ben téglából épült, szigetelt, garázzsal kapcsolatos, ikerház.
- 125 nm alapterületű kétszintes, mediterrán jellegű épület
- 16 nm-s garázs, elektromos kapuval ellátva
- a földszinten: nappali - étkező, konyha, lépcső alatti tároló, és fördőszoba zuhanyzóval és WC- vel.
- emeleti részén: 3 hálószoba, 1 fürdőszoba, 1 háztartási helyiség került kialakításra
- műanyag, hőszigetelt nyílászárók
- kondenzációs gáz cirkó kazán biztosítja a fűtést és a melegvíz ellátást.
- padlófűtés a földszinten, radiátoros hőleadók az emeleti helyiségekben
- a nappali közvetlen kapcsolatos a kellemes déli tájolású fedett terasszal
- cc 150 nm -s parkosított, körbekerített kertben pihenheti ki a hétköznapok fáradalmait


Tiszta tulajdoni viszonyok, hamar birtokba vehető otthon.

Hívjon bizalommal, és nézze meg személyesen!










Debrecen, Hatvan utca, kert, eladó, ház, iker, garázs,

Családi ház részletei

Ár: 119 000 000 Ft
Méret: 125 négyzetméter
Azonosító: 11568449
Telek: 300 négyzetméter
Ingatlan állapota: Kitűnő
Jelleg: ikerház
Építőanyag: Kérdezzen rá a hirdetőtől »
Fűtés jellege: Cirkó
Egész szobák: 4

Egyéb jellemzők

  • Csatorna
  • Garázs
  • Kábel TV
  • Melléképület
  • Parketta
  • Pince
  • Terasz

Így keressen családi házat négy egyszerű lépésben. Csupán 2 perc, kötelezettségek nélkül!

Szűkítse a családi házak
listáját
Válassza ki a megfelelő
családi házat
Írjon a hirdetőnek
Várjon a visszahívásra