Eladó családi ház Debrecen 114 900 000 Ft

Leírás

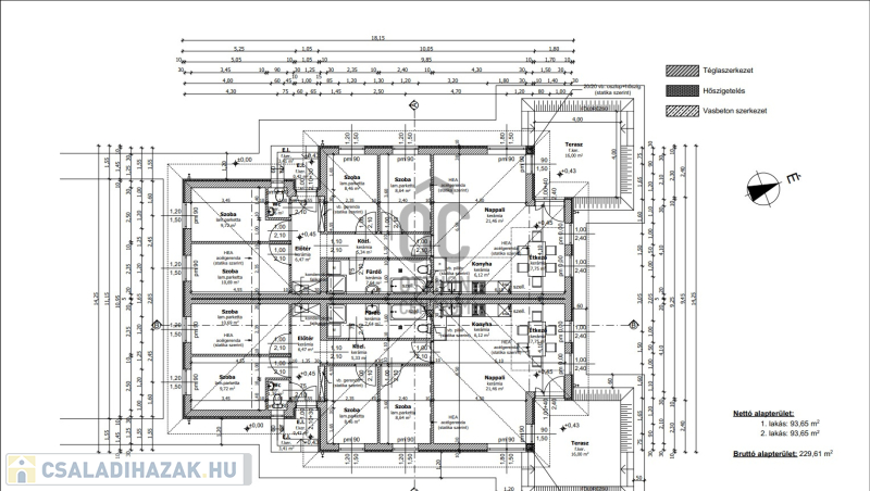
A házak Bruttó 114 m2, hasznos alapterület 94 m2 + 16 m2 terasz + előlépcső!

Ingatlan főbb tulajdonságai:

- Dupla fallal rendelkező ( nincs közös fal), hangszigeteléssel ellátott privát, zajmentes ikerház
- Tágas nappali + konyha és 4 különálló szoba elrendezésű
- 30 N+F tégla falazat, + grafit homlokzati hőszigetelés
- Padló és radiátoros fűtés, és 1 db hűtő-fűtő klíma
- Cserép héjazat, illetve 35 cm hőszigetelés a tetőben, mely biztosítja az alacsony fűtési költséget
- A földszinti padlóban 12 cm lépésálló hőszigetelés
- Minőségi burkolatok (választható 10.000ft/nm árban)
- Prémium szaniterek
- Térkövezett járda
- Ablakok, teraszajtók: magas minőségű műanyag, hőszigetelt, 3 rétegű üvegezéssel ellátva
- Burkolt terasz
- 450 nm-es saját telekrész
- H tarifa

Pár hónapon belül át veheti az ingatlanát kulcsrakészen!
Ha egy nyugodt, csendes családias környezetben szeretne élni, akkor megtalálta! Ne habozzon, keressen bizalommal!
A környék legtöbb ingatlanát ez a megbízható kivitelező készítette, garantált minőség!

Családi ház részletei

Ár: 114 900 000 Ft
Méret: 104 négyzetméter
Azonosító: 11552251
Telek: 450 négyzetméter
Ingatlan állapota: Kitűnő
Jelleg: ikerház
Építőanyag: Kérdezzen rá a hirdetőtől »
Fűtés jellege: Cirkó
Egész szobák: 5

Egyéb jellemzők

  • Csatorna
  • Garázs
  • Kábel TV
  • Melléképület
  • Parketta
  • Pince
  • Terasz

Így keressen családi házat négy egyszerű lépésben. Csupán 2 perc, kötelezettségek nélkül!

Szűkítse a családi házak
listáját
Válassza ki a megfelelő
családi házat
Írjon a hirdetőnek
Várjon a visszahívásra