Eladó családi ház Dánszentmiklós 56 900 000 Ft

Leírás

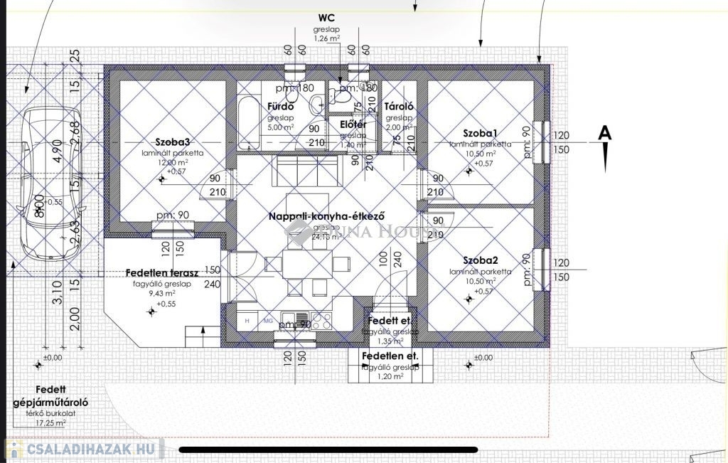
ELADÓ ÚJ ÉPÍTÉSŰ 4 szobás IKERHÁZ DÁNSZENTMIKLÓSON!

KÖZÖS FAL NEM ÉRINTKEZIK, FEDETT GÉPKOCSITÁROLÓ A KETTŐ LAKÁS KÖZÖTT.

Kiváló elosztású, prémium minőségben épülő ingatlanok.

Fűtött alapterület: 66.79 m2

fedett gépkocsitároló: 17,10 m2

nyitott terasz:9.43 m2

telek területe : 450 m2

Választható: hidegburkolat 9500 Ft / m2 melegburkolat: 7500 Ft / m2 szaniterek 350.000 Ft-ig, bejárati ajtó 170.000 Ft-ig, belső ajtók br: 95.000Ft ( Aranyablak dekorfóliás)

Fűtés: hőszivattyú padlófűtés mindenhol ( Midea vagy Riello 10 kw) meleg vizet Ariston okosbojler adja,

30-as Porotherm vagy Leier tégla, válaszfal 10-es Leier, 15 cm-es eps szigetelés

Műszaki tartalom a helyszínen!

Nézzük meg együtt, keressen bizalommal.

Közelben: lskola, Óvoda, Coop abc, buszmegálló.

Albertirsa autóval 5 perc, 405-ös főút 3 percre,

Családi ház részletei

Ár: 56 900 000 Ft
Méret: 66 négyzetméter
Azonosító: 11572349
Irodai azonosító: HZ094524-5061618
Telek: 450 négyzetméter
Ingatlan állapota: Épülő
Jelleg: ikerház
Építőanyag: Tégla
Fűtés jellege: Villany
Fűtés módja: Hőszivattyú
Kor: Új építésű
Szintek száma: Földszintes
Egész szobák: 4

Térkép


Így keressen családi házat négy egyszerű lépésben. Csupán 2 perc, kötelezettségek nélkül!

Szűkítse a családi házak
listáját
Válassza ki a megfelelő
családi házat
Írjon a hirdetőnek
Várjon a visszahívásra