Eladó családi ház Dánszentmiklós 55 000 000 Ft

Leírás

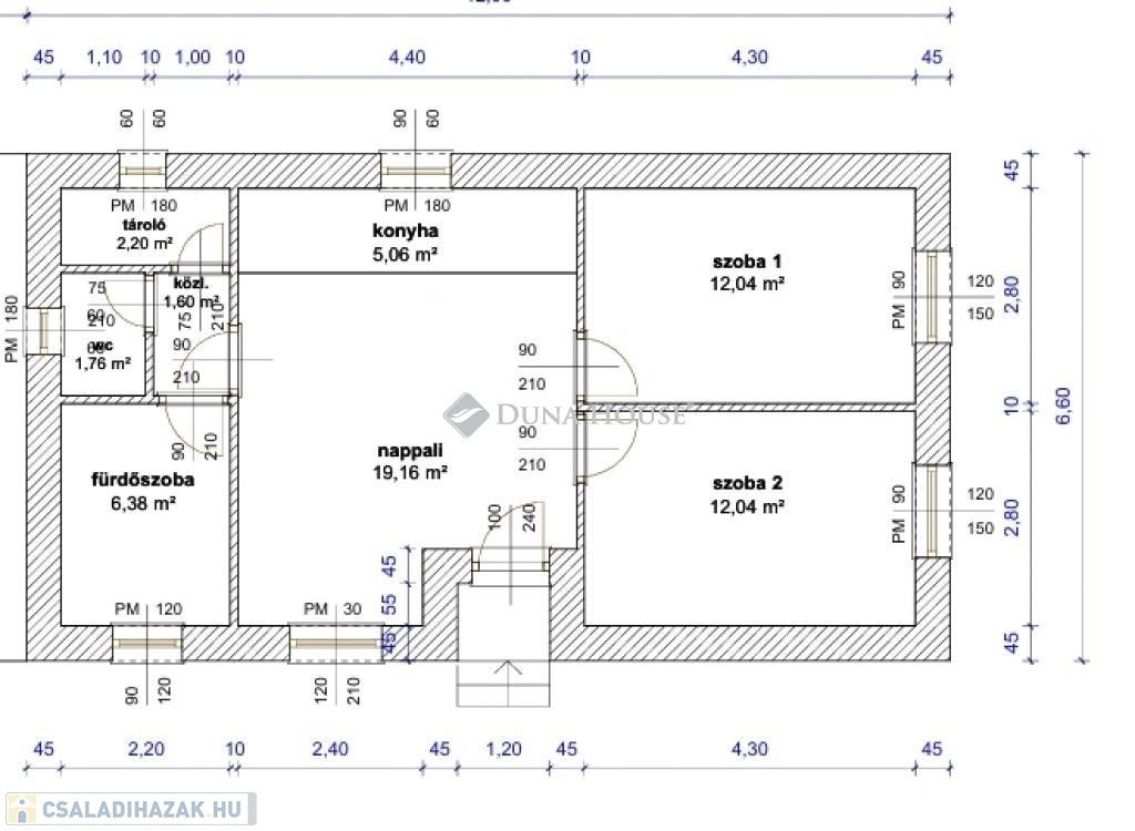
Budapest határától 50 km távolságra !Több mint 20 éves tapasztalattal rendelkező profi kivitelezőtől kínálok megvételre Pest megyén belül , Dánszentmiklóson egy praktikus elrendezésű 60,25 nm fűtött lakótérrel rendelkező ikerház felet.Az ingatlanok a fedett autó beállóknál csatlakoznak, így közös fal nincs az iker féllel.Tartozik a lakáshoz 400 nm privát telek terület is .Az ingatlan kialakítása :-Amerikai konyhás nappali-2 db hálószoba-Háztartási helység-Fürdőszoba-Wc-Előtér-Nyitott terasz-Fedett autó beállóMűszaki leírás:-Monolit beton sáv alapzat-B 30 -as PTH tégla fal ( válaszfalak 10 cm PTH fal)-15 cm polisztirol hőszigetelés-10 cm polisztirol lábazat szigetelés-Záró réteg : tört fehér nemes vakolat,-aljzaton sötétbarna műgyanta lábazati vakolattal ellátvaTető:15*15.ös gerendázat-2,5*15-ös szarufa-10*15-ös ellen lécezéssel-3*5-ös tető lécekkel ellátva-Barna szinű tetőcseréppel fedveA tető szigetelése 30 cm kőzetgyapottal ellátva.Nyílászárók Fehér színű 3 rétegű műanyag ablakokAz ingatlan fűtése Hőszivattyús fűtés padlón keresztül történő hőleadással.Az ár tartalmaz egy darab Hűtő-Fűtő klímát.Hideg meleg burkolatok 8000 Ft / nm árig választhatóakVárható átadás 2026. SzeptemberAmennyiben hirdetésem felkeltette érdeklődését, várom megtisztelő hívását.

55000000 Ft

Családi ház részletei

Ár: 55 000 000 Ft
Méret: 60 négyzetméter
Azonosító: 11592883
Irodai azonosító: HZ079605-5124431
Cím: Dánszentmiklósi eladó 60 nm-es ház
Telek: 400 négyzetméter
Ingatlan állapota: Épülő
Jelleg: ikerház
Építőanyag: Tégla
Fűtés jellege: Villany
Fűtés módja: Hőszivattyú
Kor: Új építésű
Szintek száma: Földszintes
Egész szobák: 3

Térkép


Így keressen családi házat négy egyszerű lépésben. Csupán 2 perc, kötelezettségek nélkül!

Szűkítse a családi házak
listáját
Válassza ki a megfelelő
családi házat
Írjon a hirdetőnek
Várjon a visszahívásra