Eladó családi ház Dabas 97 900 000 Ft

Leírás

Birtokolja a nyugalmat és az exkluzivitást Dabason! Nívós, családi ház eladó!

Kizárólag a CDC Ingatlaniroda kínálatában! Kiemelt Befektetési és Életminőségi Lehetőség! Engedje meg, hogy bemutassam Dabas csendes, természetközeli övezetében fekvő, azonnal költözhető, exkluzív családi házát. Ez az ingatlan nem csupán egy épület, hanem egy magas életszínvonalat kínáló, komplett otthon.

Az Ingatlan Főbb Paraméterei és Jellemzői:

Építési Minőség és Kor: A ház 2024-ben épült, téglából, 10 cm-es hőszigeteléssel ellátva, garantálva a kiváló energetikai hatékonyságot. Az enteriőr nívós, exkluzív burkolatokkal és ízléses designnal készült.

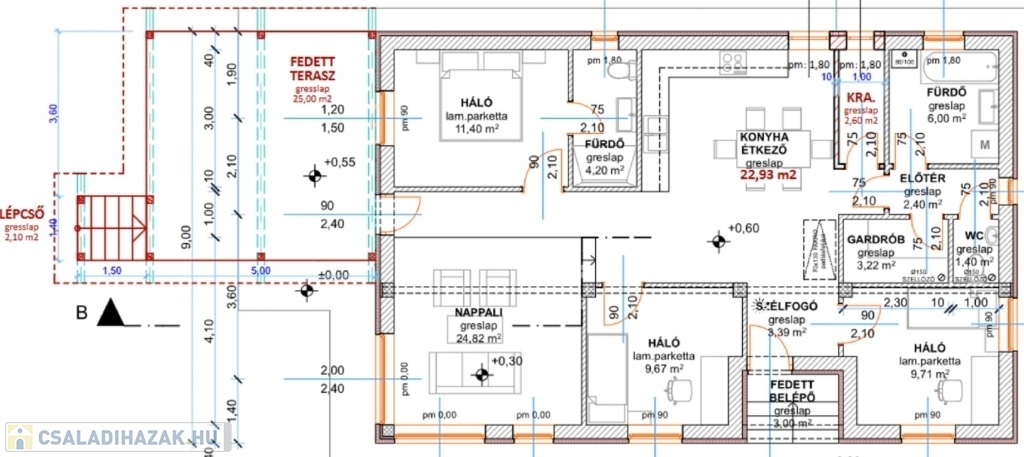
Alapterület és Elosztás (102 m²): Az ingatlan kiváló beosztással rendelkezik: 3 hálószoba, külön gardróbszoba, tágas, gépesített konyha-étkező, kamra, valamint egy egyedi tervezésű, süllyesztett nappali biztosítja a kényelmes életteret.

Fürdőszobák: Két elegánsan kivitelezett fürdőszoba áll rendelkezésre. Az egyik kádas, a másik zuhanyzós. Az egyik fürdőszoba a szülői hálószobából nyílik, biztosítva a maximális privát szférát.

Teljes Berendezés a Vételárban: A hirdetett ár tartalmazza az összes minőségi bútorzatot és lámpatestet, így Önnek kizárólag a beköltözéssel kell foglalkoznia.

A Külső Környezet (890 m²):

Kert és Udvar: A telek 890 m²-es, gyönyörűen parkosított, igényes kerítéssel körbevett. Az udvar viacolor burkolattal ellátott, és automata öntözőrendszer biztosítja a zöldterület kifogástalan állapotát.

Kikapcsolódás: A nagy méretű fedett terasz ideális helyszín a pihenéshez, valamint a kerti sütögető lehetőséget nyújt a társasági összejövetelekre. Egy kisebb tároló helyiség is rendelkezésre áll.

Műszaki Felszereltség:

Fűtés és Hűtés: A fűtést kondenzációs gázkazán biztosítja, padlófűtéssel az összes helyiségben. A nyári komfortról két modern klímaberendezés gondoskodik.

Kényelmi Extrák: Az ablakok elektromos működtetésű alumínium redőnyökkel felszereltek.

Ez az ingatlan páratlan lehetőséget kínál a modern luxus és a vidéki nyugalom ötvözésére. Ne hagyja ki ezt a kivételes ajánlatot!

Ha felkeltette az érdeklődését, kérem hívjon bizalommal!

Irányár: 97900000 Ft
Érd: Péter-Kovács Ildikó 70/9777-820

Referencia szám: HK-5088920-NOK

Családi ház részletei

Ár: 97 900 000 Ft
Méret: 102 négyzetméter
Azonosító: 11580763
Irodai azonosító: HK-5088920-5088920
Telek: 890 négyzetméter
Ingatlan állapota: Kitűnő
Jelleg: családi ház
Építőanyag: Tégla
Fűtés jellege: Cirkó
Fűtés módja: Gáz
Komfort fokozat: Összkomfort
Kor: 1-5 éves
Szintek száma: Földszintes
Egész szobák: 3

Egyéb jellemzők

  • Garázs

Térkép


Így keressen családi házat négy egyszerű lépésben. Csupán 2 perc, kötelezettségek nélkül!

Szűkítse a családi házak
listáját
Válassza ki a megfelelő
családi házat
Írjon a hirdetőnek
Várjon a visszahívásra