Eladó családi ház Dabas 80 000 000 Ft

Leírás

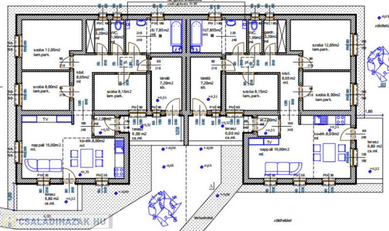
Dabason, rendezett környezetben, aszfaltozott utcában eladásra kínálom egy 2 lakásos ikerház hátsó lakását. Az épület belső elosztása: amerikai konyhás nappali, 3 szoba, fürdőszoba, toalett, gardrób, közlekedő. A lakáshoz külön  terasz kapcsolódik,  mely 6 m2. Az ingatlanok fűtése kondenzációs gázkazánokkal történik, illetve 1 klíma is rendelkezésre áll.  A várható átadás: 2026 nyara.  A hátsó lakás nettó 84 m2-es, és nettó 300 m2-es telekrésszel lehet megvásárolni 76 milliós áron. Jelenleg szerkezetkész, tető alatt van.  Megtekinthető: Böszörményi Krisztina 06204004014

Családi ház részletei

Ár: 80 000 000 Ft
Méret: 83 négyzetméter
Azonosító: 11473647
Telek: 200 négyzetméter
Ingatlan állapota: Átlagos
Jelleg: ikerház
Építőanyag: Kérdezzen rá a hirdetőtől »
Fűtés jellege: Cirkó
Komfort fokozat: Összkomfort
Egész szobák: 3
Fél szobák: 1

Egyéb jellemzők

  • Csatorna
  • Garázs
  • Kábel TV
  • Melléképület
  • Parketta
  • Pince
  • Terasz

Így keressen családi házat négy egyszerű lépésben. Csupán 2 perc, kötelezettségek nélkül!

Szűkítse a családi házak
listáját
Válassza ki a megfelelő
családi házat
Írjon a hirdetőnek
Várjon a visszahívásra