Eladó családi ház Dabas 115 000 000 Ft

Leírás

Eladásra kínálunk egy 2021-ben épült, újszerű állapotban lévő, igényes, otthonos családi fészket, Dabas egyik legkedveltebb részén.  A városban pár perces sétára könnyen elérhetőek óvodák, iskolák, egészségügyi intézmények és különböző élelmiszerboltok (Tesco, Lidl, Penny, Aldi).
Főbb jellemzők:

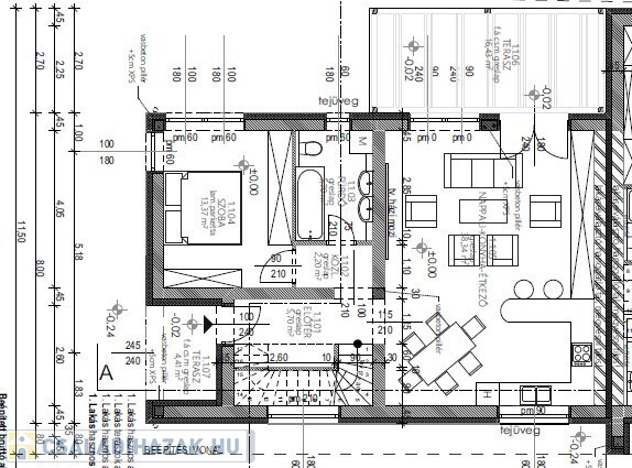
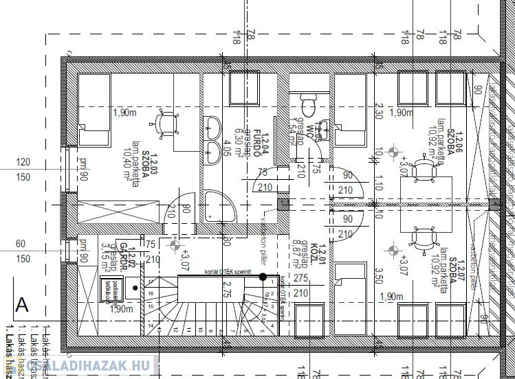
119 m²-es lakótér: 4 hálószoba, amerikai konyhás nappali, beépített és gépesített konyhával, galéria, kamra.
Fürdőszobák: 2 fürdőszoba, lent zuhanyzóval, emeleten fürdőkáddal és zuhanyzóval,  3 wc
Energiaosztály: A++.
Fűtés: Háromféle (gázkazán,  hőcserélős indirekt tároló, 5 hűtő-fűtő klíma).
Napelemek: 10 db (4 kW),   + 8 kW-os inverterrel, így még bővíthető is

Kültéri extrák:

Két terasz (16,43 m² és 4,4 m²) a pihenéshez.
Parkosított kert grillező résszel.
15 m²-es mobil műhely tárolóval (az ár tartalmazza).

Műszaki adatok:

60 cm beton sávalap, 30 cm vastag LEIER teherhordó falak.
20 cm hőszigetelés, hőszigetelt, háromrétegű üvegezésű nyílászárók redőnnyel és szúnyoghálóval.

Családi ház részletei

Ár: 115 000 000 Ft
Méret: 119 négyzetméter
Azonosító: 11572834
Telek: 343 négyzetméter
Ingatlan állapota:
Jelleg: ikerház
Építőanyag: Kérdezzen rá a hirdetőtől »
Fűtés jellege: Cirkó
Komfort fokozat: Összkomfort
Egész szobák: 5

Egyéb jellemzők

  • Csatorna
  • Garázs
  • Kábel TV
  • Melléképület
  • Parketta
  • Pince
  • Terasz

Így keressen családi házat négy egyszerű lépésben. Csupán 2 perc, kötelezettségek nélkül!

Szűkítse a családi házak
listáját
Válassza ki a megfelelő
családi házat
Írjon a hirdetőnek
Várjon a visszahívásra