Eladó családi ház Csörög 90 900 000 Ft

Leírás

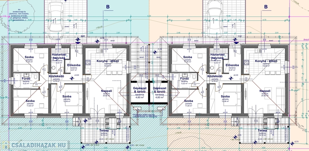
Új építésű ikerházfél Csörög legújabb lakóparkjában – ahol a kényelem otthonra talál!

Most induló építkezés keretében kínáljuk ezt az egyedülálló lehetőséget: ikerházfél 415 m²-es saját telekkel, modern kialakítással, a kényelem jegyében tervezve.

Főbb jellemzők:

91 m² lakótér + 17 m² terasz

3 db 12 m²-es hálószoba

35 m²-es tágas nappali–étkező–konyha egyben

Fürdőszoba és mosdó külön és egyben is

Háztartási helyiség, udvari gépkocsi-beálló

Modern, praktikus elrendezés – minden négyzetméter a kényelmet szolgálja

Az ár 1db ingatlanra vonatkozik. 1db 415-ös telken van.

A lakópark Csörög legújabb és legdinamikusabban fejlődő része, ahol az új építésű ingatlanok gyorsan gazdára találnak. Ne maradjon le erről a lehetőségről!

Vegye fel velünk a kapcsolatot még ma – válassza ki időben álmai otthonát!
3%OTTHON STARTRA ALKALMAS

Családi ház részletei

Ár: 90 900 000 Ft
Méret: 91 négyzetméter
Azonosító: 11578977
Telek: 415 négyzetméter
Ingatlan állapota: Épülő
Jelleg: ikerház
Építőanyag: Tégla
Fűtés módja: Hőszivattyú
Komfort fokozat: Dupla komfort
Kor: Új építésű
Szintek száma: Földszintes
Egész szobák: 4
Nappalik: 1

Egyéb jellemzők

  • Beépíthető tetőtér
  • Csatorna
  • Garázs
  • Kábel TV
  • Melléképület
  • Padlás
  • Parketta
  • Pince
  • Terasz

Így keressen családi házat négy egyszerű lépésben. Csupán 2 perc, kötelezettségek nélkül!

Szűkítse a családi házak
listáját
Válassza ki a megfelelő
családi házat
Írjon a hirdetőnek
Várjon a visszahívásra