Eladó családi ház Csömör 299 990 000 Ft

Leírás

Csak nálunk elérhető!
Eladó egy mediterrán stílusú LUXUS ingatlan Budapest XVI.-ik kerületében, közigazgatásilag Csömörhöz tartozó Majorszegiliget legcsendesebb és legkedveltebb részén.

A ház dupla telekre épült 1309 nm-es így a 3 szintes 364 nm-es 5+1 félszobás 2 gardrób szobás ingatlan mellett bőven maradt hely a gondozott parkosított kertnek.

Építés éve 2006 ,de a jelenlegi energetikai elvárásoknak is 100%-ban megfelel, korszerű igényes, újszerű , 38-as Porotherm téglából,10cm vastag dryvit szigeteléssel épült mediterrán stílusú nagyon világos ház déli fekvéssel, melynek műszaki tartalma és átgondolt kialakítása minőségi kivitelezése, kényelmes és igényes otthont biztosít akár nagy családoknak is.
Esetleg cégszékhelynek használva a szuterén szintet vállalkozást is lehet innen irányítani vagy 2 generációssá alakítani.
A családi háznak egyedi fűtését és melegvíz ellátását számítógép irányítja, és padlófűtéssel biztosítja a kiemelkedő komfortérzetet. Minden helyiség klimatizált.
Tetőcserépbe integrált napkollektorok teszik extrán gazdaságossá a ház energia ellátását.Forintosítva ennek a háznak 50.000 Ft nagyságrendileg a rezsije !!!
Ha nem elegenő a napenergia a ház energiaigényéhez, akkor kapcsol csak be a kondenzációs kazán. A ház magas minőségű hő és hangszigetelt műanyag nyílászárókkal és motoros alumínium redőnyönnyel lett ellátva.A hangulatos kandallós nappaliból nyílik az étkező és konyha, közvetlen kapcsolattal a kerthez. A konyha egyedi, AEG gépesítéssel van felszerelve ami az árban benne van és a többi bútor pedig megegyezés tárgya.
Az ingatlan takarítását központi porszívó segíti. A biztonságról riasztó rendszer, kamerarendszer és távfelügyelet gondoskodik.Az utca asztfaltozott a környéken gyönyörű házak sorakoznak kedves szomszédokkal ,közelben iskola,óvoda,bolt,zöldséges,gyógyszertár. Pár perc sétára buszmegálló,autóval pedig az M0 /M3 5 perc.
Azt hiszem a fent leírtakból is érzékelhető az ingatlan igényessége,de jöjjön el személyesen és képzelje bele otthonát,mert ezt a házat látni kell. Leírni is nehéz a rengeteg extrát.
2020-ban a teljes ingatlan tizstasági festésen esett át.

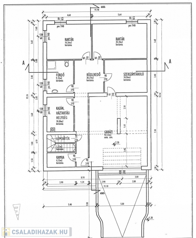
PINCESZINT:
- dupla garázs melynek beállója fűthető így nem kell havat lapátolni
- számítógép vezérelt gépészet és kazán helyiség, medencének kiállás előkészítve
- tároló helyiségek,
- élelmiszer és bortároló kamra,
- mosókonyha,
- iroda
- edzőterem.

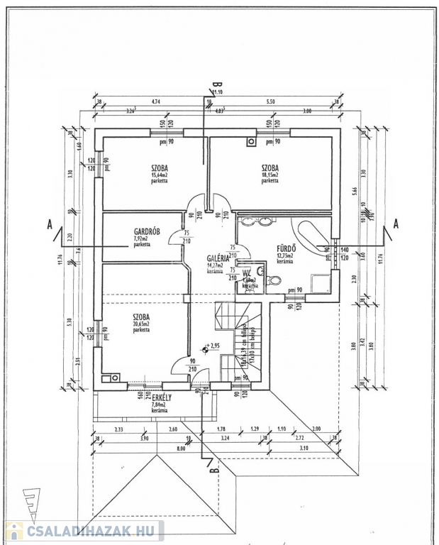
FÖLDSZINT:
- tágas, kandallós nappali,
- étkező és konyha
- kamra,
- szerverhelyiség,
- szoba ablakos gardróbbal
- zuhanyzós fürdő,
- WC, 
- gardróbszoba

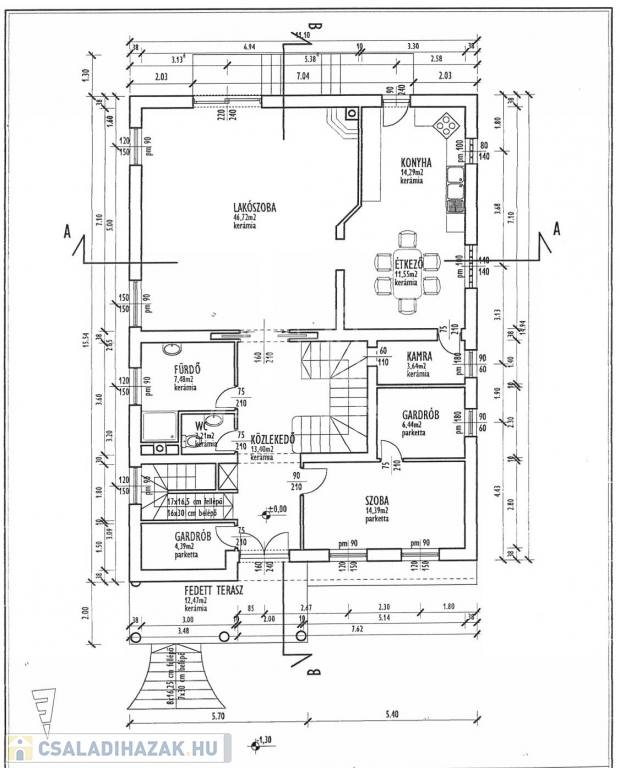
EMELET:
- 3 nagy szoba
- gardróbszoba
- tágas fürdőszoba (zuhanyzós gőzkabinnal, fényterápiás hidromasszázs két személyes káddal, dupla mosdóval, bidével),
- WC,
- közlekedő és erkély mely fűthető burkolattal rendelkezik egy kapcsolóval leolvasztja a havat

KERT
-10 nm tároló
-kerti tó
-5 autónak felszínibeálló
-parkosított kert
-automata öntözőrendszer
-kőből épített kerti grillező hideg-meleg vizes mosogatóval
-hideg-meleg vizes kerti zuhany

Teljes körű műszaki felszereltségről és paraméterekről érdeklődjön telefonon.

Az ingatlan per-, és tehermentes, rövid határidővel birtokba vehető.

Jöjjön el ,nézze meg tegyen ajánlatot.
I.V.

BANKFÜGGETLEN hitelcentrumunk minden elérhető bank és hitelintézet ajánlatát versenyezteti az Ön kedvéért, ráadásul DÍJMENTESEN.
A legjobb ajánlatokból végül Ön választhatja ki a nyertest.
Munkatársaink sokéves szakmai tapasztalattal várják Önt, előre egyeztetve akár a normál munkaidő után is.

Családi ház részletei

Ár: 299 990 000 Ft
Méret: 364 négyzetméter
Azonosító: 11312887
Irodai azonosító: 313868
Cím: Árpádföldi út
Telek: 1309 négyzetméter
Ingatlan állapota: Átlagos
Jelleg: családi ház
Építőanyag: Tégla
Fűtés jellege: Egyedi
Komfort fokozat: Luxus komfort
Kor: 11-20 éves
Szintek száma: 2 szint
Egész szobák: 5
Fél szobák: 1

Egyéb jellemzők

  • Csatorna
  • Garázs
  • Pince
  • Terasz

Térkép


Így keressen családi házat négy egyszerű lépésben. Csupán 2 perc, kötelezettségek nélkül!

Szűkítse a családi házak
listáját
Válassza ki a megfelelő
családi házat
Írjon a hirdetőnek
Várjon a visszahívásra