Eladó családi ház Csévharaszt 84 990 000 Ft

Leírás

ÚJ ÉPÍTÉSŰ, ÖNÁLLÓ, PRÉMIUM MINŐSÉGŰ, ENERGIATAKARÉKOS CSALÁDI HÁZAK ELADÓK – CSÉVHARASZTON!

OTTHONSTART HITELRE ALKALMAS – DÍJMENTES HITELÜGYINTÉZÉSSEL

Költözzön modern, hosszú távon is értékálló álomotthonába, Budapesttől könnyen és gyorsan elérhető, nyugodt környezetben.

ELHELYEZKEDÉS, KÖZLEKEDÉS

Új parcellázású, rendezett, családi házas övezet

Nyugodt, jól lakott település, kiépült infrastruktúrával

Buszmegálló 3 perc sétára

Vasúti csomópont (Monorierdő) kb. 16 perc, ahonnan Budapest ~20 perc

Ideális választás gyermekes családoknak, de kiváló elosztásának köszönhetően 2 generáció összeköltözésére egyaránt!

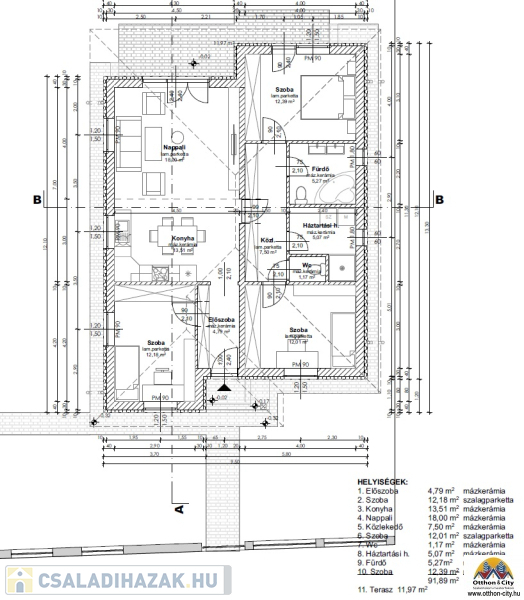
TELEK ÉS ELOSZTÁS

Telek mérete: 768 m² – kiváló kertnek, parkolásnak, pihenésnek vagy későbbi bővítésnek

Hasznos elrendezés:

tágas nappali–amerikai konyha

3 különálló hálószoba (egy közvetlen teraszkapcsolattal)

2 fürdőszoba

teraszkapcsolatos élettér

SZERKEZETI ÉS MŰSZAKI TARTALOM – PRÉMIUM KATEGÓRIA
Tartószerkezet

Főfalak: 30 cm Porotherm tégla

Válaszfalak: 10 cm Porotherm vagy Ytong

Födém: fa szerkezet, tanúsított gomba- és rovarvédelemmel

Látszó szarufa, barna osztrák lambéria – természetes, meleg belső hangulat

Szigetelés

Aljzat: 12 cm EPS

Homlokzat: 10 cm grafitos hőszigetelés (dryvit)

Födém: purhabos technológia, 30 cm kőzetgyapot értéknek megfelelő

Lábazat: 6 cm lépésálló szigetelés

NYÍLÁSZÁRÓK, BURKOLATOK

3 rétegű, 6 légkamrás Salamander nyílászárók

Alumínium redőnyök, fehér színben

Hideg–meleg burkolatok 5.000 Ft/m²-ig választhatók

Kültéri burkolatok: csúszásmentes, fagyálló

Beltéri ajtók kilinccsel, festett falak, gipszes glettelés

GÉPÉSZET ÉS KOMFORT

Monoblokkos hőszivattyú + padlófűtés minden helyiségben

Inverteres hűtő-fűtő klíma a nappaliban

100 literes Ariston „okos” bojler

Teljes vízszűrő rendszer

Alacsony rezsi, korszerű energetikai besorolás

FÜRDŐSZOBÁK

2 db fürdőszoba

Falba épített Geberit WC tartályok

170×75 cm kád automata leeresztővel

Épített zuhany folyókával

2 db mosdó csapteleppel

KÜLSŐ KIALAKÍTÁS

Utcafronti kerítés festett fa deszkázattal

Gyalogos kapu + széles gépkocsi beálló

40 cm széles beton járda a ház körül (esővíz-elvezetéssel)

Tágas, rendezett kert kialakításának lehetősége

MIÉRT KIVÁLÓ VÁLASZTÁS?

Új építés, prémium műszaki tartalom

Energiatakarékos megoldások → alacsony fenntartási költség

Rugalmas belső kialakítás, vevői igények szerint

Nagyméretű telek, értékálló befektetés

Gyors budapesti elérhetőség, nyugodt lakókörnyezet

ÁTADÁS ÉS FINANSZÍROZÁS

Átadás:

Kulcsrakészen 2026. 07.
használatbavételi engedéllyel 2026. 09.-10.

Hitelre és támogatásra alkalmas

Díjmentes hitelügyintézés – összes bank ajánlata egy helyen

Nem adta még el ingatlanát?

Ne adja el piaci ár alatt!
Hívjon egy díjmentes felmérésre.

További információért, és megtekintésért várom megkeresését, akár hétvégén is!

Családi ház részletei

Ár: 84 990 000 Ft
Méret: 92 négyzetméter
Azonosító: 11597616
Telek: 769 négyzetméter
Ingatlan állapota: Kitűnő
Jelleg: családi ház
Építőanyag: Kérdezzen rá a hirdetőtől »
Szintek száma: 1 szint
Egész szobák: 4

Egyéb jellemzők

  • Csatorna
  • Garázs
  • Kábel TV
  • Melléképület
  • Parketta
  • Pince
  • Terasz

Így keressen családi házat négy egyszerű lépésben. Csupán 2 perc, kötelezettségek nélkül!

Szűkítse a családi házak
listáját
Válassza ki a megfelelő
családi házat
Írjon a hirdetőnek
Várjon a visszahívásra