Eladó családi ház Cserszegtomaj 420 000 000 Ft

Leírás

ÉLVEZZE A BALATONI PANORÁMÁT SAJÁT MEDENCÉJÉBŐL A PÁRATLAN FEKVÉSŰ CSERSZEGTOMAJON!

Minden igényt kielégítő, ÚJ ÉPÍTÉSŰ, LUXUS ÁLOM OTTHON várja Önt KESZTHELY és HÉVÍZ mellett ezen a dinamikusan fejlődő, külföldiek által is kedvelt és lakott, túrista látványosságokkal teli, mégis nyugodt, páratlan természeti adottságú, remek elhelyezkedésű településen!

AZ OTTHON:
A 338 nm alapterületű két szintes ház egy 1656 nm-es telken helyezkedik el.

Az ingatlan ENERGIATAKARÉKOS, PRÉMIUM ANYAGOKBÓL és a LEGFEJLETTEBB MŰSZAKI TARTALOMMAL épült, MODERN, MINIMALISTA stílusban.

HATALMAS, nyitott terek, tágas helyiségek, IMPOZÁNS ÜVEG FELÜLETEK biztosítják a LUXUS életérzést és a csodálatos kilátást a Balatonra és az őt körülölelő tájra a ház minden pontjából!

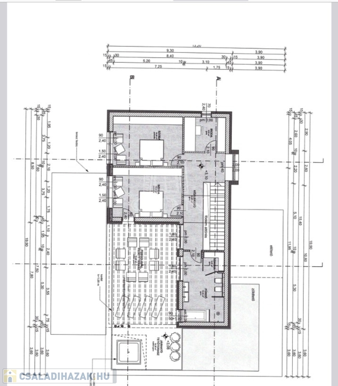
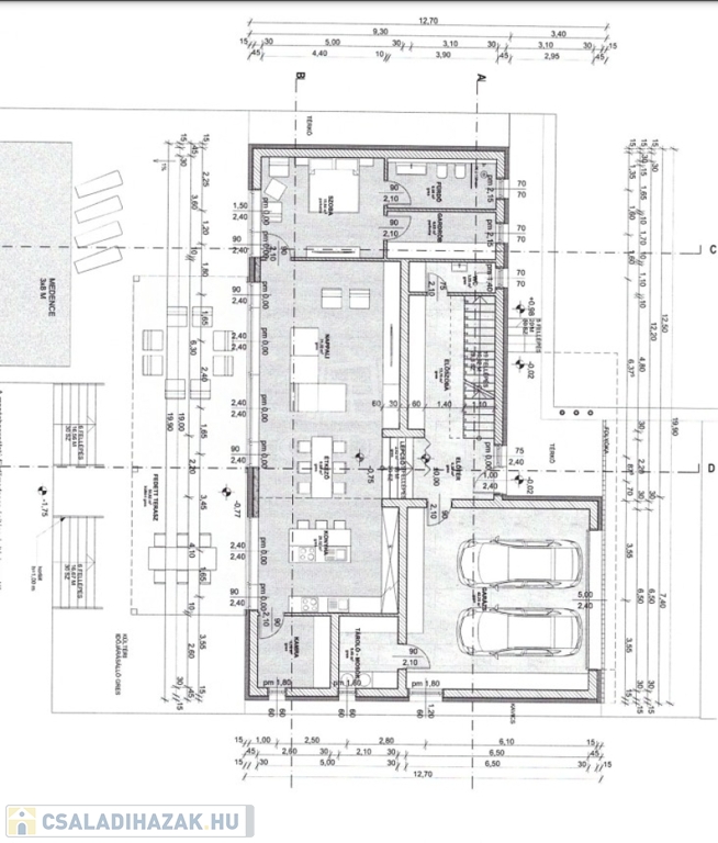
A földszint 170 nm ahol egy hatalmas egylégteres nappali-konyha-étkező, galériás előszoba, főháló gardróbszobával saját fürdő és wc-vel, háztartási helyiség, vendég wc, gépház, 2 beállásos garázs és az 50 nm-es pergolával fedett terasz találhatók. A teraszon található 3,5x6m-es MEDENCE és panorámás üveg falú FINN SZAUNA fokozza a valódi luxus érzést, ami a ház minden apró részletében megmutatkozik.

Az emelet 78 nm ahol 2 hálószoba, fürdő+wc+INFRA SZAUNA, dolgozószoba és pergolával árnyékolt 40 nm-es terasz található, ahol egy 3 személyes süllyesztett JAKUZZIBÓL élvezhetik a csodás tóra néző panorámát.

MŰSZAKI tartalom :
- áram , erős áram , vezetékes víz , szennyvízcsatorna
- központi antenna , internet
- az épület riasztóval , nyitás érzékelőkkel és kamera rendszerrel felszerelt
- 3 rétegű műanyag nyílászárók elektromos alumínium redőnyökkel és szúnyoghálóval
- a villamos energia ellátást 15 KW- os NAPELEM rendszer segíti , így az épület energia ellátása szinte teljesen önellátó , energia besorolása A+++
- az ingatlan FŰTÉSE és HŰTÉSE automata HŐSZIVATTYÚVAL, padlófűtéssel és mennyezet hűtéssel van megoldva. A helyiségek hőmérséklete külön is szabályozható.
- vízlágyító
- Hörmann garázskapu, ELEKTROMOS AUTÓ TÖLTÉSI lehetőséggel
- Umbroll típusú elektromos lamellás pergola
- Beépített konyha felszereltsége: Electrolux márkájú mikrohullámú sütő, indukciós főzőlap, sűtő és automata kávéfőző és Goranje Side by Side hűtőszekrény, valamint Cata páraelszívó.
- 20 m3-es esővíz gyűjtő öntözőrendszerrel
- padlóburkolatok : kerámia , laminált parketta
- az ingatlan kerítéssel , részben sövénnyel körbekerített és elektromos nyílókapuval ellátott

Rendkívül JÓ INFRASTRUKTÚRA:
minden, ami a mindennapokhoz szükséges, iskola, óvoda, orvosi rendelő, gyógyszertár, bevásárlási és szórakozási-sportolási lehetőségek tárháza egyaránt a közelben.

Várom megtisztelő hívását.

ID:388057

Családi ház részletei

Ár: 420 000 000 Ft
Méret: 338 négyzetméter
Azonosító: 11569697
Irodai azonosító: 388057
Cím: Sziklai u.
Telek: 1656 négyzetméter
Ingatlan állapota: Kitűnő
Jelleg: családi ház
Építőanyag: Tégla
Fűtés jellege: Geotermikus
Fűtés módja: Hőszivattyú
Komfort fokozat: Luxus komfort
Kor: Új építésű
Szintek száma: 1 szint
Egész szobák: 4
Fél szobák: 1

Egyéb jellemzők

  • Csatorna
  • Garázs
  • Pince
  • Terasz

Térkép


Így keressen családi házat négy egyszerű lépésben. Csupán 2 perc, kötelezettségek nélkül!

Szűkítse a családi házak
listáját
Válassza ki a megfelelő
családi házat
Írjon a hirdetőnek
Várjon a visszahívásra